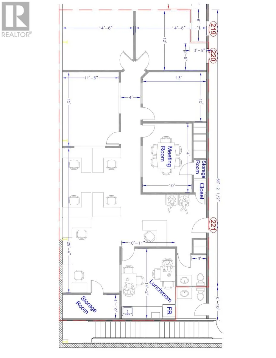
Realtyna\MlsOnTheFly\Components\CloudPost\SubComponents\RFClient\SDK\RF\Entities\RFProperty {#24896 +post_id: "462573" +post_author: 1 +"ListingKey": "29162530" +"ListingId": "40790526" +"PropertyType": "Commercial Lease" +"PropertySubType": "Industrial" +"StandardStatus": "Active" +"ModificationTimestamp": "2025-12-04T17:10:16Z" +"RFModificationTimestamp": "2025-12-04T19:49:26Z" +"ListPrice": 9.0 +"BathroomsTotalInteger": 0 +"BathroomsHalf": 0 +"BedroomsTotal": 0 +"LotSizeArea": 0 +"LivingArea": 3000.0 +"BuildingAreaTotal": 0 +"City": "Brantford" +"PostalCode": "N3P1N4" +"UnparsedAddress": "47 COPERNICUS Boulevard Unit# 3, Brantford, Ontario N3P1N4" +"Coordinates": array:2 [ 0 => -80.2417196 1 => 43.1803401 ] +"Latitude": 43.1803401 +"Longitude": -80.2417196 +"YearBuilt": 0 +"InternetAddressDisplayYN": true +"FeedTypes": "IDX" +"OriginatingSystemName": "Brantford Regional Real Estate Assn Inc" +"PublicRemarks": "3,000 sf Industrial Unit. Open concept reception, private office two 2 piece washrooms. Open span shop/warehouse with 12ft H x 12ft w drive-in door. Approximately 13’4 foot high clear height. 100 amp 600v hydro service. Light load mezzanine above offices. (id:62650)" +"AssociationFeeIncludes": array:1 [ 0 => "Other, See Remarks" ] +"Basement": array:1 [ 0 => "None" ] +"BuildingAreaUnits": "square feet" +"CreationDate": "2025-12-04T19:49:06.798777+00:00" +"Directions": "Easton Road to Copernicus Boulevard" +"InternetEntireListingDisplayYN": true +"ListAgentKey": "1398808" +"ListOfficeKey": "289711" +"LivingAreaUnits": "square feet" +"PhotosChangeTimestamp": "2025-12-04T17:04:38Z" +"PhotosCount": 27 +"Sewer": array:1 [ 0 => "Municipal sewage system" ] +"StateOrProvince": "Ontario" +"StatusChangeTimestamp": "2025-12-04T17:04:37Z" +"Stories": "1.0" +"StreetName": "COPERNICUS" +"StreetNumber": "47" +"StreetSuffix": "Boulevard" +"SubdivisionName": "2021 - Lynden Park Mall" +"WaterSource": array:1 [ 0 => "Municipal water" ] +"ListAOR": "Brantford" +"ListAORKey": "41" +"ListingURL": "www.realtor.ca/real-estate/29162530/47-copernicus-boulevard-unit-3-brantford" +"LeaseAmount": 9 +"LeasePerUnit": "square feet" +"CommonInterest": "Freehold" +"GeocodeManualYN": true +"ZoningDescription": "GE-15" +"FrontageLengthNumeric": 0.0 +"OriginalEntryTimestamp": "2025-12-04T17:04:37.91Z" +"MapCoordinateVerifiedYN": true +"FrontageLengthNumericUnits": "feet" +"Media": array:27 [ 0 => array:13 [ "Order" => 0 "MediaKey" => "6355387110" "MediaURL" => "https://cdn.realtyfeed.com/cdn/26/29162530/eda946217a92a56454a7a7cbddcdc5b3.webp" "MediaSize" => 78586 "MediaType" => "webp" "Thumbnail" => "https://cdn.realtyfeed.com/cdn/26/29162530/thumbnail-eda946217a92a56454a7a7cbddcdc5b3.webp" "ResourceName" => "Property" "MediaCategory" => "Property Photo" "LongDescription" => null "PreferredPhotoYN" => true "ResourceRecordId" => "40790526" "ResourceRecordKey" => "29162530" "ModificationTimestamp" => "2025-12-04T17:04:37.92Z" ] 1 => array:13 [ "Order" => 1 "MediaKey" => "6355387171" "MediaURL" => "https://cdn.realtyfeed.com/cdn/26/29162530/99e44e602d2f9f9a0b4238ee377190e2.webp" "MediaSize" => 90478 "MediaType" => "webp" "Thumbnail" => "https://cdn.realtyfeed.com/cdn/26/29162530/thumbnail-99e44e602d2f9f9a0b4238ee377190e2.webp" "ResourceName" => "Property" "MediaCategory" => "Property Photo" "LongDescription" => null "PreferredPhotoYN" => false "ResourceRecordId" => "40790526" "ResourceRecordKey" => "29162530" "ModificationTimestamp" => "2025-12-04T17:04:37.92Z" ] 2 => array:13 [ "Order" => 2 "MediaKey" => "6355387232" "MediaURL" => "https://cdn.realtyfeed.com/cdn/26/29162530/3f9399fb01e877fefd4582080a427579.webp" "MediaSize" => 98928 "MediaType" => "webp" "Thumbnail" => "https://cdn.realtyfeed.com/cdn/26/29162530/thumbnail-3f9399fb01e877fefd4582080a427579.webp" "ResourceName" => "Property" "MediaCategory" => "Property Photo" "LongDescription" => null "PreferredPhotoYN" => false "ResourceRecordId" => "40790526" "ResourceRecordKey" => "29162530" "ModificationTimestamp" => "2025-12-04T17:04:37.92Z" ] 3 => array:13 [ "Order" => 3 "MediaKey" => "6355387255" "MediaURL" => "https://cdn.realtyfeed.com/cdn/26/29162530/43cb165943e02ea2c7bb0dae0a57d1a5.webp" "MediaSize" => 59248 "MediaType" => "webp" "Thumbnail" => "https://cdn.realtyfeed.com/cdn/26/29162530/thumbnail-43cb165943e02ea2c7bb0dae0a57d1a5.webp" "ResourceName" => "Property" "MediaCategory" => "Property Photo" "LongDescription" => null "PreferredPhotoYN" => false "ResourceRecordId" => "40790526" "ResourceRecordKey" => "29162530" "ModificationTimestamp" => "2025-12-04T17:04:37.92Z" ] 4 => array:13 [ "Order" => 4 "MediaKey" => "6355387347" "MediaURL" => "https://cdn.realtyfeed.com/cdn/26/29162530/e73e82a4da5d23b1674a461150a176a3.webp" "MediaSize" => 69011 "MediaType" => "webp" "Thumbnail" => "https://cdn.realtyfeed.com/cdn/26/29162530/thumbnail-e73e82a4da5d23b1674a461150a176a3.webp" "ResourceName" => "Property" "MediaCategory" => "Property Photo" "LongDescription" => null "PreferredPhotoYN" => false "ResourceRecordId" => "40790526" "ResourceRecordKey" => "29162530" "ModificationTimestamp" => "2025-12-04T17:04:37.92Z" ] 5 => array:13 [ "Order" => 5 "MediaKey" => "6355387372" "MediaURL" => "https://cdn.realtyfeed.com/cdn/26/29162530/f9ac0fecc5e95f004c7a6afa010b2e89.webp" "MediaSize" => 64675 "MediaType" => "webp" "Thumbnail" => "https://cdn.realtyfeed.com/cdn/26/29162530/thumbnail-f9ac0fecc5e95f004c7a6afa010b2e89.webp" "ResourceName" => "Property" "MediaCategory" => "Property Photo" "LongDescription" => null "PreferredPhotoYN" => false "ResourceRecordId" => "40790526" "ResourceRecordKey" => "29162530" "ModificationTimestamp" => "2025-12-04T17:04:37.92Z" ] 6 => array:13 [ "Order" => 6 "MediaKey" => "6355387401" "MediaURL" => "https://cdn.realtyfeed.com/cdn/26/29162530/624bcd3066f2d6af0e3465bbc55d02a8.webp" "MediaSize" => 64558 "MediaType" => "webp" "Thumbnail" => "https://cdn.realtyfeed.com/cdn/26/29162530/thumbnail-624bcd3066f2d6af0e3465bbc55d02a8.webp" "ResourceName" => "Property" "MediaCategory" => "Property Photo" "LongDescription" => null "PreferredPhotoYN" => false "ResourceRecordId" => "40790526" "ResourceRecordKey" => "29162530" "ModificationTimestamp" => "2025-12-04T17:04:37.92Z" ] 7 => array:13 [ "Order" => 7 "MediaKey" => "6355387492" "MediaURL" => "https://cdn.realtyfeed.com/cdn/26/29162530/9cc20e0ca76837454bc245dc594313fa.webp" "MediaSize" => 54437 "MediaType" => "webp" "Thumbnail" => "https://cdn.realtyfeed.com/cdn/26/29162530/thumbnail-9cc20e0ca76837454bc245dc594313fa.webp" "ResourceName" => "Property" "MediaCategory" => "Property Photo" "LongDescription" => null "PreferredPhotoYN" => false "ResourceRecordId" => "40790526" "ResourceRecordKey" => "29162530" "ModificationTimestamp" => "2025-12-04T17:04:37.92Z" ] 8 => array:13 [ "Order" => 8 "MediaKey" => "6355387582" "MediaURL" => "https://cdn.realtyfeed.com/cdn/26/29162530/3a6070d8f8b8c7578a677cb1035353a7.webp" "MediaSize" => 45051 "MediaType" => "webp" "Thumbnail" => "https://cdn.realtyfeed.com/cdn/26/29162530/thumbnail-3a6070d8f8b8c7578a677cb1035353a7.webp" "ResourceName" => "Property" "MediaCategory" => "Property Photo" "LongDescription" => null "PreferredPhotoYN" => false "ResourceRecordId" => "40790526" "ResourceRecordKey" => "29162530" "ModificationTimestamp" => "2025-12-04T17:04:37.92Z" ] 9 => array:13 [ "Order" => 9 "MediaKey" => "6355387663" "MediaURL" => "https://cdn.realtyfeed.com/cdn/26/29162530/51c6b8bc572096c9ad70d0a00e2fe45d.webp" "MediaSize" => 42668 "MediaType" => "webp" "Thumbnail" => "https://cdn.realtyfeed.com/cdn/26/29162530/thumbnail-51c6b8bc572096c9ad70d0a00e2fe45d.webp" "ResourceName" => "Property" "MediaCategory" => "Property Photo" "LongDescription" => null "PreferredPhotoYN" => false "ResourceRecordId" => "40790526" "ResourceRecordKey" => "29162530" "ModificationTimestamp" => "2025-12-04T17:04:37.92Z" ] 10 => array:13 [ "Order" => 10 "MediaKey" => "6355387689" "MediaURL" => "https://cdn.realtyfeed.com/cdn/26/29162530/68b3a7fedcdff23813e83aa339a32c74.webp" "MediaSize" => 45694 "MediaType" => "webp" "Thumbnail" => "https://cdn.realtyfeed.com/cdn/26/29162530/thumbnail-68b3a7fedcdff23813e83aa339a32c74.webp" "ResourceName" => "Property" "MediaCategory" => "Property Photo" "LongDescription" => null "PreferredPhotoYN" => false "ResourceRecordId" => "40790526" "ResourceRecordKey" => "29162530" "ModificationTimestamp" => "2025-12-04T17:04:37.92Z" ] 11 => array:13 [ "Order" => 11 "MediaKey" => "6355387771" "MediaURL" => "https://cdn.realtyfeed.com/cdn/26/29162530/e3524d49119ffd5d59a814392284011c.webp" "MediaSize" => 93343 "MediaType" => "webp" "Thumbnail" => "https://cdn.realtyfeed.com/cdn/26/29162530/thumbnail-e3524d49119ffd5d59a814392284011c.webp" "ResourceName" => "Property" "MediaCategory" => "Property Photo" "LongDescription" => null "PreferredPhotoYN" => false "ResourceRecordId" => "40790526" "ResourceRecordKey" => "29162530" "ModificationTimestamp" => "2025-12-04T17:04:37.92Z" ] 12 => array:13 [ "Order" => 12 "MediaKey" => "6355387800" "MediaURL" => "https://cdn.realtyfeed.com/cdn/26/29162530/216f6db1db39cb0fb5ee9eeb2038ab74.webp" "MediaSize" => 96079 "MediaType" => "webp" "Thumbnail" => "https://cdn.realtyfeed.com/cdn/26/29162530/thumbnail-216f6db1db39cb0fb5ee9eeb2038ab74.webp" "ResourceName" => "Property" "MediaCategory" => "Property Photo" "LongDescription" => null "PreferredPhotoYN" => false "ResourceRecordId" => "40790526" "ResourceRecordKey" => "29162530" "ModificationTimestamp" => "2025-12-04T17:04:37.92Z" ] 13 => array:13 [ "Order" => 13 "MediaKey" => "6355387868" "MediaURL" => "https://cdn.realtyfeed.com/cdn/26/29162530/e7826dab933b776e7684be6027182045.webp" "MediaSize" => 90507 "MediaType" => "webp" "Thumbnail" => "https://cdn.realtyfeed.com/cdn/26/29162530/thumbnail-e7826dab933b776e7684be6027182045.webp" "ResourceName" => "Property" "MediaCategory" => "Property Photo" "LongDescription" => null "PreferredPhotoYN" => false "ResourceRecordId" => "40790526" "ResourceRecordKey" => "29162530" "ModificationTimestamp" => "2025-12-04T17:04:37.92Z" ] 14 => array:13 [ "Order" => 14 "MediaKey" => "6355387906" "MediaURL" => "https://cdn.realtyfeed.com/cdn/26/29162530/c552445b4755a2836cf437a9678ab5e9.webp" "MediaSize" => 87518 "MediaType" => "webp" "Thumbnail" => "https://cdn.realtyfeed.com/cdn/26/29162530/thumbnail-c552445b4755a2836cf437a9678ab5e9.webp" "ResourceName" => "Property" "MediaCategory" => "Property Photo" "LongDescription" => null "PreferredPhotoYN" => false "ResourceRecordId" => "40790526" "ResourceRecordKey" => "29162530" "ModificationTimestamp" => "2025-12-04T17:04:37.92Z" ] 15 => array:13 [ "Order" => 15 "MediaKey" => "6355387964" "MediaURL" => "https://cdn.realtyfeed.com/cdn/26/29162530/5c968837b7fc86a6ceb2344df3308901.webp" "MediaSize" => 89609 "MediaType" => "webp" "Thumbnail" => "https://cdn.realtyfeed.com/cdn/26/29162530/thumbnail-5c968837b7fc86a6ceb2344df3308901.webp" "ResourceName" => "Property" "MediaCategory" => "Property Photo" "LongDescription" => null "PreferredPhotoYN" => false "ResourceRecordId" => "40790526" "ResourceRecordKey" => "29162530" "ModificationTimestamp" => "2025-12-04T17:04:37.92Z" ] 16 => array:13 [ "Order" => 16 "MediaKey" => "6355388041" "MediaURL" => "https://cdn.realtyfeed.com/cdn/26/29162530/64285bac7c13283e227f42e353176f22.webp" "MediaSize" => 93905 "MediaType" => "webp" "Thumbnail" => "https://cdn.realtyfeed.com/cdn/26/29162530/thumbnail-64285bac7c13283e227f42e353176f22.webp" "ResourceName" => "Property" "MediaCategory" => "Property Photo" "LongDescription" => null "PreferredPhotoYN" => false "ResourceRecordId" => "40790526" "ResourceRecordKey" => "29162530" "ModificationTimestamp" => "2025-12-04T17:04:37.92Z" ] 17 => array:13 [ "Order" => 17 "MediaKey" => "6355388082" "MediaURL" => "https://cdn.realtyfeed.com/cdn/26/29162530/deaf754da7d4bae1184ee5875e651a43.webp" "MediaSize" => 89424 "MediaType" => "webp" "Thumbnail" => "https://cdn.realtyfeed.com/cdn/26/29162530/thumbnail-deaf754da7d4bae1184ee5875e651a43.webp" "ResourceName" => "Property" "MediaCategory" => "Property Photo" "LongDescription" => null "PreferredPhotoYN" => false "ResourceRecordId" => "40790526" "ResourceRecordKey" => "29162530" "ModificationTimestamp" => "2025-12-04T17:04:37.92Z" ] 18 => array:13 [ "Order" => 18 "MediaKey" => "6355388108" "MediaURL" => "https://cdn.realtyfeed.com/cdn/26/29162530/541d9af1b208e0abfcf04b1aa05467fa.webp" "MediaSize" => 85671 "MediaType" => "webp" "Thumbnail" => "https://cdn.realtyfeed.com/cdn/26/29162530/thumbnail-541d9af1b208e0abfcf04b1aa05467fa.webp" "ResourceName" => "Property" "MediaCategory" => "Property Photo" "LongDescription" => null "PreferredPhotoYN" => false "ResourceRecordId" => "40790526" "ResourceRecordKey" => "29162530" "ModificationTimestamp" => "2025-12-04T17:04:37.92Z" ] 19 => array:13 [ "Order" => 19 "MediaKey" => "6355388144" "MediaURL" => "https://cdn.realtyfeed.com/cdn/26/29162530/eca9159e949bb7158337ec5d2d8f4162.webp" "MediaSize" => 88968 "MediaType" => "webp" "Thumbnail" => "https://cdn.realtyfeed.com/cdn/26/29162530/thumbnail-eca9159e949bb7158337ec5d2d8f4162.webp" "ResourceName" => "Property" "MediaCategory" => "Property Photo" "LongDescription" => null "PreferredPhotoYN" => false "ResourceRecordId" => "40790526" "ResourceRecordKey" => "29162530" "ModificationTimestamp" => "2025-12-04T17:04:37.92Z" ] 20 => array:13 [ "Order" => 20 "MediaKey" => "6355388175" "MediaURL" => "https://cdn.realtyfeed.com/cdn/26/29162530/ea00297ddfad6cab7774040989254d34.webp" "MediaSize" => 53497 "MediaType" => "webp" "Thumbnail" => "https://cdn.realtyfeed.com/cdn/26/29162530/thumbnail-ea00297ddfad6cab7774040989254d34.webp" "ResourceName" => "Property" "MediaCategory" => "Property Photo" "LongDescription" => null "PreferredPhotoYN" => false "ResourceRecordId" => "40790526" "ResourceRecordKey" => "29162530" "ModificationTimestamp" => "2025-12-04T17:04:37.92Z" ] 21 => array:13 [ "Order" => 21 "MediaKey" => "6355388228" "MediaURL" => "https://cdn.realtyfeed.com/cdn/26/29162530/1cc48687ca8bec6958a147660c33a88d.webp" "MediaSize" => 36899 "MediaType" => "webp" "Thumbnail" => "https://cdn.realtyfeed.com/cdn/26/29162530/thumbnail-1cc48687ca8bec6958a147660c33a88d.webp" "ResourceName" => "Property" "MediaCategory" => "Property Photo" "LongDescription" => null "PreferredPhotoYN" => false "ResourceRecordId" => "40790526" "ResourceRecordKey" => "29162530" "ModificationTimestamp" => "2025-12-04T17:04:37.92Z" ] 22 => array:13 [ "Order" => 22 "MediaKey" => "6355388268" "MediaURL" => "https://cdn.realtyfeed.com/cdn/26/29162530/9c0be462b44717c5782dd4379c4b4864.webp" "MediaSize" => 74618 "MediaType" => "webp" "Thumbnail" => "https://cdn.realtyfeed.com/cdn/26/29162530/thumbnail-9c0be462b44717c5782dd4379c4b4864.webp" "ResourceName" => "Property" "MediaCategory" => "Property Photo" "LongDescription" => null "PreferredPhotoYN" => false "ResourceRecordId" => "40790526" "ResourceRecordKey" => "29162530" "ModificationTimestamp" => "2025-12-04T17:04:37.92Z" ] 23 => array:13 [ "Order" => 23 "MediaKey" => "6355388286" "MediaURL" => "https://cdn.realtyfeed.com/cdn/26/29162530/8761d00b6ee398897f4dee9774a97637.webp" "MediaSize" => 78569 "MediaType" => "webp" "Thumbnail" => "https://cdn.realtyfeed.com/cdn/26/29162530/thumbnail-8761d00b6ee398897f4dee9774a97637.webp" "ResourceName" => "Property" "MediaCategory" => "Property Photo" "LongDescription" => null "PreferredPhotoYN" => false "ResourceRecordId" => "40790526" "ResourceRecordKey" => "29162530" "ModificationTimestamp" => "2025-12-04T17:04:37.92Z" ] 24 => array:13 [ "Order" => 24 "MediaKey" => "6355388317" "MediaURL" => "https://cdn.realtyfeed.com/cdn/26/29162530/022509b0146f406194bdf82ed314546f.webp" "MediaSize" => 81128 "MediaType" => "webp" "Thumbnail" => "https://cdn.realtyfeed.com/cdn/26/29162530/thumbnail-022509b0146f406194bdf82ed314546f.webp" "ResourceName" => "Property" "MediaCategory" => "Property Photo" "LongDescription" => null "PreferredPhotoYN" => false "ResourceRecordId" => "40790526" "ResourceRecordKey" => "29162530" "ModificationTimestamp" => "2025-12-04T17:04:37.92Z" ] 25 => array:13 [ "Order" => 25 "MediaKey" => "6355388333" "MediaURL" => "https://cdn.realtyfeed.com/cdn/26/29162530/7cfe15e321c5130377145cfc01dee991.webp" "MediaSize" => 90072 "MediaType" => "webp" "Thumbnail" => "https://cdn.realtyfeed.com/cdn/26/29162530/thumbnail-7cfe15e321c5130377145cfc01dee991.webp" "ResourceName" => "Property" "MediaCategory" => "Property Photo" "LongDescription" => null "PreferredPhotoYN" => false "ResourceRecordId" => "40790526" "ResourceRecordKey" => "29162530" "ModificationTimestamp" => "2025-12-04T17:04:37.92Z" ] 26 => array:13 [ "Order" => 26 "MediaKey" => "6355388359" "MediaURL" => "https://cdn.realtyfeed.com/cdn/26/29162530/1ca8393e4ce5dce34dfc79e81d83b676.webp" "MediaSize" => 106566 "MediaType" => "webp" "Thumbnail" => "https://cdn.realtyfeed.com/cdn/26/29162530/thumbnail-1ca8393e4ce5dce34dfc79e81d83b676.webp" "ResourceName" => "Property" "MediaCategory" => "Property Photo" "LongDescription" => null "PreferredPhotoYN" => false "ResourceRecordId" => "40790526" "ResourceRecordKey" => "29162530" "ModificationTimestamp" => "2025-12-04T17:04:37.92Z" ] ] +"@odata.id": "https://api.realtyfeed.com/reso/odata/Property('29162530')" +"ID": "462573" }