$2,350
Ontario,Burlington (Alton)
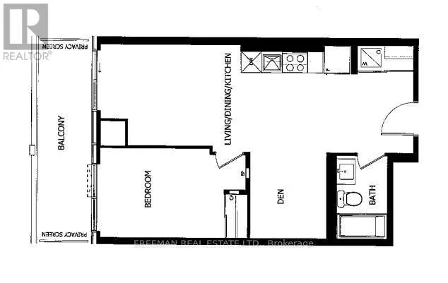
B608 - 3200 DAKOTA COMMON, Burlington (Alton), Ontario L7M2A7
2
1
600 - 699
Basic
Details
Property Type:
Residential
Listing Type:
For Sale
Listing ID:
W12928616
Price:
$2,350
Bedrooms:
2
Bathrooms:
1
Square Footage:
600 - 699 Sqft
Property Attached Yn:
1
Office Key:
51246
Features
Heating System:
Forced air
Natural gas
Cooling System:
Central air conditioning
Basement:
None
Parking:
Garage
Underground
Exterior Features:
Stucco
Concrete
Address
Map
Country:
CA
State:
Ontario
City:
Burlington (Alton)
Zipcode:
L7M2A7
Street:
Dakota
Street Number:
3200
1-877-888-3131 /
10807-124 Street Edmonton AB, T5M 0H4
© 2025 ComFree Realty Inc. All rights reserved.