Share
$1,490,000
Ontario,Port Colborne (East Village)
For Sale Active
198 WELLAND STREET, Port Colborne (East Village), Ontario L3K5V8
  • 8,300 Sqft
Contact Seller
Basic Details
Description

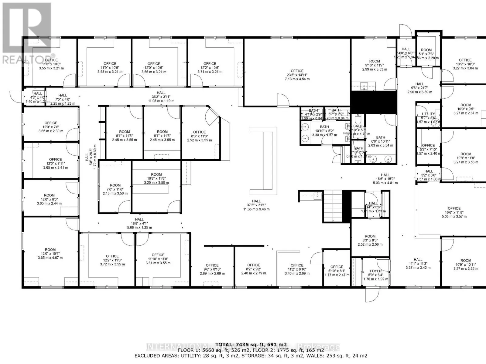
East Village | CanalSide Flex Office/Industrial | Income + Vacancy Position your business or portfolio at the SW corner of Clarence St & Welland St steps to the Welland Canal. The property offers ~ 8,000 sf across two levels with ~25 private offices, collaboration rooms and a paved onsite lot. Paved parking area for 30+ vehicles. Current layout supports

office, professional services, technical trades, training/education and light industrial users. ~6,200 sf is leased to Miller Paving Group; ~1,800 sf is available immediately, with seller indicating the ability to deliver full or partial vacancy within ~3-6 months. The Light Industrial zoning is exceptionally versatile, allowing contractors yard, light industry, education facility, motor vehicle repair, research facility, and accessory office/retail/restaurant options, among others. City is very supportive of improving the area. The location benefits from Port Colborne’s record cruise season (70+ calls Apr – Oct) and continued waterfront activation. Well built free standing building. More area can be build if required. A rare owner user purchase with income, or a straight forward lease up for investors. (id:62650)

Read More
Basic Details
  • Property Type: Commercial Sale
  • Listing Type: For Sale
  • Listing ID: X12379411
  • Price: $1,490,000
  • Square Footage: 8,300 Sqft
  • Status: Active
  • Property Sub Type: Industrial
  • Office Key: 282967
Features & Appliances
Features
  • Heating System: Forced air, Natural gas
  • Cooling System: Fully air conditioned
Address Map
  • Location: CA, Ontario, Port Colborne (East Village), L3K5V8
  • Street: Welland
  • Street Number: 198
  • Street Suffix: Street
  • Longitude: W80° 45' 12.1''
  • Latitude: N42° 53' 9''
Additional Information
  • Water Source:
  • Lot Size Dimensions: 300.0
Financial
  • Tax Annual Amount: 13595
Powered by REALTOR.ca
Listing updated: 2026-04-16 08:45:55
List Your Property
Mortgage Calculator
Get Pre-Approved
$
$
%
%
years
Monthly Payment (Est.) $
Listing Information
  • List Agent Key: 1594736
  • List Office Key: 282967
  • Modification Timestamp: 2026-02-25T02:05:39Z
  • Originating System Name: Toronto Regional Real Estate Board
  • Status Change Timestamp: 2026-02-25T01:56:22Z
Powered by REALTOR.ca
Listing updated: 2026-04-16 08:45:56
REALTOR®, REALTORS®, and the REALTOR® logo are certification marks that are owned by REALTOR® Canada Inc. and licensed exclusively to The Canadian Real Estate Association (CREA). These certification marks identify real estate professionals who are members of CREA and who must abide by CREA’s By‐Laws, Rules, and the REALTOR® Code. The MLS® trademark and the MLS® logo are owned by CREA and identify the quality of services provided by real estate professionals who are members of CREA.

The information contained on this site is based in whole or in part on information that is provided by members of The Canadian Real Estate Association, who are responsible for its accuracy. CREA reproduces and distributes this information as a service for its members and assumes no responsibility for its accuracy.

Website is operated by a brokerage or salesperson who is a member of The Canadian Real Estate Association.

The listing content on this website is protected by copyright and other laws, and is intended solely for the private, non‐commercial use by individuals. Any other reproduction, distribution or use of the content, in whole or in part, is specifically forbidden. The prohibited uses include commercial use, “screen scraping”, “database scraping”, and any other activity intended to collect, store, reorganize or manipulate data on the pages produced by or displayed on this website.

By continuing to use this website and its services, you agree to these

These forms are provided to ComFree’s Unrepresented Sellers as a part of their Mere Posting ComFree Listing Contract.

I acknowledge I can only access these forms as a ComFree customer under contract.

These forms are provided to ComFree’s Unrepresented Sellers as a part of their Mere Posting ComFree Listing Contract and in partnership with Zubic Law.

I acknowledge I can only access these forms as a ComFree customer under contract.

These forms are provided to ComFree’s Unrepresented Sellers as a part of their Mere Posting ComFree Listing Contract and in partnership with Zubic Law.

I acknowledge I can only access these forms as a ComFree customer under contract.

How It Works

1. Purchase Your Package

2. We Ship Your ‘For Sale’ Sign

3. Book Your VR Tour

4. Complete Listing Input Forms

5. We Make Your Listing Live

6. Get Support 7 Days a Week

7. iSOLD!