Share
$969,900
Ontario,Saugeen Shores
For Sale Active
296 RIDGE STREET, Saugeen Shores, Ontario N0H2C3
  • 4
  • 3
  • 1500 - 2000Square Feet
Contact Seller
Basic Details
Description

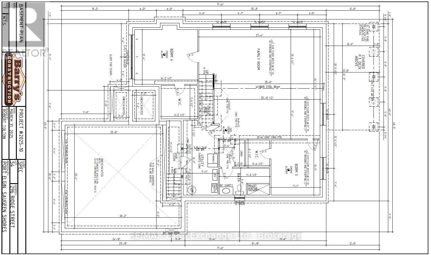
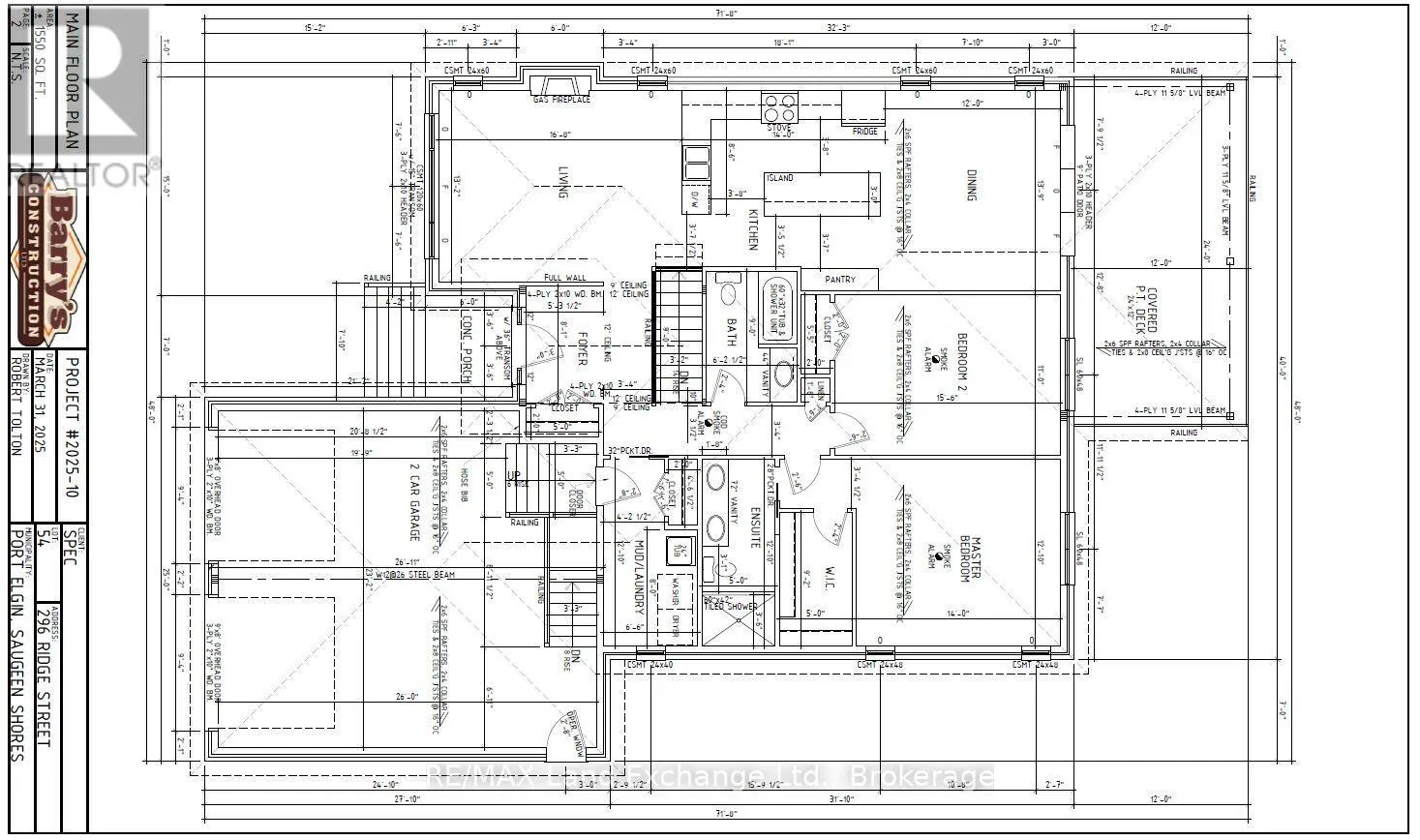
Framing is complete on this brand new 1550sqft home at 296 Ridge Street in Port Elgin; that when finished will feature 4 bedrooms and 3 full baths. The location is central to the beach and shopping. The basement will be fully finished and include a family room, 2 bedrooms, 3pc bath and utility room with walkup to the

2 car garage. Standard features included hardwood and ceramic throughout the main floor, 12ft ceiling in the foyer, 9ft ceilings thoughout the remainder of the main floor, hardwood staircase to the basement, Quartz counters in the kitchen, tiled shower in the ensuite bath,walkout to a partially covered deck, gas forced air heating with central air, gas fireplace in the living room, concrete drive, sodded yard and more. HST is included in the list price provided the Buyer qualifies for the rebate and assigns it to the Builder on closing. Prices subject to change without notice, colour selections maybe available for those that act early. (id:62650)

Read More
Basic Details
  • Property Type: Residential
  • Listing Type: For Sale
  • Listing ID: X12337497
  • Price: $969,900
  • Bedrooms: 4
  • Bathrooms: 3
  • Square Footage: 1500 - 2000 Sqft
  • Status: Active
  • Property Sub Type: Single Family
  • Office Key: 81675
Features & Appliances
Features
  • Heating System: Forced air, Natural gas
  • Cooling System: Central air conditioning, Air exchanger
  • Basement: Finished, N/A, Walk-up
  • Parking: Garage, Attached Garage
  • Architectural Style: Raised bungalow
  • Exterior Features: Stone
  • Flooring: Tile, Hardwood
  • Sewer: Sanitary sewer
  • Utilities: Electricity, Sewer, Cable
  • Fireplaces Total: 1
Address Map
  • Location: CA, Ontario, Saugeen Shores, N0H2C3
  • Street: Ridge
  • Street Number: 296
  • Street Suffix: Street
  • Longitude: W82° 35' 46''
  • Latitude: N44° 25' 53.9''
Additional Information
  • Water Source:
  • Foundation Details:
  • Lot Features:
  • Lot Size Dimensions: 55.3 x 119 FT
  • Stories: 1.0
Powered by REALTOR.ca
Listing updated: 2026-04-22 08:17:36
List Your Property
Mortgage Calculator
Get Pre-Approved
$
$
%
%
years
Monthly Payment (Est.) $
Listing Information
  • List Agent Key: 1456663
  • List Office Key: 81675
  • Modification Timestamp: 2026-02-26T02:20:20Z
  • Originating System Name: OnePoint Association of REALTORS®
  • Status Change Timestamp: 2026-02-26T02:14:44Z
Powered by REALTOR.ca
Listing updated: 2026-04-22 08:17:37
REALTOR®, REALTORS®, and the REALTOR® logo are certification marks that are owned by REALTOR® Canada Inc. and licensed exclusively to The Canadian Real Estate Association (CREA). These certification marks identify real estate professionals who are members of CREA and who must abide by CREA’s By‐Laws, Rules, and the REALTOR® Code. The MLS® trademark and the MLS® logo are owned by CREA and identify the quality of services provided by real estate professionals who are members of CREA.

The information contained on this site is based in whole or in part on information that is provided by members of The Canadian Real Estate Association, who are responsible for its accuracy. CREA reproduces and distributes this information as a service for its members and assumes no responsibility for its accuracy.

Website is operated by a brokerage or salesperson who is a member of The Canadian Real Estate Association.

The listing content on this website is protected by copyright and other laws, and is intended solely for the private, non‐commercial use by individuals. Any other reproduction, distribution or use of the content, in whole or in part, is specifically forbidden. The prohibited uses include commercial use, “screen scraping”, “database scraping”, and any other activity intended to collect, store, reorganize or manipulate data on the pages produced by or displayed on this website.

By continuing to use this website and its services, you agree to these

These forms are provided to ComFree’s Unrepresented Sellers as a part of their Mere Posting ComFree Listing Contract.

I acknowledge I can only access these forms as a ComFree customer under contract.

These forms are provided to ComFree’s Unrepresented Sellers as a part of their Mere Posting ComFree Listing Contract and in partnership with Zubic Law.

I acknowledge I can only access these forms as a ComFree customer under contract.

These forms are provided to ComFree’s Unrepresented Sellers as a part of their Mere Posting ComFree Listing Contract and in partnership with Zubic Law.

I acknowledge I can only access these forms as a ComFree customer under contract.

How It Works

1. Purchase Your Package

2. We Ship Your ‘For Sale’ Sign

3. Book Your VR Tour

4. Complete Listing Input Forms

5. We Make Your Listing Live

6. Get Support 7 Days a Week

7. iSOLD!