Share
$3,900,000
British Columbia,Keremeos
For Sale Active
2626 MIDDLE BENCH Road, Keremeos, British Columbia V0X1N2
  • 3
  • 3
  • 4,410 Sqft
Contact Seller
Basic Details
Description

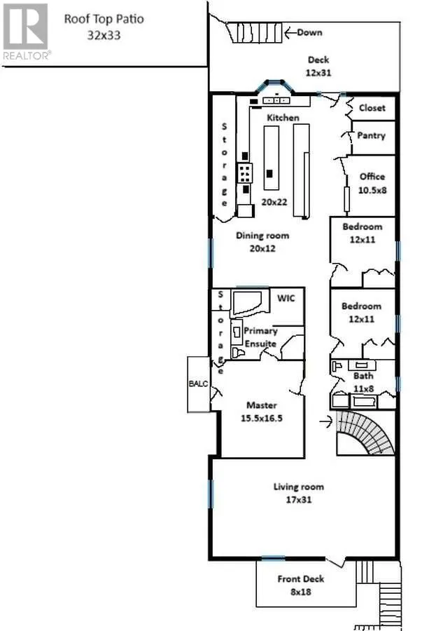
For more information click the brochure button. Beautiful property in the Similkameen Valley near Keremeos. This large timber-frame home features a metal roof, gas heat, heat pump, solar hot water, and a 30-panel solar grid with meter connection. Thermostat and greenhouse systems are accessible by phone. Ground-level entry leads to a grand foyer and an open-concept kitchen perfect for entertaining,

with stainless steel appliances including a 36″” six-burner gas stove. Upstairs offers vaulted ceilings with tile and hardwood floors. Potential for a main floor suite or B&B with minimal changes—ideal for multi-generational living. Large garage/shop includes a rooftop patio. Greenhouse grows tropical fruit and is fully automated. Room potentially for a second home or carriage house. Property has 7 acres of producing cherries, creek with concrete bridge, and two road frontages with water/power access. Irrigation and domestic water supplied by the Irrigation District. Enjoy horseback riding, fishing, and hiking without leaving the area. Quiet, dry climate with minimal snowfall and mild falls. Snow melts quickly on the paved driveway. Eligible for crop insurance, AgriInvest, and replant programs. Includes tractor, flail mower, tiller, pallet forks, man lift, and totes. A one-of-a-kind property! (id:62650)

Read More
Basic Details
  • Property Type: Farm
  • Listing Type: For Sale
  • Listing ID: 10355076
  • Price: $3,900,000
  • Bedrooms: 3
  • Bathrooms: 3
  • View: Mountain view,River view,Valley view,Unknown
  • Square Footage: 4,410 Sqft
  • Year Built: 2010
  • Status: Active
  • Property Sub Type: Agriculture
  • Roof:
  • Office Key: 286425
Features & Appliances
Features
  • Heating System: Heat Pump, Other, Forced air, See remarks
  • Cooling System: Heat Pump, Central air conditioning
  • Fence: Fence, Page Wire
  • Fireplace: Gas, Wood, Unknown, Conventional
  • Parking: Detached Garage, Additional Parking, Stall, Oversize, See Remarks
  • Exterior Features: Stone
  • Flooring: Laminate, Ceramic Tile, Hardwood, Linoleum
  • Utilities: Water, Natural Gas, Electricity, Sewer, Cable, Telephone
  • Waterfront Features: Waterfront on creek
  • Fireplaces Total: 2
Address Map
  • Location: CA, British Columbia, Keremeos, V0X1N2
  • Street: MIDDLE BENCH
  • Street Number: 2626
  • Street Suffix: Road
  • Longitude: W120° 11' 50.8''
  • Latitude: N49° 12' 42.5''
Additional Information
  • Water Source:
  • Community Features:
  • Lot Features:
  • Lot Size Dimensions: 9.61
  • Stories: 2.0
Financial
  • Tax Annual Amount: 5318.5
Powered by REALTOR.ca
Listing updated: 2026-05-17 21:36:03
List Your Property
Mortgage Calculator
Get Pre-Approved
$
$
%
%
years
Monthly Payment (Est.) $
Similar Properties
Listing Information
  • List Agent Key: 2087527
  • List Office Key: 286425
  • Modification Timestamp: 2026-02-12T17:45:34Z
  • Originating System Name: Association of Interior REALTORS®
  • Status Change Timestamp: 2026-02-12T17:30:39Z
Powered by REALTOR.ca
Listing updated: 2026-05-17 21:36:03
REALTOR®, REALTORS®, and the REALTOR® logo are certification marks that are owned by REALTOR® Canada Inc. and licensed exclusively to The Canadian Real Estate Association (CREA). These certification marks identify real estate professionals who are members of CREA and who must abide by CREA’s By‐Laws, Rules, and the REALTOR® Code. The MLS® trademark and the MLS® logo are owned by CREA and identify the quality of services provided by real estate professionals who are members of CREA.

The information contained on this site is based in whole or in part on information that is provided by members of The Canadian Real Estate Association, who are responsible for its accuracy. CREA reproduces and distributes this information as a service for its members and assumes no responsibility for its accuracy.

Website is operated by a brokerage or salesperson who is a member of The Canadian Real Estate Association.

The listing content on this website is protected by copyright and other laws, and is intended solely for the private, non‐commercial use by individuals. Any other reproduction, distribution or use of the content, in whole or in part, is specifically forbidden. The prohibited uses include commercial use, “screen scraping”, “database scraping”, and any other activity intended to collect, store, reorganize or manipulate data on the pages produced by or displayed on this website.

By continuing to use this website and its services, you agree to these

These forms are provided to ComFree’s Unrepresented Sellers as a part of their Mere Posting ComFree Listing Contract.

I acknowledge I can only access these forms as a ComFree customer under contract.

These forms are provided to ComFree’s Unrepresented Sellers as a part of their Mere Posting ComFree Listing Contract and in partnership with Zubic Law.

I acknowledge I can only access these forms as a ComFree customer under contract.

These forms are provided to ComFree’s Unrepresented Sellers as a part of their Mere Posting ComFree Listing Contract and in partnership with Zubic Law.

I acknowledge I can only access these forms as a ComFree customer under contract.

How It Works

1. Purchase Your Package

2. We Ship Your ‘For Sale’ Sign

3. Book Your VR Tour

4. Complete Listing Input Forms

5. We Make Your Listing Live

6. Get Support 7 Days a Week

7. iSOLD!