Share
$549,900
Nova Scotia,South Brookfield
For Sale Active
7602 Highway 8, South Brookfield, Nova Scotia B0T1X0
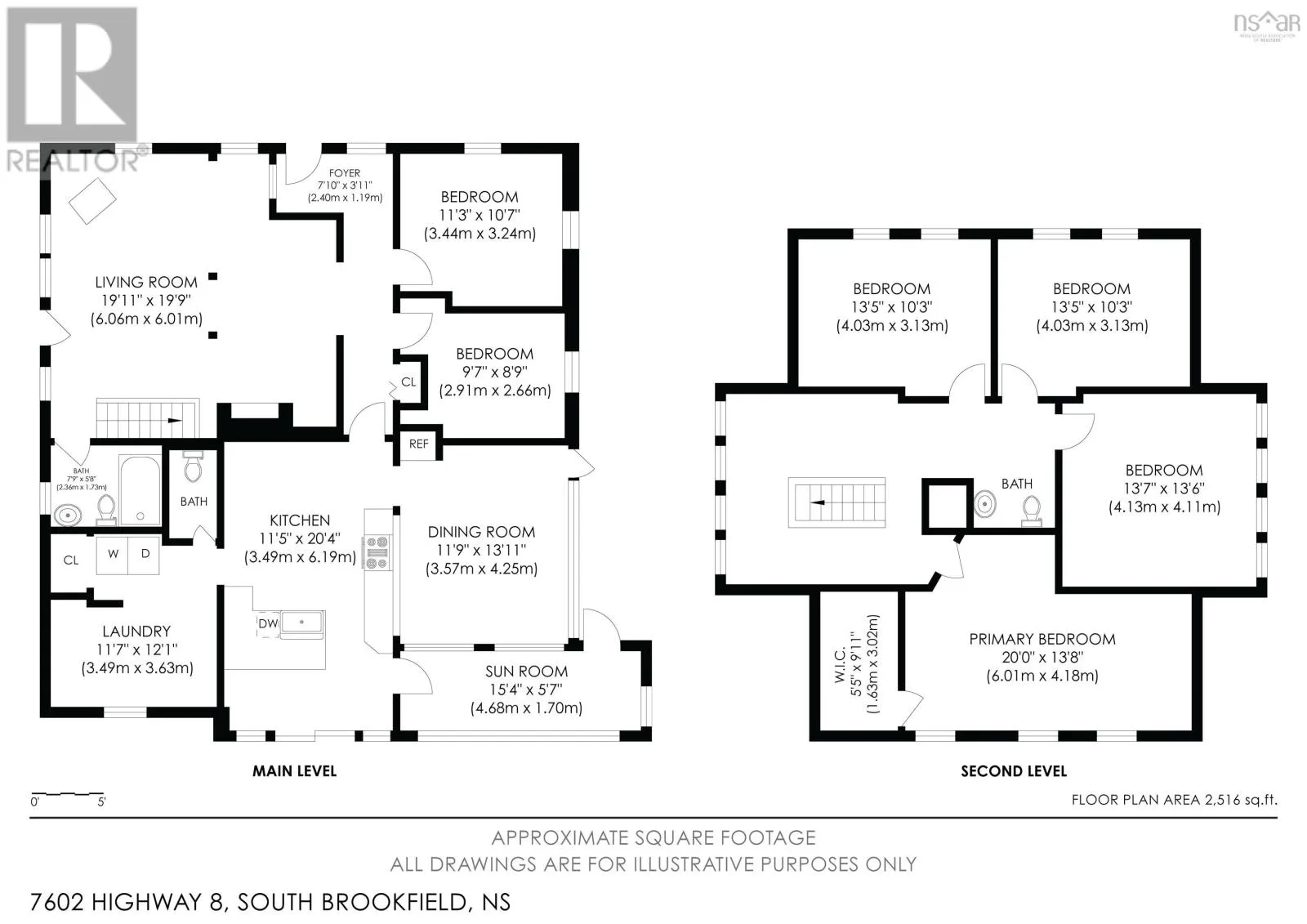
  • 6
  • 3
  • 2,516 Sqft
Basic Details
Description

Wowimprovements galore! A brand-new 3-piece bathroom upstairs now makes this a 2 full bath, 1 half bath home. Enjoy the newly updated pantry, new boat launch, and new loft steps and storage in the garagethe list goes on, so come see for yourself! Introducing the transformed Bear Trap Lodge, now an inviting and historic home in South Brookfield. Spanning approximately

3.5 acres, this estate boasts roughly 700 feet of prime lake frontage on Bear Trap Lake, which seamlessly connects to Ponhook Lake, offering picturesque water views and endless recreational opportunities. The property features a spacious main residence with six generously sized bedrooms, perfect for accommodating family and guests. Additional highlights include a 3-year-old two-bay heated garage, ideal for year-round convenience, and a cozy bunkie, providing a charming retreat or extra living space. Various outbuildings are also available, offering flexibility for hobbies, storage, or future projects. With its tranquil setting and versatile amenities, this property is a prime candidate for an AirBnB venture, making it an attractive option for both investors and those seeking a serene getaway. This unique property combines historical charm with modern potential, offering a rare opportunity to enjoy a peaceful lifestyle or capitalize on a lucrative investment. (id:62650)

Read More
Basic Details
  • Property Type: Residential
  • Listing Type: For Sale
  • Listing ID: 202421696
  • Price: $549,900
  • Bedrooms: 6
  • Bathrooms: 3
  • Half Bathrooms: 1
  • Square Footage: 2,516 Sqft
  • Year Built: 1922
  • Status: Active
  • Property Sub Type: Single Family
  • Office Key: 56193
Features & Appliances
Features
  • Cooling System: Heat Pump
  • Basement: Crawl space
  • Parking: Detached Garage, Garage, Gravel
  • Exterior Features: Wood shingles
  • Flooring: Hardwood
  • Sewer: Septic System
  • Waterfront Features: Waterfront on lake
Address Map
  • Location: CA, Nova Scotia, South Brookfield, B0T1X0
  • Street: Highway 8
  • Street Number: 7602
  • Longitude: W65° 2' 46.6''
  • Latitude: N44° 19' 9.6''
Additional Information
  • Water Source:
  • Accessibility Features:
  • Community Features:
  • Foundation Details:
  • Lot Features:
  • Lot Size Dimensions: 3.48
  • Stories: 2.0
Powered by REALTOR.ca
Listing updated: 2026-04-25 08:28:03
List Your Property
Mortgage Calculator
Get Pre-Approved
$
$
%
%
years
Monthly Payment (Est.) $
Similar Properties
Listing Information
  • List Agent Key: 2206160
  • List Office Key: 56193
  • Modification Timestamp: 2026-04-07T15:45:31Z
  • Originating System Name: Nova Scotia Association of REALTORS®
  • Status Change Timestamp: 2026-04-07T15:40:13Z
Powered by REALTOR.ca
Listing updated: 2026-04-25 08:28:03
REALTOR®, REALTORS®, and the REALTOR® logo are certification marks that are owned by REALTOR® Canada Inc. and licensed exclusively to The Canadian Real Estate Association (CREA). These certification marks identify real estate professionals who are members of CREA and who must abide by CREA’s By‐Laws, Rules, and the REALTOR® Code. The MLS® trademark and the MLS® logo are owned by CREA and identify the quality of services provided by real estate professionals who are members of CREA.

The information contained on this site is based in whole or in part on information that is provided by members of The Canadian Real Estate Association, who are responsible for its accuracy. CREA reproduces and distributes this information as a service for its members and assumes no responsibility for its accuracy.

Website is operated by a brokerage or salesperson who is a member of The Canadian Real Estate Association.

The listing content on this website is protected by copyright and other laws, and is intended solely for the private, non‐commercial use by individuals. Any other reproduction, distribution or use of the content, in whole or in part, is specifically forbidden. The prohibited uses include commercial use, “screen scraping”, “database scraping”, and any other activity intended to collect, store, reorganize or manipulate data on the pages produced by or displayed on this website.

By continuing to use this website and its services, you agree to these

These forms are provided to ComFree’s Unrepresented Sellers as a part of their Mere Posting ComFree Listing Contract.

I acknowledge I can only access these forms as a ComFree customer under contract.

These forms are provided to ComFree’s Unrepresented Sellers as a part of their Mere Posting ComFree Listing Contract and in partnership with Zubic Law.

I acknowledge I can only access these forms as a ComFree customer under contract.

These forms are provided to ComFree’s Unrepresented Sellers as a part of their Mere Posting ComFree Listing Contract and in partnership with Zubic Law.

I acknowledge I can only access these forms as a ComFree customer under contract.

How It Works

1. Purchase Your Package

2. We Ship Your ‘For Sale’ Sign

3. Book Your VR Tour

4. Complete Listing Input Forms

5. We Make Your Listing Live

6. Get Support 7 Days a Week

7. iSOLD!