Share
$1,399,990
Ontario,Selwyn
For Sale Active
72 DARLING DRIVE, Selwyn, Ontario K0L2W0
  • 3
  • 4
  • 2000 - 2500Square Feet
Basic Details
Description

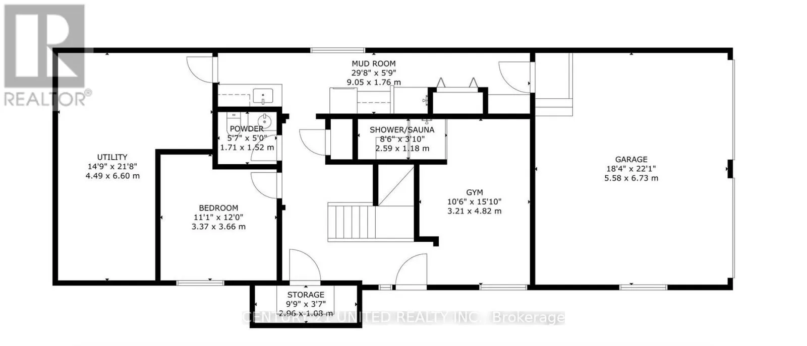
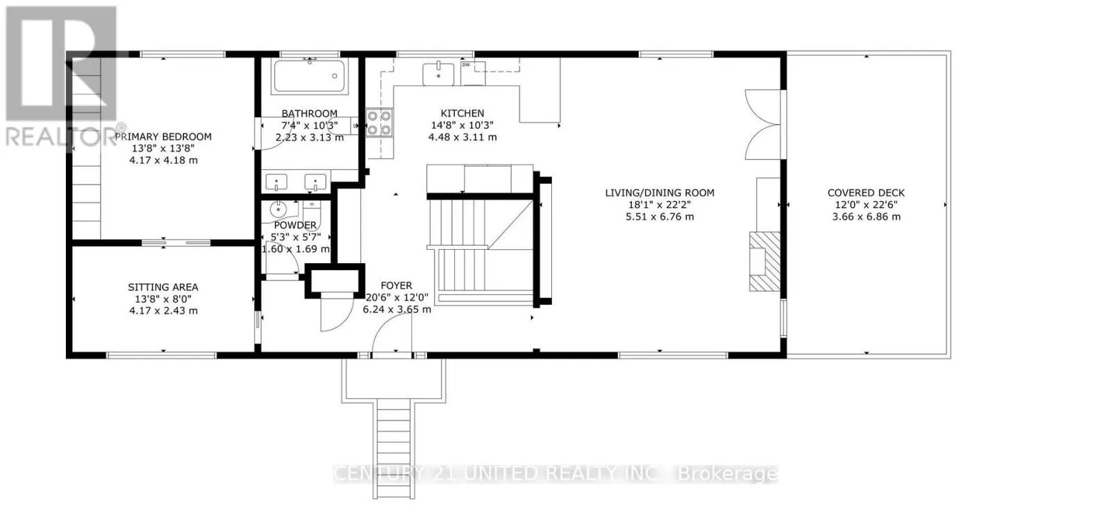
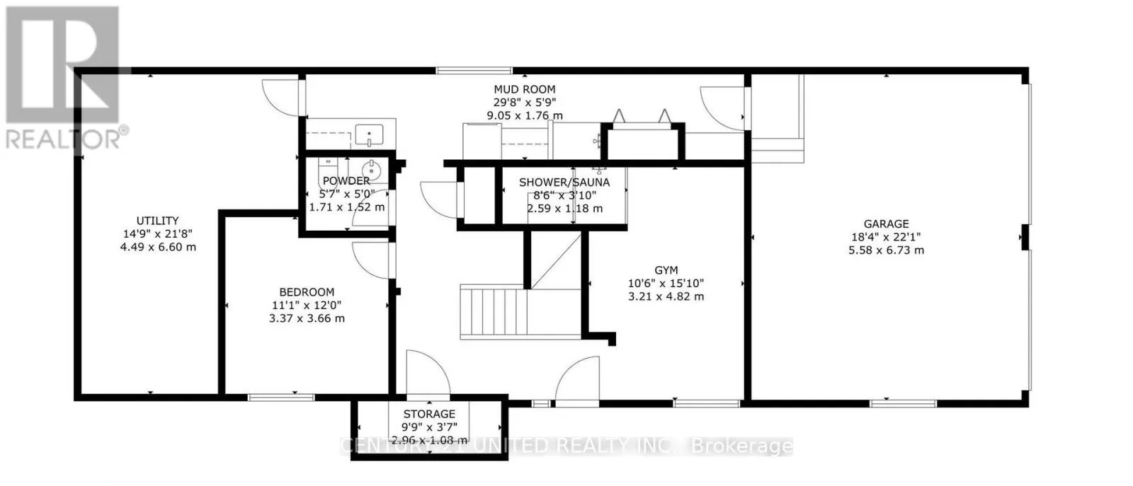
13-foot vaulted ceilings. Exposed timber beams. Expansive lake views. Deeded waterfront access with private dock use. Architecturally intentional and expertly engineered, this 2020 Discovery Dream Home was designed for those who value privacy, elevation, and refined everyday living. Set high on a double lot with sweeping lake views, the home offers deeded waterfront access with a private dock use-delivering a

lakeside lifestyle without the maintenance of direct waterfront ownership. Inside, 13 foot soaring slanted vaulted ceilings, exposed timber beams, and precision craftsmanship define the open, light-filled interior. The layout was purposefully designed for couples, professionals, executives, or those seeking to downsize without compromise-prioritizing spacious living areas, privacy, and lifestyle amenities over additional bedrooms. The home features two generous bedrooms and a dedicated sauna and gym retreat with shower-easily adapted to become an additional 3rd bedroom space if desired. The primary suite offers a luxurious ensuite with soaker tub, while two additional powder rooms support both daily living and entertaining. An oversized deck with a 13 foot slanted vaulted ceiling extends the main living space year-round, positioned to capture the surrounding lake and natural setting. Armour stone landscaping, established gardens, and a double heated garage complement the home’s elevated setting-shared by neighbouring executive residences along the hillside. Additional features include a lifetime-warranty roof, Energy Star-rated windows and doors, generator hook up in shed and meticulous attention to long-term performance and comfort throughout. Located just 10 minutes to Peterborough and approximately one hour to the GTA, this is a rare opportunity for buyers seeking architectural beauty, privacy, and a home designed around lifestyle. (id:62650)

Read More
Basic Details
  • Property Type: Residential
  • Listing Type: For Sale
  • Listing ID: X12347817
  • Price: $1,399,990
  • Bedrooms: 3
  • Bathrooms: 4
  • Half Bathrooms: 3
  • View: Lake view,View of water
  • Square Footage: 2000 - 2500 Sqft
  • Status: Active
  • Property Sub Type: Single Family
  • Office Key: 283178
Features & Appliances
Features
  • Heating System: Forced air, Natural gas
  • Cooling System: Central air conditioning
  • Basement: Finished, Separate entrance, N/A, Walk out
  • Parking: Garage, Attached Garage
  • Architectural Style: Raised bungalow
  • Exterior Features: Wood
  • Flooring: Hardwood, Concrete
  • Sewer: Septic System
  • Utilities: Electricity Connected, Natural Gas Available, Electricity, Cable, Wireless, Telephone
  • Waterfront Features: Waterfront
Address Map
  • Location: CA, Ontario, Selwyn, K0L2W0
  • Street: Darling
  • Street Number: 72
  • Street Suffix: Drive
  • Longitude: W79° 33' 23.3''
  • Latitude: N44° 20' 47.9''
Additional Information
  • Water Body Name: Chemong Lake
  • Water Source:
  • Community Features:
  • Foundation Details:
  • Lot Features:
  • Lot Size Dimensions: 207.4 x 150 FT
  • Stories: 1.0
Financial
  • Tax Annual Amount: 3827.93
Powered by REALTOR.ca
Listing updated: 2026-04-26 07:50:42
List Your Property
Mortgage Calculator
Get Pre-Approved
$
$
%
%
years
Monthly Payment (Est.) $
Listing Information
  • List Agent Key: 2073385
  • List Office Key: 283178
  • Modification Timestamp: 2026-04-26T11:50:57Z
  • Originating System Name: Central Lakes Association of REALTORS®
  • Status Change Timestamp: 2026-04-26T11:39:54Z
Powered by REALTOR.ca
Listing updated: 2026-04-26 07:50:42
REALTOR®, REALTORS®, and the REALTOR® logo are certification marks that are owned by REALTOR® Canada Inc. and licensed exclusively to The Canadian Real Estate Association (CREA). These certification marks identify real estate professionals who are members of CREA and who must abide by CREA’s By‐Laws, Rules, and the REALTOR® Code. The MLS® trademark and the MLS® logo are owned by CREA and identify the quality of services provided by real estate professionals who are members of CREA.

The information contained on this site is based in whole or in part on information that is provided by members of The Canadian Real Estate Association, who are responsible for its accuracy. CREA reproduces and distributes this information as a service for its members and assumes no responsibility for its accuracy.

Website is operated by a brokerage or salesperson who is a member of The Canadian Real Estate Association.

The listing content on this website is protected by copyright and other laws, and is intended solely for the private, non‐commercial use by individuals. Any other reproduction, distribution or use of the content, in whole or in part, is specifically forbidden. The prohibited uses include commercial use, “screen scraping”, “database scraping”, and any other activity intended to collect, store, reorganize or manipulate data on the pages produced by or displayed on this website.

By continuing to use this website and its services, you agree to these

These forms are provided to ComFree’s Unrepresented Sellers as a part of their Mere Posting ComFree Listing Contract.

I acknowledge I can only access these forms as a ComFree customer under contract.

These forms are provided to ComFree’s Unrepresented Sellers as a part of their Mere Posting ComFree Listing Contract and in partnership with Zubic Law.

I acknowledge I can only access these forms as a ComFree customer under contract.

These forms are provided to ComFree’s Unrepresented Sellers as a part of their Mere Posting ComFree Listing Contract and in partnership with Zubic Law.

I acknowledge I can only access these forms as a ComFree customer under contract.

How It Works

1. Purchase Your Package

2. We Ship Your ‘For Sale’ Sign

3. Book Your VR Tour

4. Complete Listing Input Forms

5. We Make Your Listing Live

6. Get Support 7 Days a Week

7. iSOLD!