Share
$20
Ontario,Elmira
For Rent Active
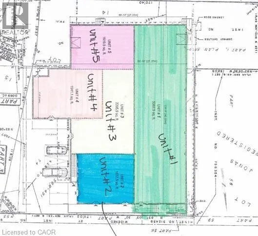
25 CHURCH Street W Unit# 3, Elmira, Ontario N3B1M2
  • 2,296 Sqft
Contact Seller
Basic Details
Description

Prime Commercial Lease Opportunity in Elmira An exciting opportunity is available in one of Elmira’s most visible and high-traffic locations. This commercial property, zoned C1 for maximum flexibility, is currently undergoing modern renovations that will transform the space into a fresh and contemporary environment. The upgrades are designed to enhance both the interior and exterior, creating an

inviting setting for retail, office, restaurant, fitness, medical, and a wide range of professional uses. A key advantage of this property is that it offers multiple unit sizes and configurations, making it adaptable to businesses both large and small. Its excellent street exposure provides outstanding visibility, while the thriving commercial corridor ensures consistent traffic and a supportive business environment. Leasing now allows tenants to secure space in this prime location as the renovations progress, with the opportunity to select a size and layout best suited to their needs. Contact us today for full leasing details and information on the spaces currently available. (id:62650)

Read More
Basic Details
  • Property Type: Commercial Lease
  • Listing Type: For Rent
  • Listing ID: 40770110
  • Price: $20
  • Square Footage: 2,296 Sqft
  • Year Built: 1973
  • Status: Active
  • Property Sub Type: Retail
  • Office Key: 289722
Features & Appliances
Features
  • Basement: None
  • Exterior Features: Concrete
  • Sewer: Municipal sewage system
Address Map
  • Location: CA, Ontario, Elmira, 550 - Elmira, N3B1M2
  • Street: CHURCH
  • Street Number: 25
  • Street Suffix: Street
  • Longitude: W81° 26' 27.2''
  • Latitude: N43° 35' 59.5''
  • Street Dir Suffix: West
Additional Information
  • Water Source:
  • Community Features:
  • Construction Materials:
  • Foundation Details:
  • Stories: 1.0
Financial
  • Association Fee Includes:
Powered by REALTOR.ca
Listing updated: 2026-05-07 09:35:45
List Your Property
Similar Properties
Listing Information
  • List Agent Key: 1564479
  • List Office Key: 289722
  • Modification Timestamp: 2025-09-17T22:10:42Z
  • Originating System Name: Cornerstone Association of Realtors
  • Status Change Timestamp: 2025-09-17T22:02:21Z
Powered by REALTOR.ca
Listing updated: 2026-05-07 09:35:45
REALTOR®, REALTORS®, and the REALTOR® logo are certification marks that are owned by REALTOR® Canada Inc. and licensed exclusively to The Canadian Real Estate Association (CREA). These certification marks identify real estate professionals who are members of CREA and who must abide by CREA’s By‐Laws, Rules, and the REALTOR® Code. The MLS® trademark and the MLS® logo are owned by CREA and identify the quality of services provided by real estate professionals who are members of CREA.

The information contained on this site is based in whole or in part on information that is provided by members of The Canadian Real Estate Association, who are responsible for its accuracy. CREA reproduces and distributes this information as a service for its members and assumes no responsibility for its accuracy.

Website is operated by a brokerage or salesperson who is a member of The Canadian Real Estate Association.

The listing content on this website is protected by copyright and other laws, and is intended solely for the private, non‐commercial use by individuals. Any other reproduction, distribution or use of the content, in whole or in part, is specifically forbidden. The prohibited uses include commercial use, “screen scraping”, “database scraping”, and any other activity intended to collect, store, reorganize or manipulate data on the pages produced by or displayed on this website.

By continuing to use this website and its services, you agree to these

These forms are provided to ComFree’s Unrepresented Sellers as a part of their Mere Posting ComFree Listing Contract.

I acknowledge I can only access these forms as a ComFree customer under contract.

These forms are provided to ComFree’s Unrepresented Sellers as a part of their Mere Posting ComFree Listing Contract and in partnership with Zubic Law.

I acknowledge I can only access these forms as a ComFree customer under contract.

These forms are provided to ComFree’s Unrepresented Sellers as a part of their Mere Posting ComFree Listing Contract and in partnership with Zubic Law.

I acknowledge I can only access these forms as a ComFree customer under contract.

How It Works

1. Purchase Your Package

2. We Ship Your ‘For Sale’ Sign

3. Book Your VR Tour

4. Complete Listing Input Forms

5. We Make Your Listing Live

6. Get Support 7 Days a Week

7. iSOLD!