Share
$27
Ontario,Toronto (Oakwood Village)
For Rent Active
(MAIN LEVEL) - 473 OAKWOOD AVENUE, Toronto (Oakwood Village), Ontario M6E2W4
  • 3,434 Sqft
Contact Seller
Basic Details
Description

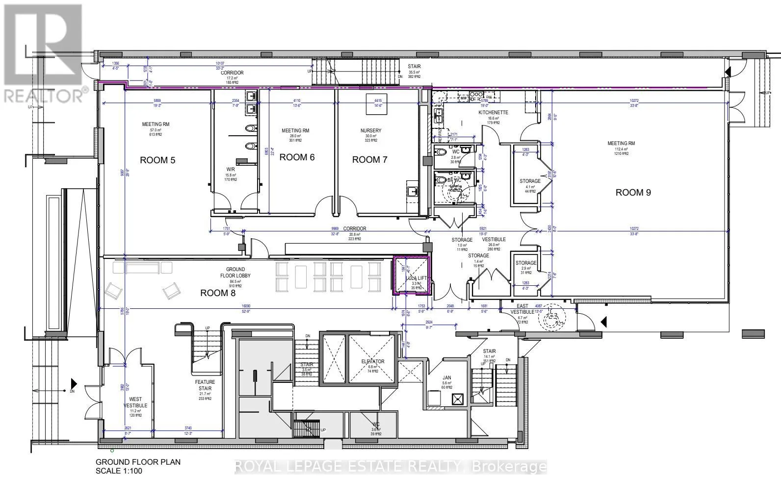
Renovations are complete and the flagship main floor of our new building is available forlease. A short walk south of Eglinton CrossTown, or north from St Clair streetcar, thisrevitalizing area is perfect for your uptown west business. Large main floor perfect for Yoga,Dance, Marshall Arts, Fitness, or Wellness group activities, recreational children’s children’sprograms or tutoring. Includes floor-to-ceiling windows and a

covered outdoor area. The 3434square foot area may be divided into private, smaller rooms.Let your business enjoy the partnership with the landlord, other tenants and communities. Enjoyno additional utility and internet charges (all included in rent). Enjoy lower GST charges andproperty tax charges (due to Landlord status as a church). Enjoy preferential access to theupstairs event spaces. Elevator access to accessible washrooms. (id:62650)

Read More
Basic Details
  • Property Type: Commercial Lease
  • Listing Type: For Rent
  • Listing ID: C12437656
  • Price: $27
  • Square Footage: 3,434 Sqft
  • Status: Active
  • Property Sub Type: Institutional - Special Purpose
  • Office Key: 278982
Features & Appliances
Features
  • Heating System: Electric, Forced air
  • Cooling System: Fully air conditioned
Address Map
  • Location: CA, Ontario, Toronto (Oakwood Village), M6E2W4
  • Street: Oakwood
  • Street Number: 473
  • Street Suffix: Avenue
  • Longitude: W80° 33' 36.5''
  • Latitude: N43° 41' 27.9''
Additional Information
  • Water Source:
  • Lot Features:
  • Lot Size Dimensions: 77.27 x 169.12 FT
Financial
  • Tax Annual Amount: 14.32
Powered by REALTOR.ca
Listing updated: 2026-05-01 23:00:26
List Your Property
Listing Information
  • List Agent Key: 2020479
  • List Office Key: 278982
  • Modification Timestamp: 2026-04-15T04:20:09Z
  • Originating System Name: Toronto Regional Real Estate Board
  • Status Change Timestamp: 2026-04-15T04:14:33Z
Powered by REALTOR.ca
Listing updated: 2026-05-01 23:00:26
REALTOR®, REALTORS®, and the REALTOR® logo are certification marks that are owned by REALTOR® Canada Inc. and licensed exclusively to The Canadian Real Estate Association (CREA). These certification marks identify real estate professionals who are members of CREA and who must abide by CREA’s By‐Laws, Rules, and the REALTOR® Code. The MLS® trademark and the MLS® logo are owned by CREA and identify the quality of services provided by real estate professionals who are members of CREA.

The information contained on this site is based in whole or in part on information that is provided by members of The Canadian Real Estate Association, who are responsible for its accuracy. CREA reproduces and distributes this information as a service for its members and assumes no responsibility for its accuracy.

Website is operated by a brokerage or salesperson who is a member of The Canadian Real Estate Association.

The listing content on this website is protected by copyright and other laws, and is intended solely for the private, non‐commercial use by individuals. Any other reproduction, distribution or use of the content, in whole or in part, is specifically forbidden. The prohibited uses include commercial use, “screen scraping”, “database scraping”, and any other activity intended to collect, store, reorganize or manipulate data on the pages produced by or displayed on this website.

By continuing to use this website and its services, you agree to these

These forms are provided to ComFree’s Unrepresented Sellers as a part of their Mere Posting ComFree Listing Contract.

I acknowledge I can only access these forms as a ComFree customer under contract.

These forms are provided to ComFree’s Unrepresented Sellers as a part of their Mere Posting ComFree Listing Contract and in partnership with Zubic Law.

I acknowledge I can only access these forms as a ComFree customer under contract.

These forms are provided to ComFree’s Unrepresented Sellers as a part of their Mere Posting ComFree Listing Contract and in partnership with Zubic Law.

I acknowledge I can only access these forms as a ComFree customer under contract.

How It Works

1. Purchase Your Package

2. We Ship Your ‘For Sale’ Sign

3. Book Your VR Tour

4. Complete Listing Input Forms

5. We Make Your Listing Live

6. Get Support 7 Days a Week

7. iSOLD!