Share
$949,800
Alberta,Medicine Hat
For Sale Active
662 16 Street SW, Medicine Hat, Alberta T1A4X1
  • 8,000 Sqft
Contact Seller
Basic Details
Description

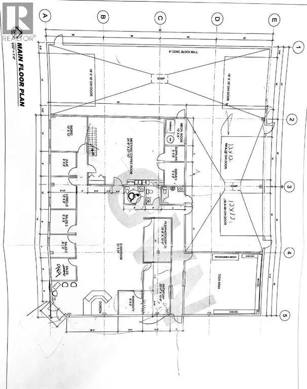
Explore endless possibilities with this 8,000-square-foot industrial building in a prime location! Step into the main building, where there is a spacious retail/showroom area, complete with a front desk, private office spaces, a meeting/coffee room, and two bathrooms. There is a large mezzanine, ideal for inventory management or additional storage needs. The bay section of the building features two 12×12

overhead doors and two 18×16 overhead doors, arranged tandem-style.  Additionally, find another bathroom and a dedicated technical area to accommodate diverse business requirements. Outside, a generously sized paved parking lot ensures ample space for staff and clientele. Situated in the bustling southwest industrial area, this property has high visibility for drive-by traffic, enhancing its appeal to businesses seeking prime exposure and convenience. Don’t miss out on this amazing opportunity! (id:64429)

Read More
Basic Details
  • Property Type: Commercial Sale
  • Listing Type: For Sale
  • Listing ID: A2127332
  • Price: $949,800
  • Square Footage: 8,000 Sqft
  • Year Built: 2002
  • Status: Active
  • Property Sub Type: Industrial
  • Office Key: 295873
Address Map
  • Location: CA, Alberta, Medicine Hat, South West Industrial, T1A4X1
  • Street: 16
  • Street Number: 662
  • Street Suffix: Street
  • Longitude: W111° 17' 53.6''
  • Latitude: N50° 1' 28.6''
  • Street Dir Suffix: Southwest
Financial
  • Tax Annual Amount: 19040
Powered by REALTOR.ca
Listing updated: 2026-05-17 05:32:11
List Your Property
Mortgage Calculator
Get Pre-Approved
$
$
%
%
years
Monthly Payment (Est.) $
Similar Properties
Listing Information
  • List Agent Key: 1987954
  • List Office Key: 295873
  • Modification Timestamp: 2026-03-16T16:10:04Z
  • Originating System Name: Medicine Hat Real Estate Board Co-op
  • Status Change Timestamp: 2026-03-16T16:04:20Z
Powered by REALTOR.ca
Listing updated: 2026-05-17 05:32:11
REALTOR®, REALTORS®, and the REALTOR® logo are certification marks that are owned by REALTOR® Canada Inc. and licensed exclusively to The Canadian Real Estate Association (CREA). These certification marks identify real estate professionals who are members of CREA and who must abide by CREA’s By‐Laws, Rules, and the REALTOR® Code. The MLS® trademark and the MLS® logo are owned by CREA and identify the quality of services provided by real estate professionals who are members of CREA.

The information contained on this site is based in whole or in part on information that is provided by members of The Canadian Real Estate Association, who are responsible for its accuracy. CREA reproduces and distributes this information as a service for its members and assumes no responsibility for its accuracy.

Website is operated by a brokerage or salesperson who is a member of The Canadian Real Estate Association.

The listing content on this website is protected by copyright and other laws, and is intended solely for the private, non‐commercial use by individuals. Any other reproduction, distribution or use of the content, in whole or in part, is specifically forbidden. The prohibited uses include commercial use, “screen scraping”, “database scraping”, and any other activity intended to collect, store, reorganize or manipulate data on the pages produced by or displayed on this website.

By continuing to use this website and its services, you agree to these

These forms are provided to ComFree’s Unrepresented Sellers as a part of their Mere Posting ComFree Listing Contract.

I acknowledge I can only access these forms as a ComFree customer under contract.

These forms are provided to ComFree’s Unrepresented Sellers as a part of their Mere Posting ComFree Listing Contract and in partnership with Zubic Law.

I acknowledge I can only access these forms as a ComFree customer under contract.

These forms are provided to ComFree’s Unrepresented Sellers as a part of their Mere Posting ComFree Listing Contract and in partnership with Zubic Law.

I acknowledge I can only access these forms as a ComFree customer under contract.

How It Works

1. Purchase Your Package

2. We Ship Your ‘For Sale’ Sign

3. Book Your VR Tour

4. Complete Listing Input Forms

5. We Make Your Listing Live

6. Get Support 7 Days a Week

7. iSOLD!