Share
$1,265,000
Ontario,Northern Bruce Peninsula
For Sale Active
165 SIMPSON AVENUE, Northern Bruce Peninsula, Ontario N0H2R0
  • 3
  • 1
  • 1100 - 1500Square Feet
Basic Details
Description

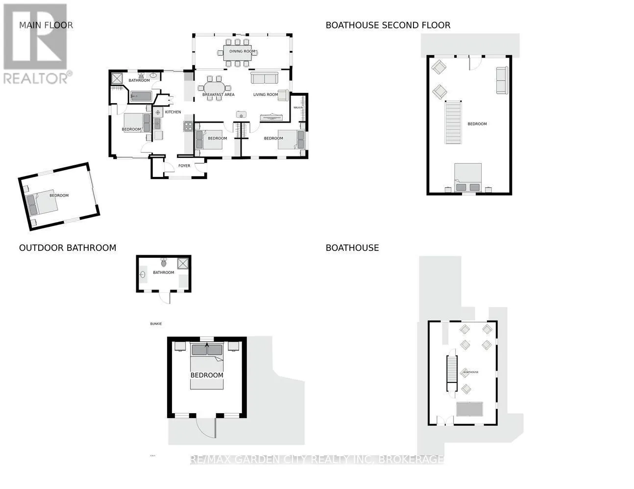
A Rare Waterfront Gem on Lake Huron! Don’t miss this exceptional opportunity to own a four-season home or cottage on the pristine shores of Lake Huron. With 170 feet of gradual shoreline, this beautifully maintained property offers the perfect setting for unforgettable lakeside living. The main residence, 1179 sq. ft. of thoughtfully designed space, features one-level living with 3 bedrooms

and a 4-piece bath. An open concept living and dining area is filled with natural light, showcasing picturesque lake views and a cozy woodstove. The modern kitchen includes stone countertops, under-cabinet lighting, and convenient built-in laundry. This turn-key retreat also includes a dry boathouse, detached garage, and charming guest accommodations. The boathouse is a perfect place to unwind, relax, or play games – rain or shine. The upper-level suite offers panoramic lake views from a private balcony, ideal for guests or extended family. The additional bunkies with hydro provide extra comfort and versatility. Outdoor living is at its finest here! Entertain with ease using the outdoor grill station, or relax along stone pathways that lead through landscaped grounds, designed for privacy and beauty. Swim, kayak, or simply take in the stunning sunsets over the lake – the clean, rocky shoreline is perfect for it all. Located just a short drive from Tobermorys shops, restaurants, and recreational attractions, this property offers a unique blend of serenity and convenience. Whether you’re seeking a peaceful getaway or a place to host family and friends, this Lake Huron retreat is ready to welcome you. Are you ready to explore? (id:62650)

Read More
Basic Details
  • Property Type: Residential
  • Listing Type: For Sale
  • Listing ID: X12364186
  • Price: $1,265,000
  • Bedrooms: 3
  • Bathrooms: 1
  • View: Lake view,View of water,Direct Water View
  • Square Footage: 1100 - 1500 Sqft
  • Status: Active
  • Property Sub Type: Single Family
  • Office Key: 75354
Features & Appliances
Features
  • Heating System: Electric, Baseboard heaters
  • Cooling System: None
  • Basement: None
  • Parking: Detached Garage, Garage
  • Architectural Style: Bungalow
  • Exterior Features: Wood
  • Flooring: Tile, Hardwood
  • Sewer: Septic System
  • Utilities: Electricity Connected, Electricity, Wireless, Telephone
  • Waterfront Features: Waterfront on lake
  • Fireplaces Total: 1
Address Map
  • Location: CA, Ontario, Northern Bruce Peninsula, N0H2R0
  • Street: Simpson
  • Street Number: 165
  • Street Suffix: Avenue
  • Longitude: W82° 18' 25.4''
  • Latitude: N45° 14' 35.2''
Additional Information
  • Water Body Name: Lake Huron
  • Water Source:
  • Foundation Details:
  • Lot Features:
  • Lot Size Dimensions: 70 x 120 FT ; See surveys in Documents
  • Stories: 1.0
Financial
  • Tax Annual Amount: 3584
Powered by REALTOR.ca
Listing updated: 2026-04-16 17:06:50
List Your Property
Mortgage Calculator
Get Pre-Approved
$
$
%
%
years
Monthly Payment (Est.) $
Listing Information
  • List Agent Key: 2204916
  • List Office Key: 75354
  • Modification Timestamp: 2026-04-11T16:15:10Z
  • Originating System Name: Niagara Association of REALTORS®
  • Status Change Timestamp: 2026-04-11T16:05:16Z
Powered by REALTOR.ca
Listing updated: 2026-04-16 17:06:50
REALTOR®, REALTORS®, and the REALTOR® logo are certification marks that are owned by REALTOR® Canada Inc. and licensed exclusively to The Canadian Real Estate Association (CREA). These certification marks identify real estate professionals who are members of CREA and who must abide by CREA’s By‐Laws, Rules, and the REALTOR® Code. The MLS® trademark and the MLS® logo are owned by CREA and identify the quality of services provided by real estate professionals who are members of CREA.

The information contained on this site is based in whole or in part on information that is provided by members of The Canadian Real Estate Association, who are responsible for its accuracy. CREA reproduces and distributes this information as a service for its members and assumes no responsibility for its accuracy.

Website is operated by a brokerage or salesperson who is a member of The Canadian Real Estate Association.

The listing content on this website is protected by copyright and other laws, and is intended solely for the private, non‐commercial use by individuals. Any other reproduction, distribution or use of the content, in whole or in part, is specifically forbidden. The prohibited uses include commercial use, “screen scraping”, “database scraping”, and any other activity intended to collect, store, reorganize or manipulate data on the pages produced by or displayed on this website.

By continuing to use this website and its services, you agree to these

These forms are provided to ComFree’s Unrepresented Sellers as a part of their Mere Posting ComFree Listing Contract.

I acknowledge I can only access these forms as a ComFree customer under contract.

These forms are provided to ComFree’s Unrepresented Sellers as a part of their Mere Posting ComFree Listing Contract and in partnership with Zubic Law.

I acknowledge I can only access these forms as a ComFree customer under contract.

These forms are provided to ComFree’s Unrepresented Sellers as a part of their Mere Posting ComFree Listing Contract and in partnership with Zubic Law.

I acknowledge I can only access these forms as a ComFree customer under contract.

How It Works

1. Purchase Your Package

2. We Ship Your ‘For Sale’ Sign

3. Book Your VR Tour

4. Complete Listing Input Forms

5. We Make Your Listing Live

6. Get Support 7 Days a Week

7. iSOLD!