Share
$12
Ontario,London East (East F)
For Rent Active
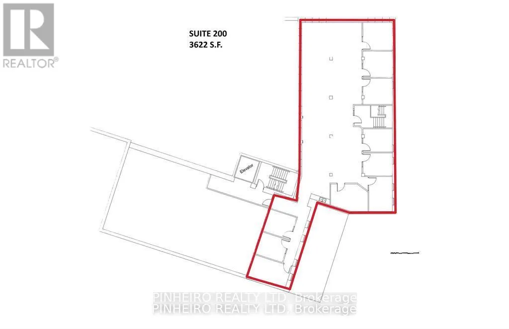
200 - 123 ST GEORGE STREET, London East (East F), Ontario N6A3A1
  • 2
  • 3,622 Sqft
Contact Seller
Basic Details
Description

*** $12.00 per sq ft for first two years of a five year term and THREE MONTHS FREE GROSS RENT OFFERED TO TENANTS ON A FIVE YEAR LEASE TERM*** Turn Key, completely renovated, professional office space located near Oxford St. & Richmond St. for lease. Approx. 3,622 sq ft. on the 2nd floor. Multiple private offices, open areas for

different cubicle configuration, copying station, kitchen area and coffee bar. Welcoming front door entrance, lots of natural light w/ windows on all sides and some offices having skylights. Building has elevator access to all floors and is fully sprinklered. **Approx. 7 onsite parking spaces in a controlled private lot included in rent.** Easy access to transit, downtown and UWO. Also available is approx. 3,767 sq ft. on the lower level, (see MLS X12441135 for listing). Additional rent for 2025 is $9.00 / sf. Tenant responsible for utility costs. Possession date can be immediate depending on tenants needs. A minimum of 24 hours notice is required for all showings as Listing Agent needs to be present. Do not go direct, all inquiries and tours through LA at landlords request. (id:62650)

Read More
Basic Details
  • Property Type: Commercial Lease
  • Listing Type: For Rent
  • Listing ID: X11952833
  • Price: $12
  • Bathrooms: 2
  • Square Footage: 3,622 Sqft
  • Status: Active
  • Property Sub Type: Office
  • Office Key: 47241
Features & Appliances
Features
  • Heating System: Electric, Forced air
  • Cooling System: Fully air conditioned
Address Map
  • Location: CA, Ontario, London East (East F), N6A3A1
  • Street: St George
  • Street Number: 123
  • Street Suffix: Street
  • Longitude: W82° 44' 41.3''
  • Latitude: N42° 59' 38.5''
Additional Information
  • Water Source:
  • Business Type: Other
  • Lot Features:
  • Lot Size Dimensions: 156.64 x 412 FT
Powered by REALTOR.ca
Listing updated: 2026-05-11 00:27:14
List Your Property
Listing Information
  • List Agent Key: 1761771
  • List Office Key: 47241
  • Modification Timestamp: 2026-02-06T17:40:23Z
  • Originating System Name: London and St. Thomas Association of REALTORS®
  • Status Change Timestamp: 2026-02-06T17:21:31Z
Powered by REALTOR.ca
Listing updated: 2026-05-11 00:27:14
REALTOR®, REALTORS®, and the REALTOR® logo are certification marks that are owned by REALTOR® Canada Inc. and licensed exclusively to The Canadian Real Estate Association (CREA). These certification marks identify real estate professionals who are members of CREA and who must abide by CREA’s By‐Laws, Rules, and the REALTOR® Code. The MLS® trademark and the MLS® logo are owned by CREA and identify the quality of services provided by real estate professionals who are members of CREA.

The information contained on this site is based in whole or in part on information that is provided by members of The Canadian Real Estate Association, who are responsible for its accuracy. CREA reproduces and distributes this information as a service for its members and assumes no responsibility for its accuracy.

Website is operated by a brokerage or salesperson who is a member of The Canadian Real Estate Association.

The listing content on this website is protected by copyright and other laws, and is intended solely for the private, non‐commercial use by individuals. Any other reproduction, distribution or use of the content, in whole or in part, is specifically forbidden. The prohibited uses include commercial use, “screen scraping”, “database scraping”, and any other activity intended to collect, store, reorganize or manipulate data on the pages produced by or displayed on this website.

By continuing to use this website and its services, you agree to these

These forms are provided to ComFree’s Unrepresented Sellers as a part of their Mere Posting ComFree Listing Contract.

I acknowledge I can only access these forms as a ComFree customer under contract.

These forms are provided to ComFree’s Unrepresented Sellers as a part of their Mere Posting ComFree Listing Contract and in partnership with Zubic Law.

I acknowledge I can only access these forms as a ComFree customer under contract.

These forms are provided to ComFree’s Unrepresented Sellers as a part of their Mere Posting ComFree Listing Contract and in partnership with Zubic Law.

I acknowledge I can only access these forms as a ComFree customer under contract.

How It Works

1. Purchase Your Package

2. We Ship Your ‘For Sale’ Sign

3. Book Your VR Tour

4. Complete Listing Input Forms

5. We Make Your Listing Live

6. Get Support 7 Days a Week

7. iSOLD!