Share
$609,900
Ontario,Stratford
For Sale Active
67 DIXON ROAD, Stratford, Ontario N5A6X9
  • 3
  • 2
  • 1,100 Sqft
Basic Details
Description

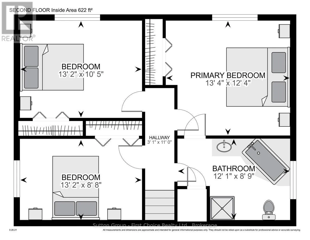
The Perfect Family Home in Highly Desirable Bedford Ward. Welcome home to a meticulously maintained 3-bedroom back split located in a stellar, family-focused neighbourhood, this residence showcases pride of ownership in every corner. The home itself boasts an exceptional layout, offering the functional separation and family feel that back splits are famous for. Move-in ready and incredibly well-kept, this property

is truly turn-key. Convenience is priority with the direct access attached garage, simplifying grocery runs and winter mornings. The kitchen comes fully equipped, as the home includes all major appliances, making your transition seamless. Nestled in Bedford Ward, your family will benefit from a fantastic location with easy access to schools, parks, and essential amenities. (id:59439)

Read More
Basic Details
  • Property Type: Residential
  • Listing Type: For Sale
  • Listing ID: X12453815
  • Price: $609,900
  • Bedrooms: 3
  • Bathrooms: 2
  • Square Footage: 1,100 Sqft
  • Status: Active
  • Property Sub Type: Single Family
  • Office Key: 65141
Features & Appliances
Features
  • Heating System: Forced air, Natural gas
  • Cooling System: Central air conditioning
  • Basement: Finished, N/A
  • Parking: Garage, Attached Garage
  • Exterior Features: Brick, Aluminum siding
  • Sewer: Sanitary sewer
  • Fireplaces Total: 1
Address Map
  • Location: CA, Ontario, Stratford, N5A6X9
  • Street: Dixon
  • Street Number: 67
  • Street Suffix: Road
  • Longitude: W81° 1' 49.7''
  • Latitude: N43° 23' 7.8''
Additional Information
  • Water Source:
  • Foundation Details:
  • Lot Size Dimensions: 55 x 115 FT
Financial
  • Tax Annual Amount: 4609
Powered by REALTOR.ca
Listing updated: 2025-10-26 16:31:20
List Your Property
Mortgage Calculator
Get Pre-Approved
$
$
%
%
years
Monthly Payment (Est.) $
Similar Properties
Listing Information
  • List Agent Key: 1627374
  • List Office Key: 65141
  • Modification Timestamp: 2025-10-22T19:15:23Z
  • Originating System Name: OnePoint Association of REALTORS®
  • Status Change Timestamp: 2025-10-22T19:03:03Z
Powered by REALTOR.ca
Listing updated: 2025-10-26 16:31:20

These forms are provided to ComFree’s Unrepresented Sellers as a part of their Mere Posting ComFree Listing Contract.

I acknowledge I can only access these forms as a ComFree customer under contract.

These forms are provided to ComFree’s Unrepresented Sellers as a part of their Mere Posting ComFree Listing Contract and in partnership with Zubic Law.

I acknowledge I can only access these forms as a ComFree customer under contract.

These forms are provided to ComFree’s Unrepresented Sellers as a part of their Mere Posting ComFree Listing Contract and in partnership with Zubic Law.

I acknowledge I can only access these forms as a ComFree customer under contract.

How It Works

1. Purchase Your Package

2. We Ship Your ‘For Sale’ Sign

3. Book Your VR Tour

4. Complete Listing Input Forms

5. We Make Your Listing Live

6. Get Support 7 Days a Week

7. iSOLD!