Share
$699,000
Ontario,Saugeen Shores
For Sale Active
102 EAGLE COURT, Saugeen Shores, Ontario N0H2C3
  • 2
  • 2
  • 1200 - 1399Square Feet
Basic Details
Description

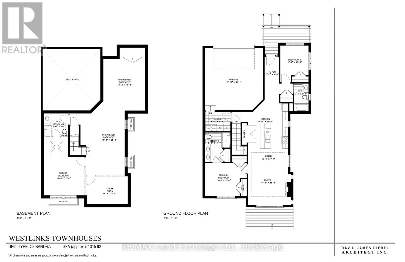
Welcome to the Westlinks Development-Phase 3 Condominium Townhouses. Block F Unit # 22 (see site plan). The SANDRA model is a bright exterior unit with a double-car garage. It offers a spacious plan with an open concept kitchen, dining area, living room, plus two bedrooms, an ensuite bathroom, a four-piece guest bathroom, laundry & large foyer. There is a full,

unfinished basement with a bathroom rough-in. Ask about the basement finishing package and other additional upgrade selections. If you act fast, you can personalize your home before construction starts. Located on the edge of Port Elgin, close to all amenities, Westlinks is a front porch community suitable for all ages. There is a 12-hole links-style golf course, a tennis/pickle-ball court, workout/fitness room, all with membership privileges and included in the condo fees. Serviced by a private condo road, natural gas, municipal water and sewer. The photos are not of this property but of another finished model, which will give you a sense of the floor plan and finishes. The exterior photo is the builder’s conceptual drawing. Property taxes and property assessment are to be determined. Don’t miss your chance to secure one of these condos at the Westlinks development. HST is included if the buyer qualifies for a rebate & assigns it to the seller. (id:62650)

Read More
Basic Details
  • Property Type: Residential
  • Listing Type: For Sale
  • Listing ID: X12151576
  • Price: $699,000
  • Bedrooms: 2
  • Bathrooms: 2
  • Square Footage: 1200 - 1399 Sqft
  • Status: Active
  • Property Attached Yn: 1
  • Property Sub Type: Single Family
  • Office Key: 81675
Features & Appliances
Features
  • Heating System: Forced air, Natural gas
  • Cooling System: None, Air exchanger
  • Basement: Full, Unfinished
  • Parking: Garage, Attached Garage
  • Architectural Style: Bungalow
  • Exterior Features: Vinyl siding
Address Map
  • Location: CA, Ontario, Saugeen Shores, N0H2C3
  • Street: Eagle
  • Street Number: 102
  • Street Suffix: Court
  • Longitude: W82° 37' 43.2''
  • Latitude: N44° 29' 42.9''
Additional Information
  • Community Features:
  • Foundation Details:
  • Lot Features:
  • Stories: 1.0
Financial
  • Association Fee: 500
  • Association Fee Frequency: Monthly
  • Association Fee Includes:
Powered by REALTOR.ca
Listing updated: 2026-04-27 14:38:40
List Your Property
Mortgage Calculator
Get Pre-Approved
$
$
%
%
years
Monthly Payment (Est.) $
Listing Information
  • List Agent Key: 1907410
  • List Office Key: 81675
  • Modification Timestamp: 2026-04-19T15:35:03Z
  • Originating System Name: OnePoint Association of REALTORS®
  • Status Change Timestamp: 2026-04-19T15:27:37Z
Powered by REALTOR.ca
Listing updated: 2026-04-27 14:38:40
REALTOR®, REALTORS®, and the REALTOR® logo are certification marks that are owned by REALTOR® Canada Inc. and licensed exclusively to The Canadian Real Estate Association (CREA). These certification marks identify real estate professionals who are members of CREA and who must abide by CREA’s By‐Laws, Rules, and the REALTOR® Code. The MLS® trademark and the MLS® logo are owned by CREA and identify the quality of services provided by real estate professionals who are members of CREA.

The information contained on this site is based in whole or in part on information that is provided by members of The Canadian Real Estate Association, who are responsible for its accuracy. CREA reproduces and distributes this information as a service for its members and assumes no responsibility for its accuracy.

Website is operated by a brokerage or salesperson who is a member of The Canadian Real Estate Association.

The listing content on this website is protected by copyright and other laws, and is intended solely for the private, non‐commercial use by individuals. Any other reproduction, distribution or use of the content, in whole or in part, is specifically forbidden. The prohibited uses include commercial use, “screen scraping”, “database scraping”, and any other activity intended to collect, store, reorganize or manipulate data on the pages produced by or displayed on this website.

By continuing to use this website and its services, you agree to these

These forms are provided to ComFree’s Unrepresented Sellers as a part of their Mere Posting ComFree Listing Contract.

I acknowledge I can only access these forms as a ComFree customer under contract.

These forms are provided to ComFree’s Unrepresented Sellers as a part of their Mere Posting ComFree Listing Contract and in partnership with Zubic Law.

I acknowledge I can only access these forms as a ComFree customer under contract.

These forms are provided to ComFree’s Unrepresented Sellers as a part of their Mere Posting ComFree Listing Contract and in partnership with Zubic Law.

I acknowledge I can only access these forms as a ComFree customer under contract.

How It Works

1. Purchase Your Package

2. We Ship Your ‘For Sale’ Sign

3. Book Your VR Tour

4. Complete Listing Input Forms

5. We Make Your Listing Live

6. Get Support 7 Days a Week

7. iSOLD!