Share
$794,900
Ontario,London South (South U)
For Sale Active
1597 CHICKADEE TRAIL, London South (South U), Ontario N6M1G4
  • 4
  • 3
  • 1500 - 2000Square Feet
Contact Seller
Basic Details
Description

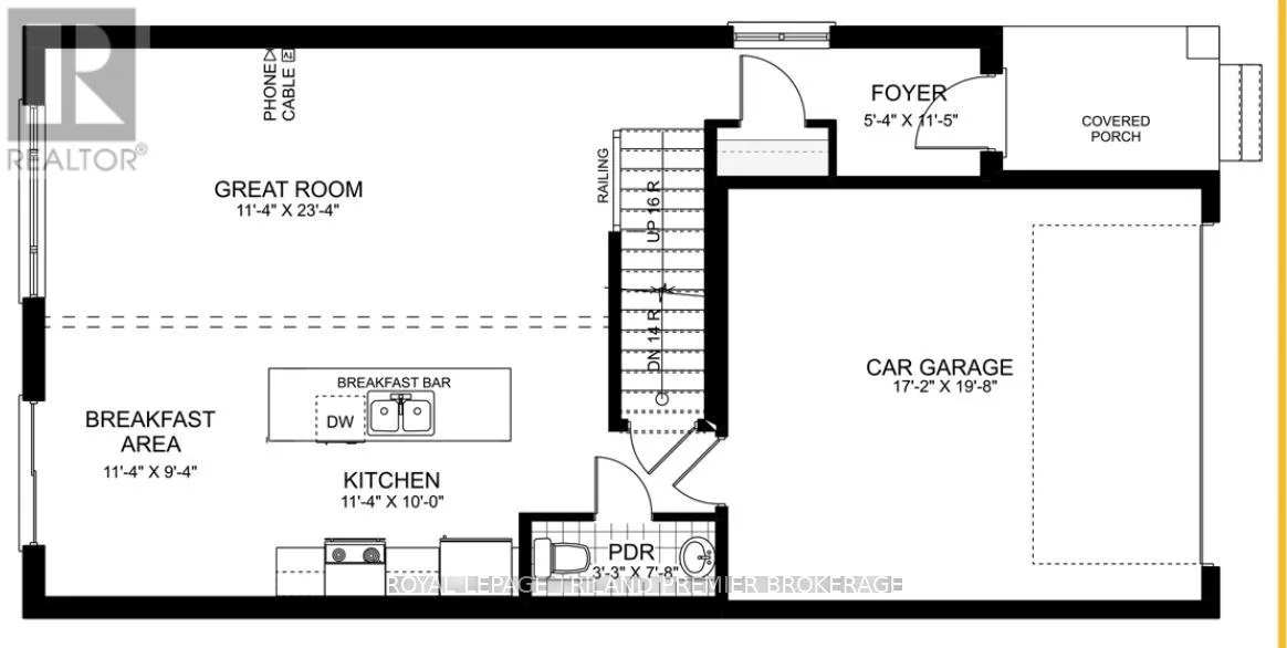
TO BE BUILT! Sunlight Heritage Homes presents The Broderick. 1949 sq ft of expertly designed living space located in desirable Old Victoria on the Thames. Enter into the generous open concept main level featuring kitchen with quartz countertops, 36″ upper cabinets with valance and crown moulding, microwave shelf and island with breakfast bar; great room with 9′ ceilings and large

bright window, dinette with sliding door access to the backyard and convenient main floor 2-piece bathroom. The upper level includes 4 spacious bedrooms including primary suite with walk in closet and 4-piece ensuite with double sinks; laundry closet and main bathroom. Other standard inclusions: Hardwood flooring throughout main level (except bathroom), 5′ patio slider, 9′ ceilings on main level, bathroom rough-in in basement, drywalled garage and more! Other lots and plans to choose from. Photos are from previous model and show upgraded items. (id:62650)

Read More
Basic Details
  • Property Type: Residential
  • Listing Type: For Sale
  • Listing ID: X12455087
  • Price: $794,900
  • Bedrooms: 4
  • Bathrooms: 3
  • Half Bathrooms: 1
  • Square Footage: 1500 - 2000 Sqft
  • Status: Active
  • Property Sub Type: Single Family
  • Office Key: 278188
Features & Appliances
Features
  • Heating System: Forced air, Natural gas
  • Cooling System: Central air conditioning
  • Basement: Full, Unfinished
  • Parking: Garage, Attached Garage
  • Exterior Features: Brick, Vinyl siding
  • Sewer: Sanitary sewer
Address Map
  • Location: CA, Ontario, London South (South U), N6M1G4
  • Street: CHICKADEE
  • Street Number: 1597
  • Street Suffix: Trail
  • Longitude: W82° 51' 25.9''
  • Latitude: N42° 57' 56.6''
Additional Information
  • Water Source:
  • Foundation Details:
  • Lot Features:
  • Lot Size Dimensions: 38 x 98 FT
  • Stories: 2.0
Powered by REALTOR.ca
Listing updated: 2026-04-25 05:09:09
List Your Property
Mortgage Calculator
Get Pre-Approved
$
$
%
%
years
Monthly Payment (Est.) $
Listing Information
  • List Agent Key: 2009875
  • List Office Key: 278188
  • Modification Timestamp: 2025-10-28T00:46:19Z
  • Originating System Name: London and St. Thomas Association of REALTORS®
  • Status Change Timestamp: 2025-10-28T00:28:07Z
Powered by REALTOR.ca
Listing updated: 2026-04-25 05:09:09
REALTOR®, REALTORS®, and the REALTOR® logo are certification marks that are owned by REALTOR® Canada Inc. and licensed exclusively to The Canadian Real Estate Association (CREA). These certification marks identify real estate professionals who are members of CREA and who must abide by CREA’s By‐Laws, Rules, and the REALTOR® Code. The MLS® trademark and the MLS® logo are owned by CREA and identify the quality of services provided by real estate professionals who are members of CREA.

The information contained on this site is based in whole or in part on information that is provided by members of The Canadian Real Estate Association, who are responsible for its accuracy. CREA reproduces and distributes this information as a service for its members and assumes no responsibility for its accuracy.

Website is operated by a brokerage or salesperson who is a member of The Canadian Real Estate Association.

The listing content on this website is protected by copyright and other laws, and is intended solely for the private, non‐commercial use by individuals. Any other reproduction, distribution or use of the content, in whole or in part, is specifically forbidden. The prohibited uses include commercial use, “screen scraping”, “database scraping”, and any other activity intended to collect, store, reorganize or manipulate data on the pages produced by or displayed on this website.

By continuing to use this website and its services, you agree to these

These forms are provided to ComFree’s Unrepresented Sellers as a part of their Mere Posting ComFree Listing Contract.

I acknowledge I can only access these forms as a ComFree customer under contract.

These forms are provided to ComFree’s Unrepresented Sellers as a part of their Mere Posting ComFree Listing Contract and in partnership with Zubic Law.

I acknowledge I can only access these forms as a ComFree customer under contract.

These forms are provided to ComFree’s Unrepresented Sellers as a part of their Mere Posting ComFree Listing Contract and in partnership with Zubic Law.

I acknowledge I can only access these forms as a ComFree customer under contract.

How It Works

1. Purchase Your Package

2. We Ship Your ‘For Sale’ Sign

3. Book Your VR Tour

4. Complete Listing Input Forms

5. We Make Your Listing Live

6. Get Support 7 Days a Week

7. iSOLD!