Share
$689,900
Ontario,Tillsonburg
For Sale Active
8 HIGHLAND DRIVE, Tillsonburg, Ontario N4G2E9
  • 4
  • 2
  • 2,000 Sqft
Basic Details
Description

Magnificent Mid Century Modern Estate! This first time offered for sale home is located at the end of a quiet cul-de-sac in the always desirable Cadman Subdivision. This picturesque ravine lot is over 1/3 acre and provides total tranquility plus easy access to all amenities. Conveniently located very close to schools, hospital, shopping, grocery, playgrounds and park (just down the

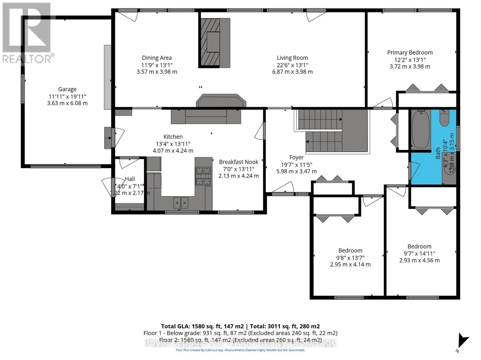
street), golf, trails, and beautiful Lake Lisgar. This home and property has been lovingly cared for while ensuring its historical provenance remains preserved. The home’s classic 1960’s appeal, custom mill work, soaring main floor wood ceilings, hardwood, and classically appointed principal rooms must be seen to be fully appreciated! The home features 4 bedrooms & 2 full bathrooms. Enter into the spacious tiled Foyer and you’ll be in immediate awe! Main floor eat-in kitchen is right off the garage and side entrance (ultra easy for bringing groceries in), 3 main floor bedrooms, 4 pc. bathroom, spectacular living room with gas fireplace overlooking the ravine, formal dining room. Two man doors lead to the back porch which spans the length of the upper level. The walk-out lower level adds so much additional living space. There is an additional 4th bedroom, 4 pc. bathroom, family room with a second gas fireplace, laundry room, storage room, and mechanical room. This is a truly spectacular find! Seldom does such a special home and property come available for sale. (id:62650)

Read More
Basic Details
  • Property Type: Residential
  • Listing Type: For Sale
  • Listing ID: X12473469
  • Price: $689,900
  • Bedrooms: 4
  • Bathrooms: 2
  • Square Footage: 2,000 Sqft
  • Status: Active
  • Property Sub Type: Single Family
  • Office Key: 49415
Features & Appliances
Features
  • Heating System: Forced air, Natural gas
  • Cooling System: Central air conditioning
  • Basement: Finished, N/A, Walk out
  • Fireplace: Insert
  • Parking: Garage, Attached Garage
  • Architectural Style: Bungalow
  • Exterior Features: Brick, Steel
  • Sewer: Sanitary sewer
  • Utilities: Electricity, Sewer, Cable
  • Fireplaces Total: 2
Address Map
  • Location: CA, Ontario, Tillsonburg, N4G2E9
  • Street: Highland
  • Street Number: 8
  • Street Suffix: Drive
  • Longitude: W81° 17' 16.8''
  • Latitude: N42° 51' 41.4''
Additional Information
  • Water Source:
  • Community Features:
  • Foundation Details:
  • Lot Features:
  • Lot Size Dimensions: 55 x 150 FT
  • Stories: 1.0
Financial
  • Tax Annual Amount: 4517.5
Powered by REALTOR.ca
Listing updated: 2025-10-27 15:12:09
List Your Property
Mortgage Calculator
Get Pre-Approved
$
$
%
%
years
Monthly Payment (Est.) $
Similar Properties
Listing Information
  • List Agent Key: 2004806
  • List Office Key: 49415
  • Modification Timestamp: 2025-10-23T00:47:04Z
  • Originating System Name: Woodstock Ingersoll Tillsonburg and Area Association of REALTORS® (WITAAR)
  • Status Change Timestamp: 2025-10-23T00:28:44Z
Powered by REALTOR.ca
Listing updated: 2025-10-27 15:12:09

These forms are provided to ComFree’s Unrepresented Sellers as a part of their Mere Posting ComFree Listing Contract.

I acknowledge I can only access these forms as a ComFree customer under contract.

These forms are provided to ComFree’s Unrepresented Sellers as a part of their Mere Posting ComFree Listing Contract and in partnership with Zubic Law.

I acknowledge I can only access these forms as a ComFree customer under contract.

These forms are provided to ComFree’s Unrepresented Sellers as a part of their Mere Posting ComFree Listing Contract and in partnership with Zubic Law.

I acknowledge I can only access these forms as a ComFree customer under contract.

How It Works

1. Purchase Your Package

2. We Ship Your ‘For Sale’ Sign

3. Book Your VR Tour

4. Complete Listing Input Forms

5. We Make Your Listing Live

6. Get Support 7 Days a Week

7. iSOLD!