Share
$2,449,000
British Columbia,Vernon
For Sale Active
6924 / 6926 Old Kamloops Road, Vernon, British Columbia V1H1W1
  • 4,500 Sqft
Basic Details
Description

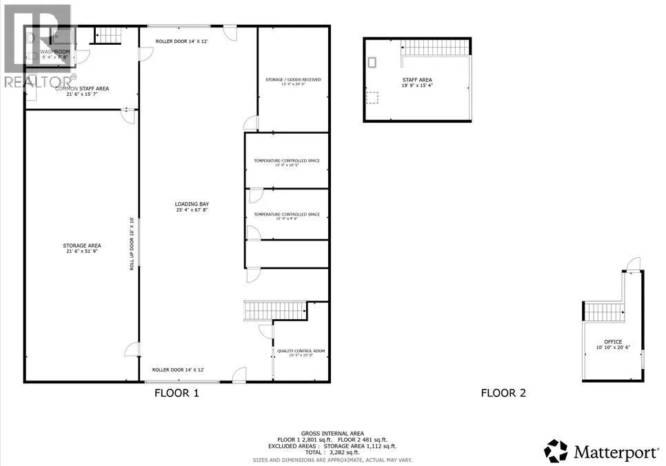
23 Private Acres | Dual Titles | Swan Lake Views | C.R. Zoning + ALR | Minutes to Vernon A rare chance to own a highly versatile 23 acre property just minutes from town, offering privacy, elevated Swan Lake views, and valuable infrastructure already in place. Set back from the road and surrounded by natural landscape, this unique holding combines

seclusion, convenience, and outstanding potential. Property Highlights: • 23 acres across 2 separate titles • Country Residential zoning + located in the ALR • 600 amp electrical service • Municipal agricultural water supply • Domestic water available at lot line • New septic system installed • Renovated 4,500+ sq.ft. main building • 1,250 sq.ft. secondary building / production space This is not raw land the property is improved with meaningful infrastructure that can save years of time and substantial development costs compared to many vacant acreage parcels. Ideal for a private estate, hobby farm, agricultural venture, home-based business, or long-term land investment. Enjoy the rare combination of space, privacy, views, and proximity to Vernon’s shops, schools, and amenities. Large acreages this close to town with two titles, services, and existing buildings are increasingly hard to find. Full property package available upon request. (id:62650)

Read More
Basic Details
  • Property Type: Other
  • Listing Type: For Sale
  • Listing ID: 10366349
  • Price: $2,449,000
  • Square Footage: 4,500 Sqft
  • Year Built: 2005
  • Status: Active
  • Property Sub Type: Other
  • Roof:
  • Office Key: 47795
Features & Appliances
Features
  • Heating System: Other, Forced air, See remarks
  • Cooling System: Wall unit
  • Parking: Additional Parking, RV
  • Exterior Features: Metal
  • Utilities: Water, Electricity, Sewer, Telephone
Address Map
  • Location: CA, British Columbia, Vernon, V1H1W1
  • Street: Old Kamloops
  • Street Suffix: Road
  • Longitude: W120° 43' 47''
  • Latitude: N50° 18' 38.7''
Additional Information
  • Water Source:
  • Community Features:
  • Current Use:
  • Lot Features:
  • Lot Size Dimensions: 23
Financial
  • Tax Annual Amount: 593.61
Powered by REALTOR.ca
Listing updated: 2026-05-16 23:32:46
List Your Property
Mortgage Calculator
Get Pre-Approved
$
$
%
%
years
Monthly Payment (Est.) $
Similar Properties
Listing Information
  • List Agent Key: 2068898
  • List Office Key: 47795
  • Modification Timestamp: 2026-04-24T19:30:44Z
  • Originating System Name: Association of Interior REALTORS®
  • Status Change Timestamp: 2026-04-24T19:22:37Z
Powered by REALTOR.ca
Listing updated: 2026-05-16 23:32:47
REALTOR®, REALTORS®, and the REALTOR® logo are certification marks that are owned by REALTOR® Canada Inc. and licensed exclusively to The Canadian Real Estate Association (CREA). These certification marks identify real estate professionals who are members of CREA and who must abide by CREA’s By‐Laws, Rules, and the REALTOR® Code. The MLS® trademark and the MLS® logo are owned by CREA and identify the quality of services provided by real estate professionals who are members of CREA.

The information contained on this site is based in whole or in part on information that is provided by members of The Canadian Real Estate Association, who are responsible for its accuracy. CREA reproduces and distributes this information as a service for its members and assumes no responsibility for its accuracy.

Website is operated by a brokerage or salesperson who is a member of The Canadian Real Estate Association.

The listing content on this website is protected by copyright and other laws, and is intended solely for the private, non‐commercial use by individuals. Any other reproduction, distribution or use of the content, in whole or in part, is specifically forbidden. The prohibited uses include commercial use, “screen scraping”, “database scraping”, and any other activity intended to collect, store, reorganize or manipulate data on the pages produced by or displayed on this website.

By continuing to use this website and its services, you agree to these

These forms are provided to ComFree’s Unrepresented Sellers as a part of their Mere Posting ComFree Listing Contract.

I acknowledge I can only access these forms as a ComFree customer under contract.

These forms are provided to ComFree’s Unrepresented Sellers as a part of their Mere Posting ComFree Listing Contract and in partnership with Zubic Law.

I acknowledge I can only access these forms as a ComFree customer under contract.

These forms are provided to ComFree’s Unrepresented Sellers as a part of their Mere Posting ComFree Listing Contract and in partnership with Zubic Law.

I acknowledge I can only access these forms as a ComFree customer under contract.

How It Works

1. Purchase Your Package

2. We Ship Your ‘For Sale’ Sign

3. Book Your VR Tour

4. Complete Listing Input Forms

5. We Make Your Listing Live

6. Get Support 7 Days a Week

7. iSOLD!