Share
$499,000
British Columbia,Castlegar
For Sale Active
3732 Toba Road Unit# 3, Castlegar, British Columbia V1N4Y3
  • 2
  • 2
  • 1,273 Sqft
Contact Seller
Basic Details
Description

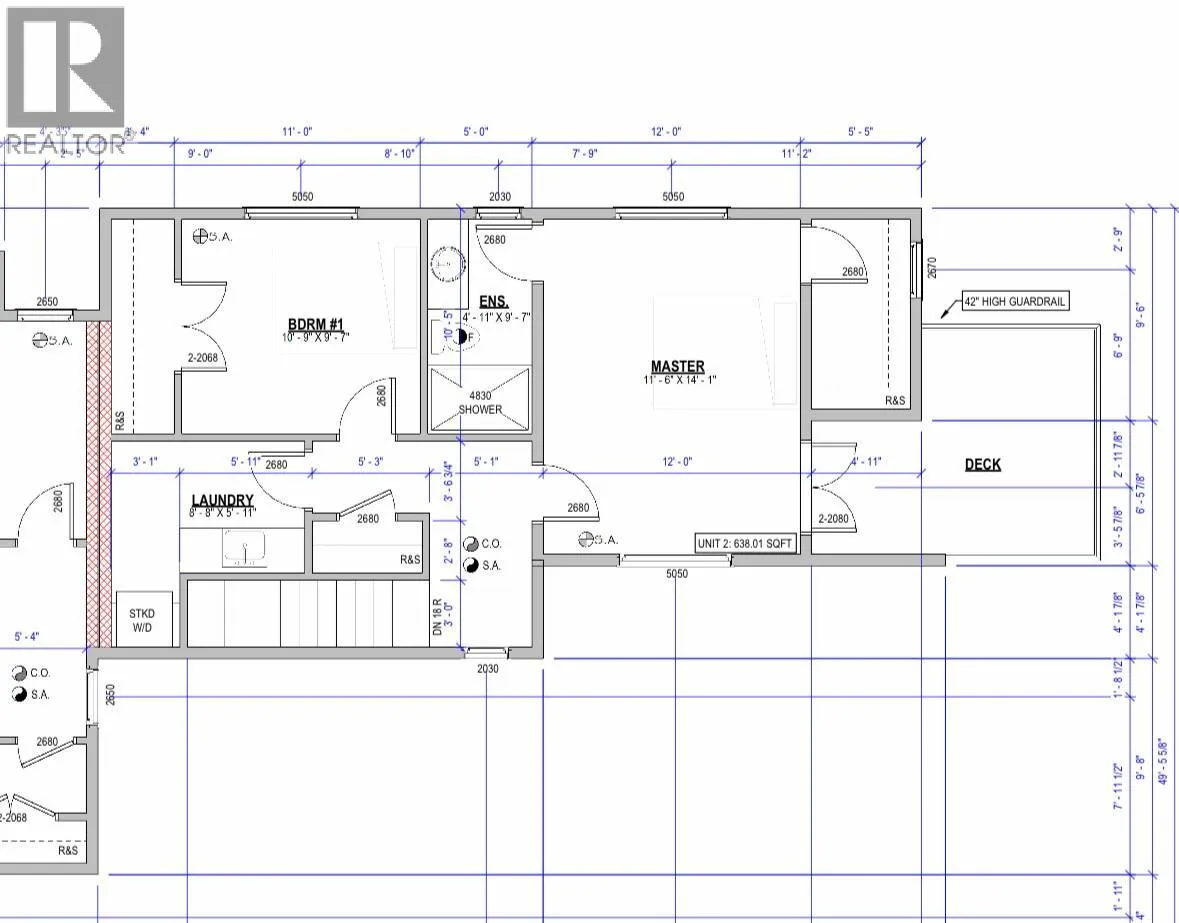
Luxury Modern Living Meets Nature! Discover 3 stunning brand-new units to choose from in this beautifully designed modern triplex. Each home offers 2 spacious bedrooms and 2 bathrooms, thoughtfully designed with high-end finishes throughout. The primary suite features a generous walk-in closet, a stylish ensuite, and patio doors leading to a private sundeck, the perfect place to take in mountain

views. Enjoy the bright, open concept living space with over height ceilings, recessed lighting, and large windows that fill the home with natural light. Additional highlights include: EV charger, 5 appliances included, electric garage door opener, blinds and window screens, BBQ gas connection, roughed in central vac. Each unit comes with a single car garage plus additional driveway parking. Experience luxury, comfort, and the beauty of nature, all in one exceptional new home! Estimated completion for 2026 (id:62650)

Read More
Basic Details
  • Property Type: Residential
  • Listing Type: For Sale
  • Listing ID: 10366746
  • Price: $499,000
  • Bedrooms: 2
  • Bathrooms: 2
  • Square Footage: 1,273 Sqft
  • Year Built: 2025
  • Status: Active
  • Property Attached Yn: 1
  • Property Sub Type: Single Family
  • Roof:
  • Office Key: 300778
Features & Appliances
Features
  • Heating System: Forced air, See remarks
  • Cooling System: Central air conditioning
  • Parking: Attached Garage
  • Sewer: Municipal sewage system
Address Map
  • Location: CA, British Columbia, Castlegar, V1N4Y3
  • Street: Toba
  • Street Number: 3732
  • Street Suffix: Road
  • Longitude: W118° 21' 5.4''
  • Latitude: N49° 15' 57.6''
Additional Information
  • Water Source:
  • Stories: 2.0
Financial
  • Tax Annual Amount: 1024.81
Powered by REALTOR.ca
Listing updated: 2026-04-23 16:52:57
List Your Property
Mortgage Calculator
Get Pre-Approved
$
$
%
%
years
Monthly Payment (Est.) $
Listing Information
  • List Agent Key: 1728923
  • List Office Key: 300778
  • Modification Timestamp: 2026-03-24T16:40:37Z
  • Originating System Name: Association of Interior REALTORS®
  • Status Change Timestamp: 2026-03-24T16:31:14Z
Powered by REALTOR.ca
Listing updated: 2026-04-23 16:52:58
REALTOR®, REALTORS®, and the REALTOR® logo are certification marks that are owned by REALTOR® Canada Inc. and licensed exclusively to The Canadian Real Estate Association (CREA). These certification marks identify real estate professionals who are members of CREA and who must abide by CREA’s By‐Laws, Rules, and the REALTOR® Code. The MLS® trademark and the MLS® logo are owned by CREA and identify the quality of services provided by real estate professionals who are members of CREA.

The information contained on this site is based in whole or in part on information that is provided by members of The Canadian Real Estate Association, who are responsible for its accuracy. CREA reproduces and distributes this information as a service for its members and assumes no responsibility for its accuracy.

Website is operated by a brokerage or salesperson who is a member of The Canadian Real Estate Association.

The listing content on this website is protected by copyright and other laws, and is intended solely for the private, non‐commercial use by individuals. Any other reproduction, distribution or use of the content, in whole or in part, is specifically forbidden. The prohibited uses include commercial use, “screen scraping”, “database scraping”, and any other activity intended to collect, store, reorganize or manipulate data on the pages produced by or displayed on this website.

By continuing to use this website and its services, you agree to these

These forms are provided to ComFree’s Unrepresented Sellers as a part of their Mere Posting ComFree Listing Contract.

I acknowledge I can only access these forms as a ComFree customer under contract.

These forms are provided to ComFree’s Unrepresented Sellers as a part of their Mere Posting ComFree Listing Contract and in partnership with Zubic Law.

I acknowledge I can only access these forms as a ComFree customer under contract.

These forms are provided to ComFree’s Unrepresented Sellers as a part of their Mere Posting ComFree Listing Contract and in partnership with Zubic Law.

I acknowledge I can only access these forms as a ComFree customer under contract.

How It Works

1. Purchase Your Package

2. We Ship Your ‘For Sale’ Sign

3. Book Your VR Tour

4. Complete Listing Input Forms

5. We Make Your Listing Live

6. Get Support 7 Days a Week

7. iSOLD!