Share
$689,900
Saskatchewan,Regina
For Sale Active
3071 Dumont WAY, Regina, Saskatchewan S4V3Z5
  • 6
  • 4
  • 1,753 Sqft
Contact Seller
Basic Details
Description

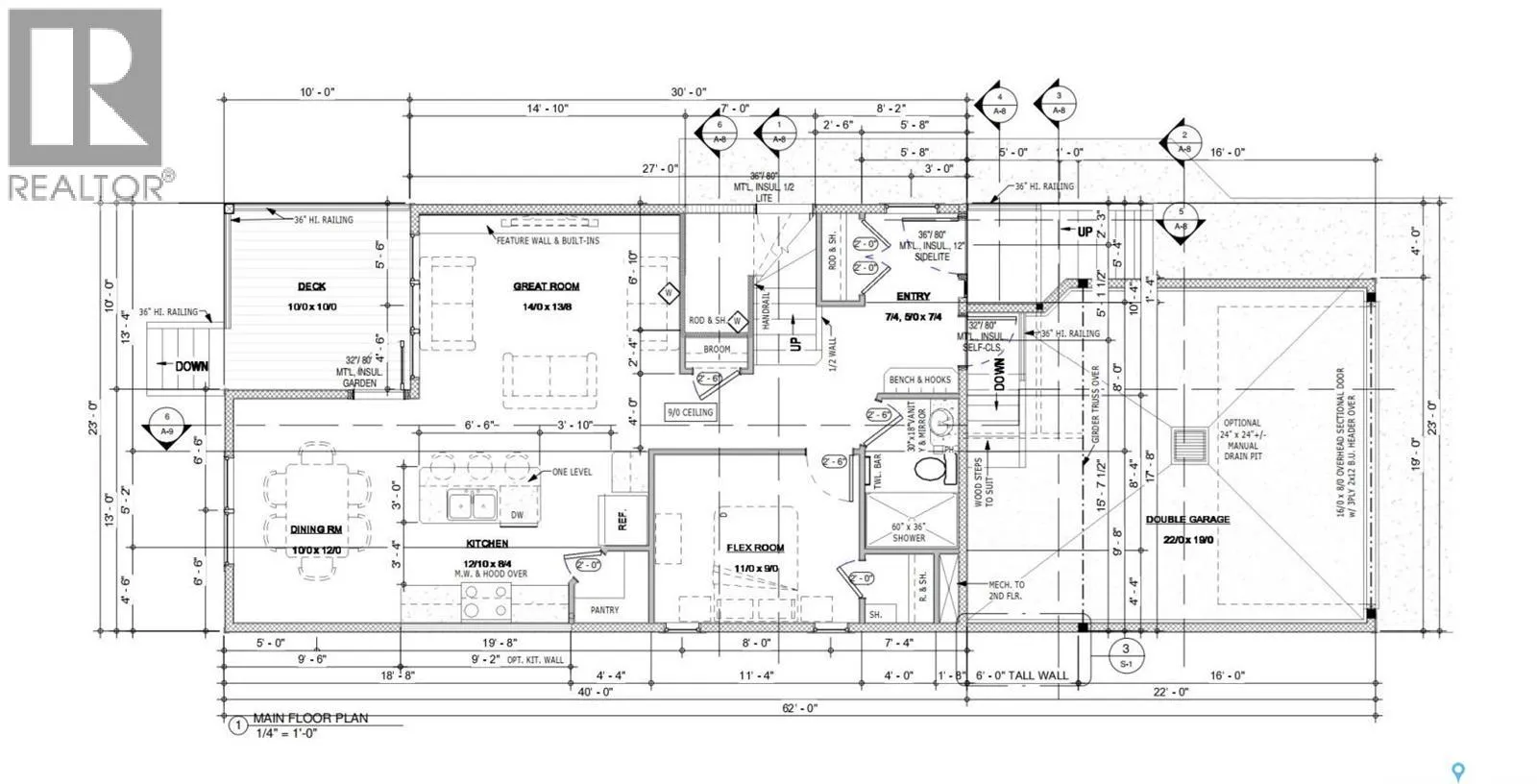
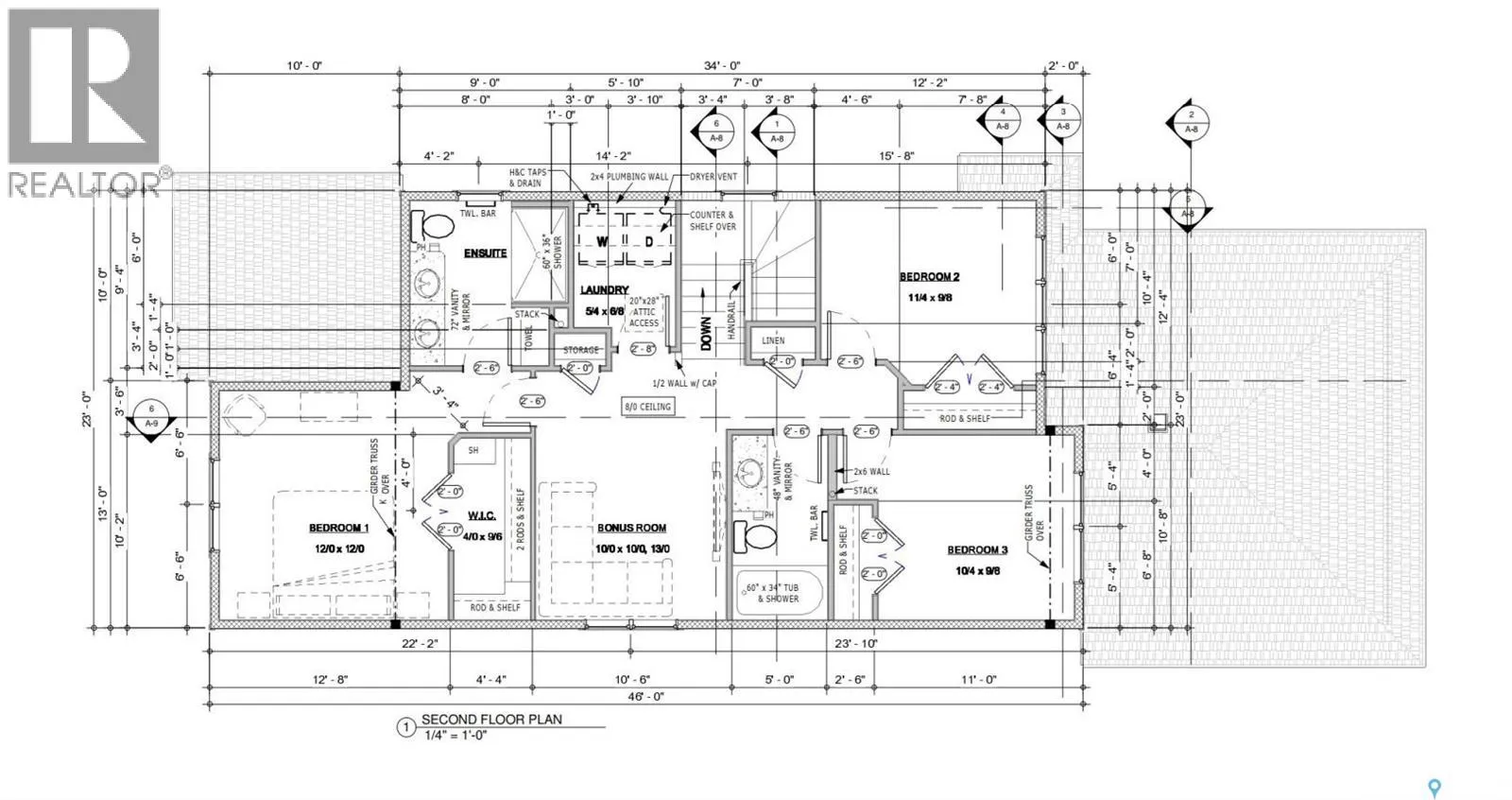
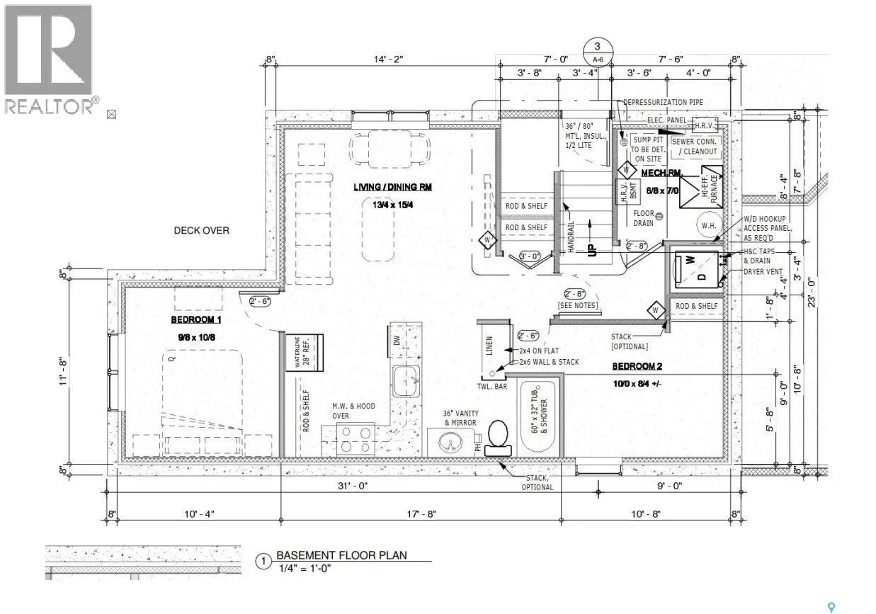
Welcome to 3071 Dumont Way, a stunning, brand-new 1,753 sq ft two-storey home in the desirable neighborhood of The Towns. The bright, open-concept main floor is enhanced by soaring 9ft ceilings, creating an airy and spacious feel throughout the kitchen with its large island, the dedicated dining room, inviting living room, and the highly sought-after main-floor bedroom and 3-piece full

bathroom. Upstairs, the private second level is home to a spacious primary bedroom with a 4-piece ensuite and walk-in closet, two additional bedrooms, another full bathroom, a versatile bonus room, and a dedicated laundry room. A major highlight is the legal basement suite, providing an excellent mortgage helper with its own separate entrance, a full second kitchen, a comfortable living room, two additional bedrooms, and a 3-piece bathroom. This exceptional property offers a total of 6 bedrooms and 4 bathrooms, plus the comfort of central air and a natural gas BBQ hookup. With a double attached, heated, and fully insulated garage and an HRV, this home delivers the perfect blend of style, comfort, and investment potential. Kitchen appliances and laundry for both units are included in the purchase price. A showing of a similar kind of home can be arranged. Don’t miss this one — book your viewing today! (id:62650)

Read More
Basic Details
  • Property Type: Residential
  • Listing Type: For Sale
  • Listing ID: SK022255
  • Price: $689,900
  • Bedrooms: 6
  • Bathrooms: 4
  • Square Footage: 1,753 Sqft
  • Year Built: 2025
  • Status: Active
  • Property Sub Type: Single Family
  • Office Key: 295764
Features & Appliances
Features
  • Heating System: Electric, Forced air, Natural gas, Baseboard heaters
  • Cooling System: Central air conditioning
  • Basement: Finished, Full
  • Parking: Attached Garage, Heated Garage, Parking Space(s)
  • Architectural Style: 2 Level
Address Map
  • Location: CA, Saskatchewan, Regina, S4V3Z5
  • Longitude: W105° 28' 42.1''
  • Latitude: N50° 25' 51.2''
Additional Information
  • Lot Features:
  • Lot Size Dimensions: 3560.00
  • Stories: 2.0
Powered by REALTOR.ca
Listing updated: 2026-04-21 15:53:30
List Your Property
Mortgage Calculator
Get Pre-Approved
$
$
%
%
years
Monthly Payment (Est.) $
Listing Information
  • List Agent Key: 2069642
  • List Office Key: 295764
  • Modification Timestamp: 2026-03-05T16:55:36Z
  • Originating System Name: Saskatchewan REALTORS® Association
  • Status Change Timestamp: 2026-03-05T16:47:57Z
Powered by REALTOR.ca
Listing updated: 2026-04-21 15:53:30
REALTOR®, REALTORS®, and the REALTOR® logo are certification marks that are owned by REALTOR® Canada Inc. and licensed exclusively to The Canadian Real Estate Association (CREA). These certification marks identify real estate professionals who are members of CREA and who must abide by CREA’s By‐Laws, Rules, and the REALTOR® Code. The MLS® trademark and the MLS® logo are owned by CREA and identify the quality of services provided by real estate professionals who are members of CREA.

The information contained on this site is based in whole or in part on information that is provided by members of The Canadian Real Estate Association, who are responsible for its accuracy. CREA reproduces and distributes this information as a service for its members and assumes no responsibility for its accuracy.

Website is operated by a brokerage or salesperson who is a member of The Canadian Real Estate Association.

The listing content on this website is protected by copyright and other laws, and is intended solely for the private, non‐commercial use by individuals. Any other reproduction, distribution or use of the content, in whole or in part, is specifically forbidden. The prohibited uses include commercial use, “screen scraping”, “database scraping”, and any other activity intended to collect, store, reorganize or manipulate data on the pages produced by or displayed on this website.

By continuing to use this website and its services, you agree to these

These forms are provided to ComFree’s Unrepresented Sellers as a part of their Mere Posting ComFree Listing Contract.

I acknowledge I can only access these forms as a ComFree customer under contract.

These forms are provided to ComFree’s Unrepresented Sellers as a part of their Mere Posting ComFree Listing Contract and in partnership with Zubic Law.

I acknowledge I can only access these forms as a ComFree customer under contract.

These forms are provided to ComFree’s Unrepresented Sellers as a part of their Mere Posting ComFree Listing Contract and in partnership with Zubic Law.

I acknowledge I can only access these forms as a ComFree customer under contract.

How It Works

1. Purchase Your Package

2. We Ship Your ‘For Sale’ Sign

3. Book Your VR Tour

4. Complete Listing Input Forms

5. We Make Your Listing Live

6. Get Support 7 Days a Week

7. iSOLD!