Share
$600,000
Ontario,Ingersoll (Ingersoll - South)
For Sale Active
268 TUNIS STREET, Ingersoll (Ingersoll - South), Ontario N5C1W7
  • 4
  • 4
  • 2000 - 2500Square Feet
Contact Seller
Basic Details
Description

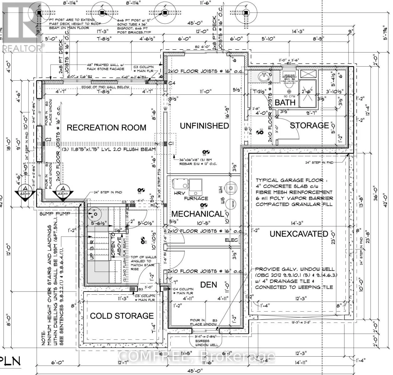
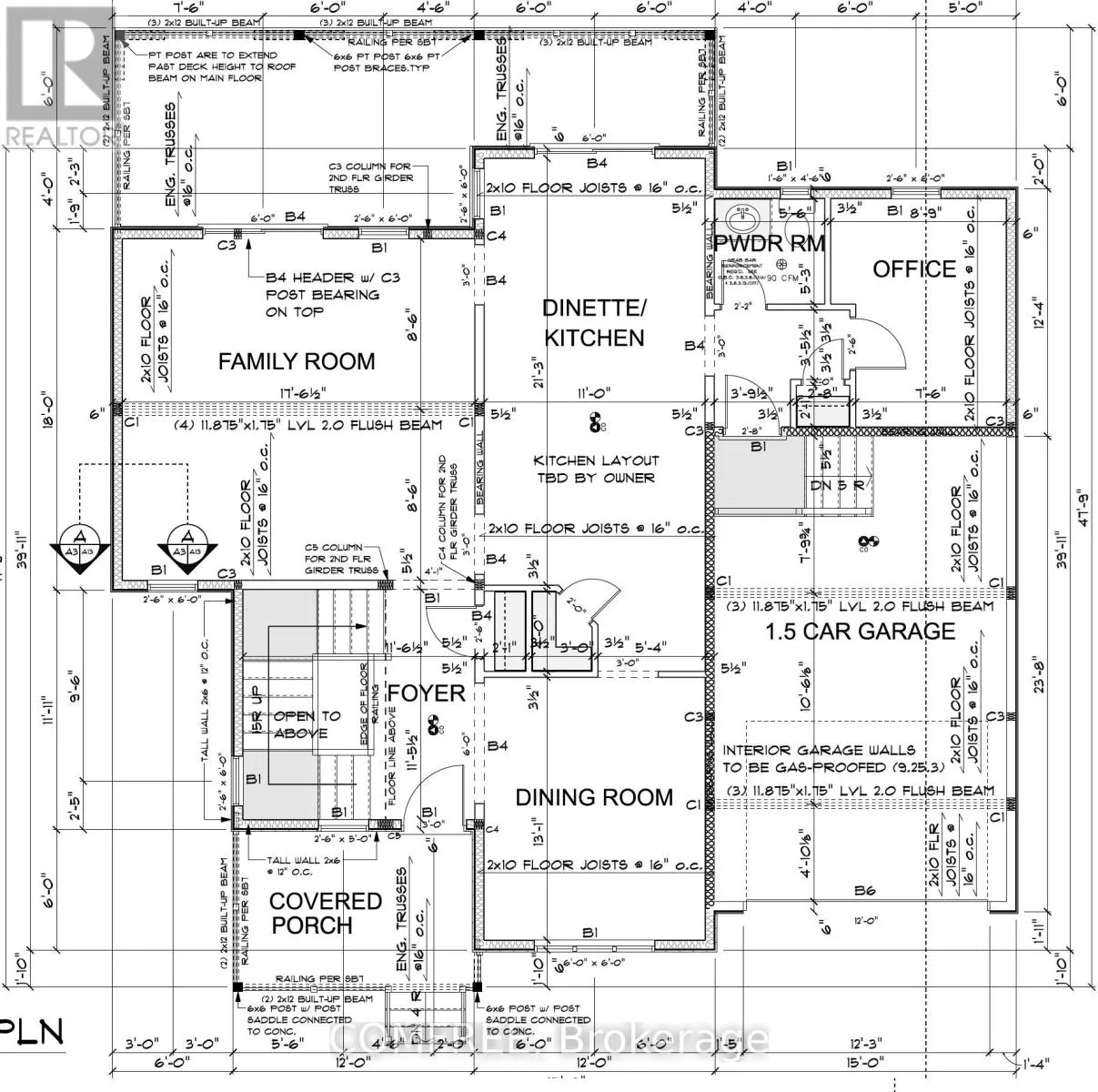
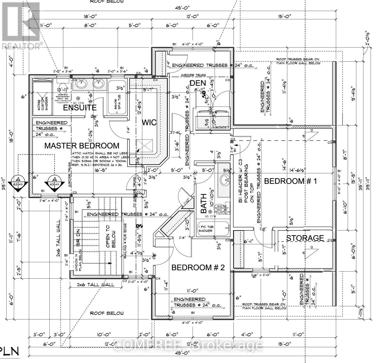
A Unique Opportunity for a Custom Build on Private Tunis Street Lot. Nestled behind a screen of majestic tall cedar trees, this exceptionally private property at 268 Tunis Street offers a rare opportunity to bring your dream home to life. This custom-designed, two-storey home is a canvas awaiting your personal touch, with a spacious 2, 387 sq. ft. floor plan

that is larger than it appears from the street. The thoughtfully designed layout includes four bedrooms and four bathrooms, providing ample space for a growing family or those who love to host. The heart of the home is illuminated by beautiful French doors that bathe the space in natural light and open onto a large back deck, perfect for summer evenings and overlooking a generous yard with a cleverly hidden play area for children. The expansive 66′ x 132′ lot provides plenty of room for outdoor activities and includes a designated space for a future detached garage in the backyard. Situated in a highly desirable and friendly neighbourhood, this home is just a short and safe walk for the kids to local schools and a leisurely stroll to the charming downtown Ingersoll. The Opportunity: This home is currently in the construction phase, offering the unique advantage for you, the buyer, to select your own finishes and truly make it your own. Included in the current price: A brand new, high-efficiency furnace and air conditioning unit will be installed. The plumbing will be fully roughed-in upon closing. Seize this chance to get in at the ground level. The price is scheduled to increase upon the completion of the electrical and siding work. Act now to customize these crucial elements to your exact specifications and taste. (id:62650)

Read More
Basic Details
  • Property Type: Residential
  • Listing Type: For Sale
  • Listing ID: X12250141
  • Price: $600,000
  • Bedrooms: 4
  • Bathrooms: 4
  • Half Bathrooms: 1
  • Square Footage: 2000 - 2500 Sqft
  • Status: Active
  • Property Sub Type: Single Family
  • Office Key: 299944
Features & Appliances
Features
  • Heating System: Forced air, Natural gas
  • Cooling System: Central air conditioning
  • Basement: Unfinished, N/A
  • Parking: Garage, Attached Garage
  • Exterior Features: Wood
  • Sewer: Sanitary sewer
Address Map
  • Location: CA, Ontario, Ingersoll (Ingersoll - South), N5C1W7
  • Street: Tunis
  • Street Number: 268
  • Street Suffix: Street
  • Longitude: W81° 7' 30.5''
  • Latitude: N43° 2' 16.8''
Additional Information
  • Water Source:
  • Foundation Details:
  • Lot Size Dimensions: 66 x 132 FT
  • Stories: 2.0
Financial
  • Tax Annual Amount: 3232.58
Powered by REALTOR.ca
Listing updated: 2026-05-24 21:19:39
List Your Property
Mortgage Calculator
Get Pre-Approved
$
$
%
%
years
Monthly Payment (Est.) $
Listing Information
  • List Agent Key: 2241186
  • List Office Key: 299944
  • Modification Timestamp: 2026-04-24T05:25:26Z
  • Originating System Name: Ottawa Real Estate Board
  • Status Change Timestamp: 2026-04-24T05:16:24Z
Powered by REALTOR.ca
Listing updated: 2026-05-24 21:19:40
REALTOR®, REALTORS®, and the REALTOR® logo are certification marks that are owned by REALTOR® Canada Inc. and licensed exclusively to The Canadian Real Estate Association (CREA). These certification marks identify real estate professionals who are members of CREA and who must abide by CREA’s By‐Laws, Rules, and the REALTOR® Code. The MLS® trademark and the MLS® logo are owned by CREA and identify the quality of services provided by real estate professionals who are members of CREA.

The information contained on this site is based in whole or in part on information that is provided by members of The Canadian Real Estate Association, who are responsible for its accuracy. CREA reproduces and distributes this information as a service for its members and assumes no responsibility for its accuracy.

Website is operated by a brokerage or salesperson who is a member of The Canadian Real Estate Association.

The listing content on this website is protected by copyright and other laws, and is intended solely for the private, non‐commercial use by individuals. Any other reproduction, distribution or use of the content, in whole or in part, is specifically forbidden. The prohibited uses include commercial use, “screen scraping”, “database scraping”, and any other activity intended to collect, store, reorganize or manipulate data on the pages produced by or displayed on this website.

By continuing to use this website and its services, you agree to these

These forms are provided to ComFree’s Unrepresented Sellers as a part of their Mere Posting ComFree Listing Contract.

I acknowledge I can only access these forms as a ComFree customer under contract.

These forms are provided to ComFree’s Unrepresented Sellers as a part of their Mere Posting ComFree Listing Contract and in partnership with Zubic Law.

I acknowledge I can only access these forms as a ComFree customer under contract.

These forms are provided to ComFree’s Unrepresented Sellers as a part of their Mere Posting ComFree Listing Contract and in partnership with Zubic Law.

I acknowledge I can only access these forms as a ComFree customer under contract.

How It Works

1. Purchase Your Package

2. We Ship Your ‘For Sale’ Sign

3. Book Your VR Tour

4. Complete Listing Input Forms

5. We Make Your Listing Live

6. Get Support 7 Days a Week

7. iSOLD!