Share
$1,850
Ontario,Bonnechere Valley
For Sale Active
78A QUEEN STREET UNIT#105, Eganville, Ontario K0J1T0
  • 1
  • 699 Sqft
Contact Seller
Basic Details
Description

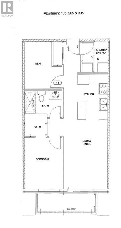
A stunning brand new one bedroom plus den, one full bath apartment in Eganville, perfect for seniors or professionals seeking a low-maintenance lifestyle. This main floor unit in an elevator serviced, secure building offers convenient walk out access to a private patio with lovely views of the valley. The bedroom features a walk in closet. Bathroom is wall to wall

tile with walk in shower. The modern white kitchen with elegant black trim and subway tiled backsplash is more than you would expect to see in an apartment and the granite counters makes this the talk of the town. All kitchen major appliances are included and each unit has its own laundry hook-up, HRV system, full sized hot water tank and heat pump for your individually controlled A/C. In floor heating that is controlled in each unit is included in your rent as is water, sewer and parking. Hydro and internet/ phone is the tenants responsibility. Eganville is a great family friendly community surrounded by nature! (id:62650)

Read More
Basic Details
  • Property Type: Residential
  • Listing Type: For Sale
  • Listing ID: X9523048
  • Price: $1,850
  • Bedrooms: 1
  • Square Footage: 699 Sqft
  • Year Built: 2024
  • Status: Active
  • Property Sub Type: Single Family
  • Office Key: 274369
Features & Appliances
Features
  • Heating System: Propane, Not known
  • Cooling System: Air exchanger
  • Basement: None
  • Parking: No Garage
  • Exterior Features: Vinyl siding, Stone
  • Sewer: Sanitary sewer
Address Map
  • Location: CA, Ontario, Bonnechere Valley, K0J1T0
  • Street: QUEEN
  • Street Number: 78A
  • Street Suffix: Street
  • Longitude: W78° 54' 11.5''
  • Latitude: N45° 32' 6.4''
Additional Information
  • Water Source:
  • Foundation Details:
Powered by REALTOR.ca
Listing updated: 2026-04-15 11:58:19
List Your Property
Mortgage Calculator
Get Pre-Approved
$
$
%
%
years
Monthly Payment (Est.) $
Listing Information
  • List Agent Key: 1567152
  • List Office Key: 274369
  • Modification Timestamp: 2026-03-20T11:55:49Z
  • Originating System Name: Renfrew County Real Estate Board
  • Status Change Timestamp: 2026-03-20T11:42:26Z
Powered by REALTOR.ca
Listing updated: 2026-04-15 11:58:20
REALTOR®, REALTORS®, and the REALTOR® logo are certification marks that are owned by REALTOR® Canada Inc. and licensed exclusively to The Canadian Real Estate Association (CREA). These certification marks identify real estate professionals who are members of CREA and who must abide by CREA’s By‐Laws, Rules, and the REALTOR® Code. The MLS® trademark and the MLS® logo are owned by CREA and identify the quality of services provided by real estate professionals who are members of CREA.

The information contained on this site is based in whole or in part on information that is provided by members of The Canadian Real Estate Association, who are responsible for its accuracy. CREA reproduces and distributes this information as a service for its members and assumes no responsibility for its accuracy.

Website is operated by a brokerage or salesperson who is a member of The Canadian Real Estate Association.

The listing content on this website is protected by copyright and other laws, and is intended solely for the private, non‐commercial use by individuals. Any other reproduction, distribution or use of the content, in whole or in part, is specifically forbidden. The prohibited uses include commercial use, “screen scraping”, “database scraping”, and any other activity intended to collect, store, reorganize or manipulate data on the pages produced by or displayed on this website.

By continuing to use this website and its services, you agree to these

These forms are provided to ComFree’s Unrepresented Sellers as a part of their Mere Posting ComFree Listing Contract.

I acknowledge I can only access these forms as a ComFree customer under contract.

These forms are provided to ComFree’s Unrepresented Sellers as a part of their Mere Posting ComFree Listing Contract and in partnership with Zubic Law.

I acknowledge I can only access these forms as a ComFree customer under contract.

These forms are provided to ComFree’s Unrepresented Sellers as a part of their Mere Posting ComFree Listing Contract and in partnership with Zubic Law.

I acknowledge I can only access these forms as a ComFree customer under contract.

How It Works

1. Purchase Your Package

2. We Ship Your ‘For Sale’ Sign

3. Book Your VR Tour

4. Complete Listing Input Forms

5. We Make Your Listing Live

6. Get Support 7 Days a Week

7. iSOLD!