Share
$210,000
Ontario,M'chigeeng
For Sale Active
N/A Corbiere Road Unit# Lot Z5, M'chigeeng, Ontario P0P1G0
  • 3
  • 1
Contact Seller
Basic Details
Description

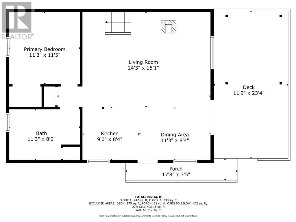
This charming A-frame style cottage on leased land offers a warm, inviting retreat just steps from beautiful Lake Mindemoya. The main floor features a bright open-concept layout that combines the kitchen, dining area, and living room, all finished with low-maintenance laminate flooring. A large picture window and patio doors lead to the front deck, offering lovely lake views and

an easy indoor-outdoor flow. With public lake access right across the road, enjoying the water is effortless. The main level also includes a comfortable bedroom and a full bathroom with tile flooring and convenient in-suite laundry. A cozy wood stove provides charm and efficient heat. Upstairs, two additional carpeted bedrooms offer great space for family or guests. Outside, the flat, deep lot includes well-kept flower beds, a workshop with hydro, and a large storage shed. The rear of the property is peaceful and private, backing onto undeveloped land with no rear neighbours. Recent updates include electrical improvements as well as wood stove and chimney upgrades. Set on a crawl space foundation, this well-maintained log home is move-in ready and ideal for year-round enjoyment. (id:62650)

Read More
Basic Details
  • Property Type: Residential
  • Listing Type: For Sale
  • Listing ID: 2125570
  • Price: $210,000
  • Bedrooms: 3
  • Bathrooms: 1
  • Status: Active
  • Property Sub Type: Single Family
  • Roof:
  • Office Key: 291085
Features & Appliances
Features
  • Heating System: Baseboard heaters, Wood Stove
  • Cooling System: None
  • Basement: Crawl space
  • Fence: Not fenced
  • Fireplace: Wood, Woodstove
  • Parking: Gravel
  • Architectural Style: 2 Level
  • Exterior Features: Wood
  • Flooring: Laminate, Tile, Carpeted
  • Sewer: Septic System
  • Fireplaces Total: 1
Address Map
  • Location: CA, Ontario, M'chigeeng, P0P1G0
  • Longitude: W83° 49' 59.7''
  • Latitude: N45° 47' 57.4''
Additional Information
  • Water Source:
  • Community Features:
  • Foundation Details:
  • Stories: 1.5
Powered by REALTOR.ca
Listing updated: 2026-04-27 09:16:32
List Your Property
Mortgage Calculator
Get Pre-Approved
$
$
%
%
years
Monthly Payment (Est.) $
Similar Properties
Listing Information
  • List Agent Key: 2018416
  • List Office Key: 291085
  • Modification Timestamp: 2026-04-13T19:21:02Z
  • Originating System Name: Sudbury Real Estate Board
  • Status Change Timestamp: 2026-04-13T19:13:43Z
Powered by REALTOR.ca
Listing updated: 2026-04-27 09:16:33
REALTOR®, REALTORS®, and the REALTOR® logo are certification marks that are owned by REALTOR® Canada Inc. and licensed exclusively to The Canadian Real Estate Association (CREA). These certification marks identify real estate professionals who are members of CREA and who must abide by CREA’s By‐Laws, Rules, and the REALTOR® Code. The MLS® trademark and the MLS® logo are owned by CREA and identify the quality of services provided by real estate professionals who are members of CREA.

The information contained on this site is based in whole or in part on information that is provided by members of The Canadian Real Estate Association, who are responsible for its accuracy. CREA reproduces and distributes this information as a service for its members and assumes no responsibility for its accuracy.

Website is operated by a brokerage or salesperson who is a member of The Canadian Real Estate Association.

The listing content on this website is protected by copyright and other laws, and is intended solely for the private, non‐commercial use by individuals. Any other reproduction, distribution or use of the content, in whole or in part, is specifically forbidden. The prohibited uses include commercial use, “screen scraping”, “database scraping”, and any other activity intended to collect, store, reorganize or manipulate data on the pages produced by or displayed on this website.

By continuing to use this website and its services, you agree to these

These forms are provided to ComFree’s Unrepresented Sellers as a part of their Mere Posting ComFree Listing Contract.

I acknowledge I can only access these forms as a ComFree customer under contract.

These forms are provided to ComFree’s Unrepresented Sellers as a part of their Mere Posting ComFree Listing Contract and in partnership with Zubic Law.

I acknowledge I can only access these forms as a ComFree customer under contract.

These forms are provided to ComFree’s Unrepresented Sellers as a part of their Mere Posting ComFree Listing Contract and in partnership with Zubic Law.

I acknowledge I can only access these forms as a ComFree customer under contract.

How It Works

1. Purchase Your Package

2. We Ship Your ‘For Sale’ Sign

3. Book Your VR Tour

4. Complete Listing Input Forms

5. We Make Your Listing Live

6. Get Support 7 Days a Week

7. iSOLD!