Share
$12
Ontario,Ottawa
For Rent Active
1&8 - 155 TERENCE MATTHEWS CRESCENT, Ottawa, Ontario K2M2A8
  • 7,200 Sqft
Contact Seller
Basic Details
Description

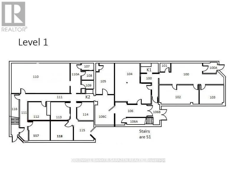
Great leasing opportunity in the Kanata South business park off of Eagleson Rd. Conveniently located at 155 Terence Matthews, this office condo features 2 units, #1 and #8, which offers approximately 7,200 square feet of versatile space. Featuring 15 offices, a meeting room, open concept working area on the 2nd level, 4 bathrooms and 4 roof top units for heating

and cooling. The space has a storage/loading area with double door access and a total of 15 parking spaces allocated to the 2 units. The total space of both units is 7,200 sqft, which consist mainly offices and open working areas. The main level measures approx 4,000 sqft and the second level is 3,200 sqft approx. IP4 Zoning. Base rent: $11.75.sqft. Operating cost: 12.25/sqft. Tenant inducements are being offered on terms over 4 years. (id:62650)

Read More
Basic Details
  • Property Type: Commercial Lease
  • Listing Type: For Rent
  • Listing ID: X12628772
  • Price: $12
  • Square Footage: 7,200 Sqft
  • Status: Active
  • Property Sub Type: Office
  • Office Key: 49771
Features & Appliances
Features
  • Heating System: Forced air, Natural gas
  • Cooling System: Fully air conditioned
Address Map
  • Location: CA, Ontario, Ottawa, K2M2A8
  • Street: Terence Matthews
  • Street Number: 155
  • Street Suffix: Crescent
  • Longitude: W76° 7' 36.6''
  • Latitude: N45° 17' 13.5''
Additional Information
  • Water Source:
  • Lot Size Dimensions: 167 x 412 FT
Financial
  • Tax Annual Amount: 15682
Powered by REALTOR.ca
Listing updated: 2026-05-13 16:14:55
List Your Property
Similar Properties
Listing Information
  • List Agent Key: 2025549
  • List Office Key: 49771
  • Modification Timestamp: 2026-05-07T16:10:13Z
  • Originating System Name: Ottawa Real Estate Board
  • Status Change Timestamp: 2026-05-07T16:03:39Z
Powered by REALTOR.ca
Listing updated: 2026-05-13 16:14:55
REALTOR®, REALTORS®, and the REALTOR® logo are certification marks that are owned by REALTOR® Canada Inc. and licensed exclusively to The Canadian Real Estate Association (CREA). These certification marks identify real estate professionals who are members of CREA and who must abide by CREA’s By‐Laws, Rules, and the REALTOR® Code. The MLS® trademark and the MLS® logo are owned by CREA and identify the quality of services provided by real estate professionals who are members of CREA.

The information contained on this site is based in whole or in part on information that is provided by members of The Canadian Real Estate Association, who are responsible for its accuracy. CREA reproduces and distributes this information as a service for its members and assumes no responsibility for its accuracy.

Website is operated by a brokerage or salesperson who is a member of The Canadian Real Estate Association.

The listing content on this website is protected by copyright and other laws, and is intended solely for the private, non‐commercial use by individuals. Any other reproduction, distribution or use of the content, in whole or in part, is specifically forbidden. The prohibited uses include commercial use, “screen scraping”, “database scraping”, and any other activity intended to collect, store, reorganize or manipulate data on the pages produced by or displayed on this website.

By continuing to use this website and its services, you agree to these

These forms are provided to ComFree’s Unrepresented Sellers as a part of their Mere Posting ComFree Listing Contract.

I acknowledge I can only access these forms as a ComFree customer under contract.

These forms are provided to ComFree’s Unrepresented Sellers as a part of their Mere Posting ComFree Listing Contract and in partnership with Zubic Law.

I acknowledge I can only access these forms as a ComFree customer under contract.

These forms are provided to ComFree’s Unrepresented Sellers as a part of their Mere Posting ComFree Listing Contract and in partnership with Zubic Law.

I acknowledge I can only access these forms as a ComFree customer under contract.

How It Works

1. Purchase Your Package

2. We Ship Your ‘For Sale’ Sign

3. Book Your VR Tour

4. Complete Listing Input Forms

5. We Make Your Listing Live

6. Get Support 7 Days a Week

7. iSOLD!