Share
$4,500,000
Alberta,Blackfoot
For Sale Active
6302 66 Ave, Blackfoot, Alberta T0B0L0
  • 33,000 Sqft
Contact Seller
Basic Details
Description

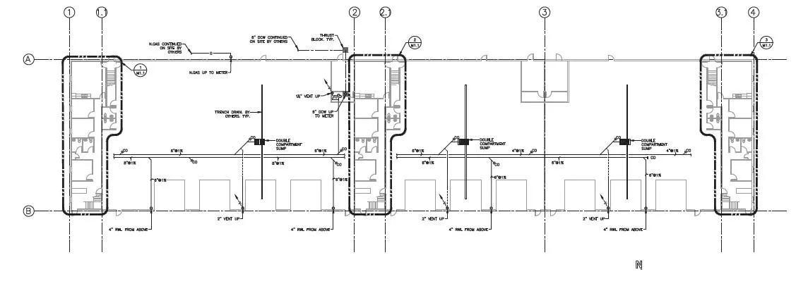
33,000 SF Investment Opportunity in Lloydminster comprised of 3 Units: Unit 105 (12,000 SF Main Floor and 1,400 SF 2nd Floor Office, totaling 13,400 SF), Unit 103 (8,000 SF Main Floor and 1,400 SF 2nd Floor Office totaling 9,400 SF), and Unit 101 (8,800 SF Main Floor and 1,400 SF 2nd Floor Office totaling 10,200 SF). All units feature identical

office layout, featuring lunchroom facilities, boardroom, and 6 private offices. There is paved parking in front, fenced, concrete sidewalk and aprons along bay door side. Yard lighting. Telus fibre available. The Building features an upgraded fire suppression system; Warehouse and offices are sprinklered with multi-zone control. Built in 2014. Two power services – 1,200 Amp, 3 Phase (Main) and 1,400 Amp, 600V (Sub). Forced air furnaces and a/c in office areas ad Natural Gas tube heaters in warehouse. Features 20’ ceiling heights and overhead grade doors in each unit: Unit 101 – (3) Grade 16’x16’, Unit 103 – (3) Grade 16’x16’, and Unit 105 – (4) Grade 16’x16’. (id:64429)

Read More
Basic Details
  • Property Type: Commercial Sale
  • Listing Type: For Sale
  • Listing ID: 43988183
  • Price: $4,500,000
  • Square Footage: 33,000 Sqft
  • Year Built: 2014
  • Status: Active
  • Office Name: ComFree
  • Property Sub Type: Industrial
  • Office Key: 298826
Address Map
  • Location: CA, Alberta, Blackfoot, T0B0L0
  • Longitude: W111° 57' 51.6''
  • Latitude: N53° 18' 12.5''
Additional Information
  • Lot Size Dimensions: 131115.59999999998
Powered by REALTOR.ca
Listing updated: 2026-01-21 11:23:29
List Your Property
Mortgage Calculator
Get Pre-Approved
$
$
%
%
years
Monthly Payment (Est.) $
Listing Information
  • List Agent Key: 2211771
  • List Office Key: 298826
  • Modification Timestamp: 2026-01-21T15:25:34Z
  • Originating System Name: REALTORS® Association of Edmonton – Commercial
  • Status Change Timestamp: 2026-01-21T15:12:17Z
Powered by REALTOR.ca
Listing updated: 2026-01-21 11:23:29
REALTOR®, REALTORS®, and the REALTOR® logo are certification marks that are owned by REALTOR® Canada Inc. and licensed exclusively to The Canadian Real Estate Association (CREA). These certification marks identify real estate professionals who are members of CREA and who must abide by CREA’s By‐Laws, Rules, and the REALTOR® Code. The MLS® trademark and the MLS® logo are owned by CREA and identify the quality of services provided by real estate professionals who are members of CREA.

The information contained on this site is based in whole or in part on information that is provided by members of The Canadian Real Estate Association, who are responsible for its accuracy. CREA reproduces and distributes this information as a service for its members and assumes no responsibility for its accuracy.

Website is operated by a brokerage or salesperson who is a member of The Canadian Real Estate Association.

The listing content on this website is protected by copyright and other laws, and is intended solely for the private, non‐commercial use by individuals. Any other reproduction, distribution or use of the content, in whole or in part, is specifically forbidden. The prohibited uses include commercial use, “screen scraping”, “database scraping”, and any other activity intended to collect, store, reorganize or manipulate data on the pages produced by or displayed on this website.

By continuing to use this website and its services, you agree to these

These forms are provided to ComFree’s Unrepresented Sellers as a part of their Mere Posting ComFree Listing Contract.

I acknowledge I can only access these forms as a ComFree customer under contract.

These forms are provided to ComFree’s Unrepresented Sellers as a part of their Mere Posting ComFree Listing Contract and in partnership with Zubic Law.

I acknowledge I can only access these forms as a ComFree customer under contract.

These forms are provided to ComFree’s Unrepresented Sellers as a part of their Mere Posting ComFree Listing Contract and in partnership with Zubic Law.

I acknowledge I can only access these forms as a ComFree customer under contract.

How It Works

1. Purchase Your Package

2. We Ship Your ‘For Sale’ Sign

3. Book Your VR Tour

4. Complete Listing Input Forms

5. We Make Your Listing Live

6. Get Support 7 Days a Week

7. iSOLD!