Share
$1,250,000
Alberta,Sherwood Park
For Sale Active
150 CHIPPEWA Road, Sherwood Park, Alberta T8A6A2
  • 5,066 Sqft
Contact Seller
Basic Details
Description

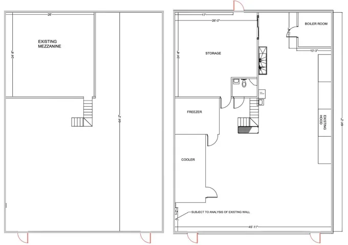
An exceptional opportunity to purchase a good quality, fully built out office space in the heart of Sherwood Park. This commercial condominium offers a prime location with C5 zoning and effortless access to both Baseline Road and Anthony Henday Drive. Spanning over 3600 sq. ft. across two levels, the property includes 8 generous offices, two boardrooms, reception area, three washrooms,

kitchen, file room and storage. An additional 1436 sq. ft. is currently leased, providing income for the new owner. With twelve dedicated parking stalls conveniently located at the front entrance, accessibility is seamless for both staff and clients. Rarely does a property combine location, versatility, and investment appeal so completely. Whether for your own business or as part of a growing portfolio, this opportunity offers the best of both ownership and value.Other Property Types: Office,RetailSubject Space Width: 10Subject Space Depth: 190Ownership Interest: PrivateTitle to Land: Fee SimpleRPR Survey Available: NoSeller Rights: NoAppointment Name: KimAppointment Phone: 780-974-3357Paragon Listing ID: E4455450 (id:64429)

Read More
Basic Details
  • Property Type: Commercial Sale
  • Listing Type: For Sale
  • Listing ID: 43688825
  • Price: $1,250,000
  • Square Footage: 5,066 Sqft
  • Year Built: 1999
  • Status: Active
  • Property Sub Type: Office
  • Office Key: 280636
Address Map
  • Location: CA, Alberta, Sherwood Park, T8A6A2
  • Longitude: W114° 40' 30''
  • Latitude: N53° 32' 16.6''
Powered by REALTOR.ca
Listing updated: 2026-04-26 12:18:43
List Your Property
Mortgage Calculator
Get Pre-Approved
$
$
%
%
years
Monthly Payment (Est.) $
Listing Information
  • List Agent Key: 1594597
  • List Office Key: 280636
  • Modification Timestamp: 2026-03-11T15:50:08Z
  • Originating System Name: REALTORS® Association of Edmonton – Commercial
  • Status Change Timestamp: 2026-03-11T15:43:32Z
Powered by REALTOR.ca
Listing updated: 2026-04-26 12:18:44
REALTOR®, REALTORS®, and the REALTOR® logo are certification marks that are owned by REALTOR® Canada Inc. and licensed exclusively to The Canadian Real Estate Association (CREA). These certification marks identify real estate professionals who are members of CREA and who must abide by CREA’s By‐Laws, Rules, and the REALTOR® Code. The MLS® trademark and the MLS® logo are owned by CREA and identify the quality of services provided by real estate professionals who are members of CREA.

The information contained on this site is based in whole or in part on information that is provided by members of The Canadian Real Estate Association, who are responsible for its accuracy. CREA reproduces and distributes this information as a service for its members and assumes no responsibility for its accuracy.

Website is operated by a brokerage or salesperson who is a member of The Canadian Real Estate Association.

The listing content on this website is protected by copyright and other laws, and is intended solely for the private, non‐commercial use by individuals. Any other reproduction, distribution or use of the content, in whole or in part, is specifically forbidden. The prohibited uses include commercial use, “screen scraping”, “database scraping”, and any other activity intended to collect, store, reorganize or manipulate data on the pages produced by or displayed on this website.

By continuing to use this website and its services, you agree to these

These forms are provided to ComFree’s Unrepresented Sellers as a part of their Mere Posting ComFree Listing Contract.

I acknowledge I can only access these forms as a ComFree customer under contract.

These forms are provided to ComFree’s Unrepresented Sellers as a part of their Mere Posting ComFree Listing Contract and in partnership with Zubic Law.

I acknowledge I can only access these forms as a ComFree customer under contract.

These forms are provided to ComFree’s Unrepresented Sellers as a part of their Mere Posting ComFree Listing Contract and in partnership with Zubic Law.

I acknowledge I can only access these forms as a ComFree customer under contract.

How It Works

1. Purchase Your Package

2. We Ship Your ‘For Sale’ Sign

3. Book Your VR Tour

4. Complete Listing Input Forms

5. We Make Your Listing Live

6. Get Support 7 Days a Week

7. iSOLD!