Share
$13
Ontario,Hamilton
For Rent Active
100 BURLAND Crescent Unit# B, Hamilton, Ontario L8H7T5
  • 12,931 Sqft
Contact Seller
Basic Details
Description

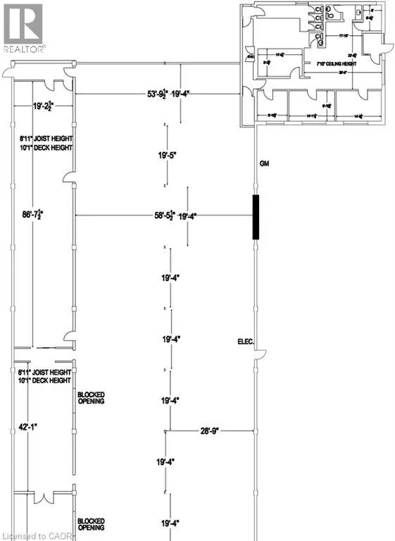
This expansive 12,900 sq ft industrial unit offers a robust set of features designed to accommodate a wide range of business operations. Key highlights include two powerful 5-ton overhead cranes, 100 Amp & 600 Volt electrical service, impressive ceiling heights reaching up to 17′ 10, and a drive-in door. The property also boasts 1,900 sq ft of well-appointed

office space, a secure, fenced-in yard, and ample parking for both staff and customers. Zoned M5 – General Industrial, this property is perfectly suited for manufacturing, production, warehousing, or service-related industries. Its prime location offers unbeatable convenience: just 4 minutes to the QEW, 4 minutes to the Red Hill Valley Parkway, 8 minutes to Burlington, and roughly midway between the U.S. border and Toronto—ensuring quick access to key transportation routes. Whether you’re expanding or relocating, this property offers the flexibility and strategic location your business needs to thrive. (id:62650)

Read More
Basic Details
  • Property Type: Commercial Lease
  • Listing Type: For Rent
  • Listing ID: 40796025
  • Price: $13
  • Square Footage: 12,931 Sqft
  • Status: Active
  • Property Sub Type: Industrial
  • Office Key: 289686
Features & Appliances
Features
  • Basement: None
  • Sewer: Municipal sewage system
  • Utilities: Electricity
Address Map
  • Location: CA, Ontario, Hamilton, 230 - Parkview, L8H7T5
  • Street: BURLAND
  • Street Number: 100
  • Street Suffix: Crescent
  • Longitude: W80° 12' 39.9''
  • Latitude: N43° 15' 1.2''
Additional Information
  • Water Source:
  • Lot Features:
  • Stories: 1.0
Financial
  • Association Fee Includes:
Powered by REALTOR.ca
Listing updated: 2026-05-05 03:46:40
List Your Property
Similar Properties
Listing Information
  • List Agent Key: 2010291
  • List Office Key: 289686
  • Modification Timestamp: 2026-03-31T13:11:06Z
  • Originating System Name: Cornerstone Association of REALTORS®
  • Status Change Timestamp: 2026-03-31T13:03:37Z
Powered by REALTOR.ca
Listing updated: 2026-05-05 03:46:40
REALTOR®, REALTORS®, and the REALTOR® logo are certification marks that are owned by REALTOR® Canada Inc. and licensed exclusively to The Canadian Real Estate Association (CREA). These certification marks identify real estate professionals who are members of CREA and who must abide by CREA’s By‐Laws, Rules, and the REALTOR® Code. The MLS® trademark and the MLS® logo are owned by CREA and identify the quality of services provided by real estate professionals who are members of CREA.

The information contained on this site is based in whole or in part on information that is provided by members of The Canadian Real Estate Association, who are responsible for its accuracy. CREA reproduces and distributes this information as a service for its members and assumes no responsibility for its accuracy.

Website is operated by a brokerage or salesperson who is a member of The Canadian Real Estate Association.

The listing content on this website is protected by copyright and other laws, and is intended solely for the private, non‐commercial use by individuals. Any other reproduction, distribution or use of the content, in whole or in part, is specifically forbidden. The prohibited uses include commercial use, “screen scraping”, “database scraping”, and any other activity intended to collect, store, reorganize or manipulate data on the pages produced by or displayed on this website.

By continuing to use this website and its services, you agree to these

These forms are provided to ComFree’s Unrepresented Sellers as a part of their Mere Posting ComFree Listing Contract.

I acknowledge I can only access these forms as a ComFree customer under contract.

These forms are provided to ComFree’s Unrepresented Sellers as a part of their Mere Posting ComFree Listing Contract and in partnership with Zubic Law.

I acknowledge I can only access these forms as a ComFree customer under contract.

These forms are provided to ComFree’s Unrepresented Sellers as a part of their Mere Posting ComFree Listing Contract and in partnership with Zubic Law.

I acknowledge I can only access these forms as a ComFree customer under contract.

How It Works

1. Purchase Your Package

2. We Ship Your ‘For Sale’ Sign

3. Book Your VR Tour

4. Complete Listing Input Forms

5. We Make Your Listing Live

6. Get Support 7 Days a Week

7. iSOLD!