Share
$5,900,000
Ontario,Hamilton
For Sale Active
190 HEMPSTEAD Drive, Hamilton, Ontario L8W2E3
  • 17,976 Sqft
Contact Seller
Basic Details
Description

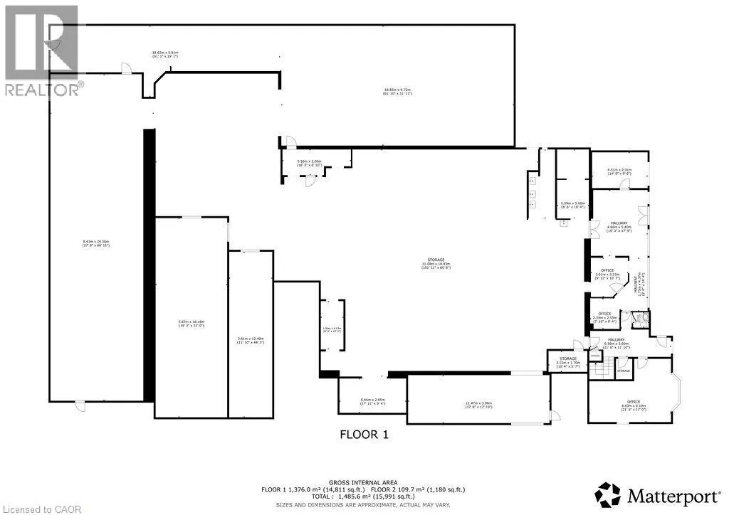
Rare opportunity to acquire a fully equipped food manufacturing and cold storage industrial facility in Hamilton’s established industrial core. This approx 18,000 sq. ft. building is offered with both land and building included and features M3 zoning, supporting a wide range of industrial uses. The facility includes 4 grade-level man doors and 3 shipping doors, providing excellent functionality for production,

shipping, and receiving. Purpose-built for food manufacturing and processing, the property offers approximately 3,000 sq. ft. of freezer space, 760 sq. ft. of coolers, and a 265 sq. ft. blast freezer. The building holds a Global Food Safety Initiative (GFSI) certification, allowing for immediate operational use and reduced regulatory timelines. Strategically located with convenient access to major transportation routes, this is a rare turnkey opportunity for food manufacturers, owner-operators, or investors in one of Hamilton’s most sought-after industrial areas. Phase 1 of the ESA is completed, please view in supplements. PRICED FOR IMMEDIATE ACTION!!! (id:62650)

Read More
Basic Details
  • Property Type: Commercial Sale
  • Listing Type: For Sale
  • Listing ID: 40796517
  • Price: $5,900,000
  • Square Footage: 17,976 Sqft
  • Year Built: 1979
  • Status: Active
  • Property Sub Type: Industrial
  • Office Key: 284641
Features & Appliances
Features
  • Basement: None
  • Exterior Features: Stucco, Concrete, Metal
  • Utilities: Natural Gas, Electricity, Telephone
Address Map
  • Location: CA, Ontario, Hamilton, 265 - Rymal/Hannon, L8W2E3
  • Street: HEMPSTEAD
  • Street Number: 190
  • Street Suffix: Drive
  • Longitude: W80° 9' 54.1''
  • Latitude: N43° 11' 41.6''
Additional Information
  • Water Source:
  • Construction Materials:
  • Lot Features:
  • Stories: 2.0
Financial
  • Tax Annual Amount: 51100.48
Powered by REALTOR.ca
Listing updated: 2026-05-03 04:17:37
List Your Property
Mortgage Calculator
Get Pre-Approved
$
$
%
%
years
Monthly Payment (Est.) $
Listing Information
  • List Agent Key: 1525072
  • List Office Key: 284641
  • Modification Timestamp: 2026-04-24T18:00:15Z
  • Originating System Name: Cornerstone Association of REALTORS®
  • Status Change Timestamp: 2026-04-24T17:53:15Z
Powered by REALTOR.ca
Listing updated: 2026-05-03 04:17:37
REALTOR®, REALTORS®, and the REALTOR® logo are certification marks that are owned by REALTOR® Canada Inc. and licensed exclusively to The Canadian Real Estate Association (CREA). These certification marks identify real estate professionals who are members of CREA and who must abide by CREA’s By‐Laws, Rules, and the REALTOR® Code. The MLS® trademark and the MLS® logo are owned by CREA and identify the quality of services provided by real estate professionals who are members of CREA.

The information contained on this site is based in whole or in part on information that is provided by members of The Canadian Real Estate Association, who are responsible for its accuracy. CREA reproduces and distributes this information as a service for its members and assumes no responsibility for its accuracy.

Website is operated by a brokerage or salesperson who is a member of The Canadian Real Estate Association.

The listing content on this website is protected by copyright and other laws, and is intended solely for the private, non‐commercial use by individuals. Any other reproduction, distribution or use of the content, in whole or in part, is specifically forbidden. The prohibited uses include commercial use, “screen scraping”, “database scraping”, and any other activity intended to collect, store, reorganize or manipulate data on the pages produced by or displayed on this website.

By continuing to use this website and its services, you agree to these

These forms are provided to ComFree’s Unrepresented Sellers as a part of their Mere Posting ComFree Listing Contract.

I acknowledge I can only access these forms as a ComFree customer under contract.

These forms are provided to ComFree’s Unrepresented Sellers as a part of their Mere Posting ComFree Listing Contract and in partnership with Zubic Law.

I acknowledge I can only access these forms as a ComFree customer under contract.

These forms are provided to ComFree’s Unrepresented Sellers as a part of their Mere Posting ComFree Listing Contract and in partnership with Zubic Law.

I acknowledge I can only access these forms as a ComFree customer under contract.

How It Works

1. Purchase Your Package

2. We Ship Your ‘For Sale’ Sign

3. Book Your VR Tour

4. Complete Listing Input Forms

5. We Make Your Listing Live

6. Get Support 7 Days a Week

7. iSOLD!