Share
$1,049,000
British Columbia,Lake Country
For Sale Active
19950 McCarthy Road Unit# 24, Lake Country, British Columbia V4V0C2
  • 6
  • 4
  • 2,682 Sqft
Contact Seller
Basic Details
Description

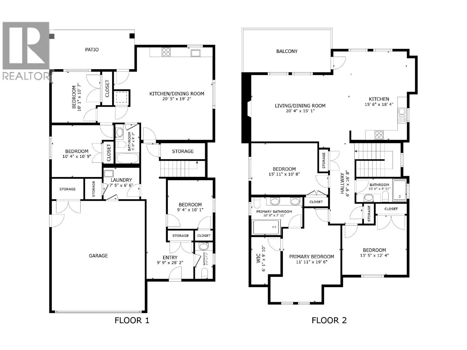
Welcome to #24 – 19950 McCarthy Road, Lake Country! Stunning six-bedroom single-family residence located in a brand-new subdivision of 27 homes. Blending modern design with exceptional functionality, this bright, open-concept home is ideal for families or investors alike. The main home features four spacious bedrooms, including a luxurious master suite with a private en-suite and walk-in closet. The living area

offers a cozy gas fireplace with striking feature walls, while the kitchen is equipped with sleek stainless steel appliances. Throughout the home, you’ll find quality window coverings. Convenience is key, with a main floor laundry room and a two-piece powder room. Additionally, this home includes a two-bedroom legal suite, fully outfitted with stainless steel appliances, a washer, dryer, and window coverings—perfect for generating rental income or accommodating extended family. Other highlights include a built-in vacuum system, a fully landscaped and fenced yard, an underground sprinkler system, and a heated two-car garage with a 220-volt EV charger. The exposed concrete driveway offers parking for at least two more cars. Ideally located close to schools, public transportation, shopping, restaurants, the airport, and the lake, this exceptional property offers everything you need to enjoy life in Lake Country. Don’t miss this opportunity! Buyers are advised the listing price is subject to GST. (id:62650)

Read More
Basic Details
  • Property Type: Residential
  • Listing Type: For Sale
  • Listing ID: 10373010
  • Price: $1,049,000
  • Bedrooms: 6
  • Bathrooms: 4
  • Half Bathrooms: 1
  • Square Footage: 2,682 Sqft
  • Year Built: 2024
  • Status: Active
  • Property Sub Type: Single Family
  • Roof:
  • Office Key: 61706
Features & Appliances
Features
  • Heating System: Heat Pump, Electric, Forced air, Baseboard heaters
  • Cooling System: Central air conditioning
  • Fence: Fence
  • Fireplace: Gas, Unknown
  • Parking: Additional Parking, Attached Garage
  • Architectural Style: Contemporary
  • Exterior Features: Other, Stucco
  • Flooring: Laminate, Tile, Carpeted
  • Sewer: Municipal sewage system
  • Fireplaces Total: 1
Address Map
  • Location: CA, British Columbia, Lake Country, V4V0C2
  • Street: McCarthy
  • Street Number: 19950
  • Street Suffix: Road
  • Longitude: W120° 35' 57.8''
  • Latitude: N50° 1' 34.4''
Additional Information
  • Water Source:
  • Community Features:
  • Lot Features:
  • Lot Size Dimensions: 0.1
  • Stories: 2.0
Financial
  • Association Fee: 96.26
  • Association Fee Frequency: Monthly
Powered by REALTOR.ca
Listing updated: 2026-04-22 09:51:09
List Your Property
Mortgage Calculator
Get Pre-Approved
$
$
%
%
years
Monthly Payment (Est.) $
Listing Information
  • List Agent Key: 2091458
  • List Office Key: 61706
  • Modification Timestamp: 2026-03-22T21:25:34Z
  • Originating System Name: Association of Interior REALTORS®
  • Status Change Timestamp: 2026-03-22T21:19:30Z
Powered by REALTOR.ca
Listing updated: 2026-04-22 09:51:10
REALTOR®, REALTORS®, and the REALTOR® logo are certification marks that are owned by REALTOR® Canada Inc. and licensed exclusively to The Canadian Real Estate Association (CREA). These certification marks identify real estate professionals who are members of CREA and who must abide by CREA’s By‐Laws, Rules, and the REALTOR® Code. The MLS® trademark and the MLS® logo are owned by CREA and identify the quality of services provided by real estate professionals who are members of CREA.

The information contained on this site is based in whole or in part on information that is provided by members of The Canadian Real Estate Association, who are responsible for its accuracy. CREA reproduces and distributes this information as a service for its members and assumes no responsibility for its accuracy.

Website is operated by a brokerage or salesperson who is a member of The Canadian Real Estate Association.

The listing content on this website is protected by copyright and other laws, and is intended solely for the private, non‐commercial use by individuals. Any other reproduction, distribution or use of the content, in whole or in part, is specifically forbidden. The prohibited uses include commercial use, “screen scraping”, “database scraping”, and any other activity intended to collect, store, reorganize or manipulate data on the pages produced by or displayed on this website.

By continuing to use this website and its services, you agree to these

These forms are provided to ComFree’s Unrepresented Sellers as a part of their Mere Posting ComFree Listing Contract.

I acknowledge I can only access these forms as a ComFree customer under contract.

These forms are provided to ComFree’s Unrepresented Sellers as a part of their Mere Posting ComFree Listing Contract and in partnership with Zubic Law.

I acknowledge I can only access these forms as a ComFree customer under contract.

These forms are provided to ComFree’s Unrepresented Sellers as a part of their Mere Posting ComFree Listing Contract and in partnership with Zubic Law.

I acknowledge I can only access these forms as a ComFree customer under contract.

How It Works

1. Purchase Your Package

2. We Ship Your ‘For Sale’ Sign

3. Book Your VR Tour

4. Complete Listing Input Forms

5. We Make Your Listing Live

6. Get Support 7 Days a Week

7. iSOLD!