Share
$1
Ontario,Toronto (Bay Street Corridor)
For Rent Active
R1A - 925 BAY STREET, Toronto (Bay Street Corridor), Ontario M5S3L4
  • 1,043 Sqft
Contact Seller
Basic Details
Description

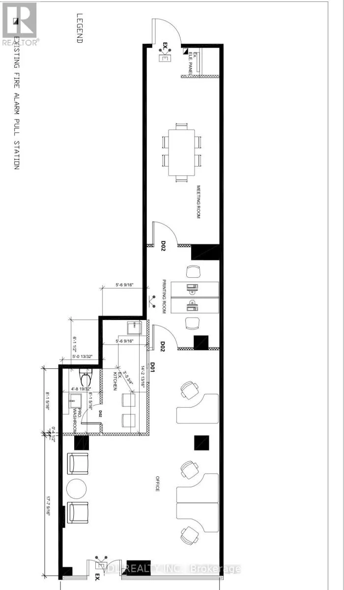
Move-in-ready, fully renovated and furnished 1,043 sq. ft. office sublease prominently located at the signalized corner of Bay Street and Wellesley Street, with direct street frontage on Bay Street. Situated at the base of The Bay Club, a 32-storey residential tower, the space benefits from excellent visibility, continuous pedestrian traffic, and immediate TTC access directly outside the entrance. The bright,

efficient layout includes one private office, one meeting room, a large open workstation area, a kitchen, and a private washroom, offering a true turnkey solution for professional or commercial users. Approximately 500 metres from the University of Toronto and UHN, and surrounded by major institutions including Queen’s Park, Toronto Metropolitan University, College Park, and numerous office towers. A short, convenient walk to world-class arts and entertainment, parks, dining, and luxury shopping in Yorkville, as well as minutes from Holt Renfrew Centre and the Colonnade on Bloor Street. This vibrant location benefits from strong daytime and evening activity and is well suited for a wide range of commercial uses office, restaurants, retail, dental, and other Personal & Consumer Services like Hair/Nail salon, Dry Cleaner,Fitness Centre, etc.. (id:62650)

Read More
Basic Details
  • Property Type: Commercial Lease
  • Listing Type: For Rent
  • Listing ID: C12718096
  • Price: $1
  • Square Footage: 1,043 Sqft
  • Status: Active
  • Property Sub Type: Office
  • Office Key: 248415
Features & Appliances
Features
  • Heating System: Electric, Forced air
  • Cooling System: Fully air conditioned
Address Map
  • Location: CA, Ontario, Toronto (Bay Street Corridor), M5S3L4
  • Street: Bay
  • Street Number: 925
  • Street Suffix: Street
  • Longitude: W80° 36' 48.1''
  • Latitude: N43° 39' 50.9''
Additional Information
  • Water Source:
Financial
  • Tax Annual Amount: 22
Powered by REALTOR.ca
Listing updated: 2026-05-03 01:50:40
List Your Property
Listing Information
  • List Agent Key: 1531662
  • List Office Key: 248415
  • Modification Timestamp: 2026-01-22T16:20:31Z
  • Originating System Name: Toronto Regional Real Estate Board
  • Status Change Timestamp: 2026-01-22T16:02:52Z
Powered by REALTOR.ca
Listing updated: 2026-05-03 01:50:41
REALTOR®, REALTORS®, and the REALTOR® logo are certification marks that are owned by REALTOR® Canada Inc. and licensed exclusively to The Canadian Real Estate Association (CREA). These certification marks identify real estate professionals who are members of CREA and who must abide by CREA’s By‐Laws, Rules, and the REALTOR® Code. The MLS® trademark and the MLS® logo are owned by CREA and identify the quality of services provided by real estate professionals who are members of CREA.

The information contained on this site is based in whole or in part on information that is provided by members of The Canadian Real Estate Association, who are responsible for its accuracy. CREA reproduces and distributes this information as a service for its members and assumes no responsibility for its accuracy.

Website is operated by a brokerage or salesperson who is a member of The Canadian Real Estate Association.

The listing content on this website is protected by copyright and other laws, and is intended solely for the private, non‐commercial use by individuals. Any other reproduction, distribution or use of the content, in whole or in part, is specifically forbidden. The prohibited uses include commercial use, “screen scraping”, “database scraping”, and any other activity intended to collect, store, reorganize or manipulate data on the pages produced by or displayed on this website.

By continuing to use this website and its services, you agree to these

These forms are provided to ComFree’s Unrepresented Sellers as a part of their Mere Posting ComFree Listing Contract.

I acknowledge I can only access these forms as a ComFree customer under contract.

These forms are provided to ComFree’s Unrepresented Sellers as a part of their Mere Posting ComFree Listing Contract and in partnership with Zubic Law.

I acknowledge I can only access these forms as a ComFree customer under contract.

These forms are provided to ComFree’s Unrepresented Sellers as a part of their Mere Posting ComFree Listing Contract and in partnership with Zubic Law.

I acknowledge I can only access these forms as a ComFree customer under contract.

How It Works

1. Purchase Your Package

2. We Ship Your ‘For Sale’ Sign

3. Book Your VR Tour

4. Complete Listing Input Forms

5. We Make Your Listing Live

6. Get Support 7 Days a Week

7. iSOLD!