Share
$3,000
Ontario,Brockville
For Sale Active
1 - 18 KING STREET W, Brockville, Ontario K6V3P6
  • 2,500 Sqft
Contact Seller
Basic Details
Description

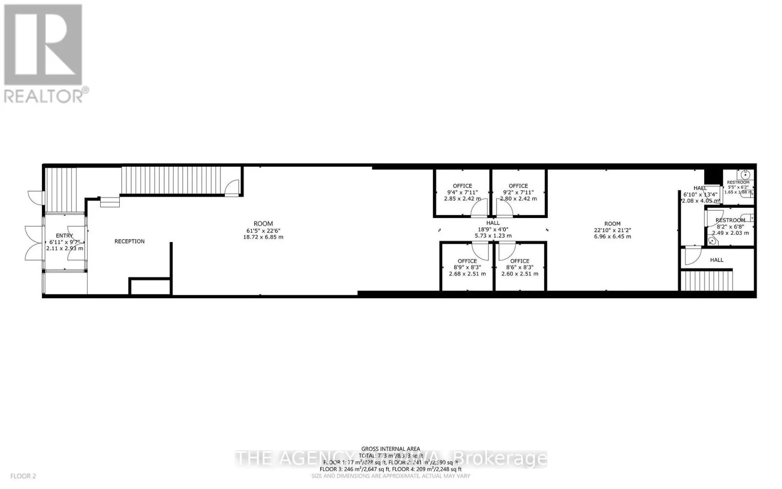
Welcome to 18 King Street West – Main Level, a bright and versatile approx. 2,500 sq. ft. commercial unit located in the heart of downtown Brockville.This open, well-maintained space offers excellent street exposure, high foot traffic, and flexible layout options – making it ideal for a wide range of uses such as professional offices, retail, wellness clinics, studios, or boutique

services. Prominent storefront visibility along King Street West. Private entrance and large display windows. On-site parking (shared, up to 6 spaces for the building). Located just steps from the waterfront, restaurants, shops, and VIA Rail. C2 X2-1 zoning allows for a variety of commercial and service uses. Whether you’re an established business or an entrepreneur ready to open your doors, this space combines prime location, charm, and functionality in one of Brockville’s most vibrant areas. (id:62650)

Read More
Basic Details
  • Property Type: Commercial Sale
  • Listing Type: For Sale
  • Listing ID: X12737744
  • Price: $3,000
  • Square Footage: 2,500 Sqft
  • Status: Active
  • Property Sub Type: Retail
  • Office Key: 278122
Features & Appliances
Features
  • Heating System: Forced air, Natural gas
  • Cooling System: Fully air conditioned
Address Map
  • Location: CA, Ontario, Brockville, K6V3P6
  • Street: King
  • Street Number: 18
  • Street Suffix: Street
  • Longitude: W76° 18' 59.4''
  • Latitude: N44° 35' 25''
  • Street Dir Suffix: West
Additional Information
  • Water Source:
  • Lot Size Dimensions: Bldg=25 x 164 FT
Financial
  • Tax Annual Amount: 13271.71
Powered by REALTOR.ca
Listing updated: 2026-04-20 14:52:40
List Your Property
Mortgage Calculator
Get Pre-Approved
$
$
%
%
years
Monthly Payment (Est.) $
Listing Information
  • List Agent Key: 2091487
  • List Office Key: 278122
  • Modification Timestamp: 2026-04-14T20:05:20Z
  • Originating System Name: Ottawa Real Estate Board
  • Status Change Timestamp: 2026-04-14T20:04:03Z
Powered by REALTOR.ca
Listing updated: 2026-04-20 14:52:40
REALTOR®, REALTORS®, and the REALTOR® logo are certification marks that are owned by REALTOR® Canada Inc. and licensed exclusively to The Canadian Real Estate Association (CREA). These certification marks identify real estate professionals who are members of CREA and who must abide by CREA’s By‐Laws, Rules, and the REALTOR® Code. The MLS® trademark and the MLS® logo are owned by CREA and identify the quality of services provided by real estate professionals who are members of CREA.

The information contained on this site is based in whole or in part on information that is provided by members of The Canadian Real Estate Association, who are responsible for its accuracy. CREA reproduces and distributes this information as a service for its members and assumes no responsibility for its accuracy.

Website is operated by a brokerage or salesperson who is a member of The Canadian Real Estate Association.

The listing content on this website is protected by copyright and other laws, and is intended solely for the private, non‐commercial use by individuals. Any other reproduction, distribution or use of the content, in whole or in part, is specifically forbidden. The prohibited uses include commercial use, “screen scraping”, “database scraping”, and any other activity intended to collect, store, reorganize or manipulate data on the pages produced by or displayed on this website.

By continuing to use this website and its services, you agree to these

These forms are provided to ComFree’s Unrepresented Sellers as a part of their Mere Posting ComFree Listing Contract.

I acknowledge I can only access these forms as a ComFree customer under contract.

These forms are provided to ComFree’s Unrepresented Sellers as a part of their Mere Posting ComFree Listing Contract and in partnership with Zubic Law.

I acknowledge I can only access these forms as a ComFree customer under contract.

These forms are provided to ComFree’s Unrepresented Sellers as a part of their Mere Posting ComFree Listing Contract and in partnership with Zubic Law.

I acknowledge I can only access these forms as a ComFree customer under contract.

How It Works

1. Purchase Your Package

2. We Ship Your ‘For Sale’ Sign

3. Book Your VR Tour

4. Complete Listing Input Forms

5. We Make Your Listing Live

6. Get Support 7 Days a Week

7. iSOLD!