Share
$139,000
Ontario,South Bruce Peninsula
For Sale Active
3 ORIOLE AVENUE, South Bruce Peninsula, Ontario N0H2T0
Contact Seller
Basic Details
Description

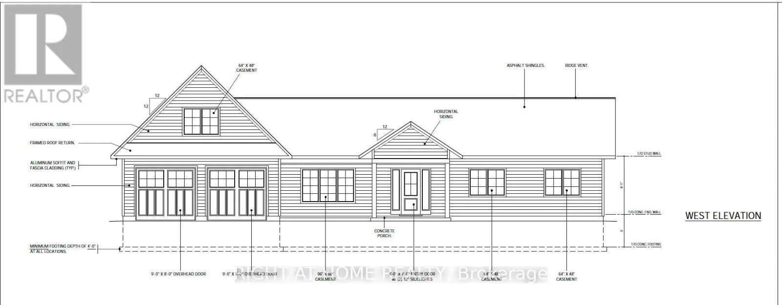
Best Deal You Can Find In This Location – Huge Potential for investors with vision! Zoned R3 with a generous lot size ideal for a variety of building styles permitting multi-residential 3+ units, triplexes, townhouses & more. Huge investment potential!Rare opportunity to own a PREMIUM 100′ x 140′ building lot in the sought-after lakeside community of Oliphant on the beautiful

Bruce Peninsula. Surrounded by mature trees, natural beauty, and established homes and cottages, this property offers the perfect setting for your dream cottage or year-round residence.What truly sets this lot apart it comes with approved architectural drawings and a building permit for a thoughtfully designed 4-bedroom, 3-bathroom bungalow, saving you significant time, money, and months of planning. The seller has already made a substantial investment to have this completed. Simply pull your permit and start building. Just a short walk to the shores of Lake Huron and a 2-minute drive to the popular Oliphant North Beach, renowned for its shallow, crystal-clear waters a premier destination for kiteboarding, windsurfing, sailing, and outdoor adventure. Conveniently located a short drive to Sauble Beach and Wiarton. Priced for a quick sale this is exceptional value in today’s market. Don’t miss your chance to secure one of the best-valued building lots on the Bruce Peninsula. Come and check yourself (id:62650)

Read More
Basic Details
  • Property Type: Residential
  • Listing Type: For Sale
  • Listing ID: X12742132
  • Price: $139,000
  • Status: Active
  • Property Sub Type: Vacant Land
  • Office Key: 279050
Features & Appliances
Features
  • Utilities: Cable
Address Map
  • Location: CA, Ontario, South Bruce Peninsula, N0H2T0
  • Street: ORIOLE
  • Street Number: 3
  • Street Suffix: Avenue
  • Longitude: W82° 44' 17.4''
  • Latitude: N44° 45' 0.8''
Additional Information
  • Lot Size Dimensions: 100 x 140 FT
Financial
  • Tax Annual Amount: 365
Powered by REALTOR.ca
Listing updated: 2026-04-27 07:43:06
List Your Property
Mortgage Calculator
Get Pre-Approved
$
$
%
%
years
Monthly Payment (Est.) $
Listing Information
  • List Agent Key: 2016232
  • List Office Key: 279050
  • Modification Timestamp: 2026-04-23T13:41:05Z
  • Originating System Name: Toronto Regional Real Estate Board
  • Status Change Timestamp: 2026-04-23T13:13:10Z
Powered by REALTOR.ca
Listing updated: 2026-04-27 07:43:06
REALTOR®, REALTORS®, and the REALTOR® logo are certification marks that are owned by REALTOR® Canada Inc. and licensed exclusively to The Canadian Real Estate Association (CREA). These certification marks identify real estate professionals who are members of CREA and who must abide by CREA’s By‐Laws, Rules, and the REALTOR® Code. The MLS® trademark and the MLS® logo are owned by CREA and identify the quality of services provided by real estate professionals who are members of CREA.

The information contained on this site is based in whole or in part on information that is provided by members of The Canadian Real Estate Association, who are responsible for its accuracy. CREA reproduces and distributes this information as a service for its members and assumes no responsibility for its accuracy.

Website is operated by a brokerage or salesperson who is a member of The Canadian Real Estate Association.

The listing content on this website is protected by copyright and other laws, and is intended solely for the private, non‐commercial use by individuals. Any other reproduction, distribution or use of the content, in whole or in part, is specifically forbidden. The prohibited uses include commercial use, “screen scraping”, “database scraping”, and any other activity intended to collect, store, reorganize or manipulate data on the pages produced by or displayed on this website.

By continuing to use this website and its services, you agree to these

These forms are provided to ComFree’s Unrepresented Sellers as a part of their Mere Posting ComFree Listing Contract.

I acknowledge I can only access these forms as a ComFree customer under contract.

These forms are provided to ComFree’s Unrepresented Sellers as a part of their Mere Posting ComFree Listing Contract and in partnership with Zubic Law.

I acknowledge I can only access these forms as a ComFree customer under contract.

These forms are provided to ComFree’s Unrepresented Sellers as a part of their Mere Posting ComFree Listing Contract and in partnership with Zubic Law.

I acknowledge I can only access these forms as a ComFree customer under contract.

How It Works

1. Purchase Your Package

2. We Ship Your ‘For Sale’ Sign

3. Book Your VR Tour

4. Complete Listing Input Forms

5. We Make Your Listing Live

6. Get Support 7 Days a Week

7. iSOLD!