Share
$1,245,000
Ontario,Mississauga (Lakeview)
For Sale Active
723 LAKESHORE ROAD E, Mississauga (Lakeview), Ontario L5G1J7
  • 2,000 Sqft
Contact Seller
Basic Details
Description

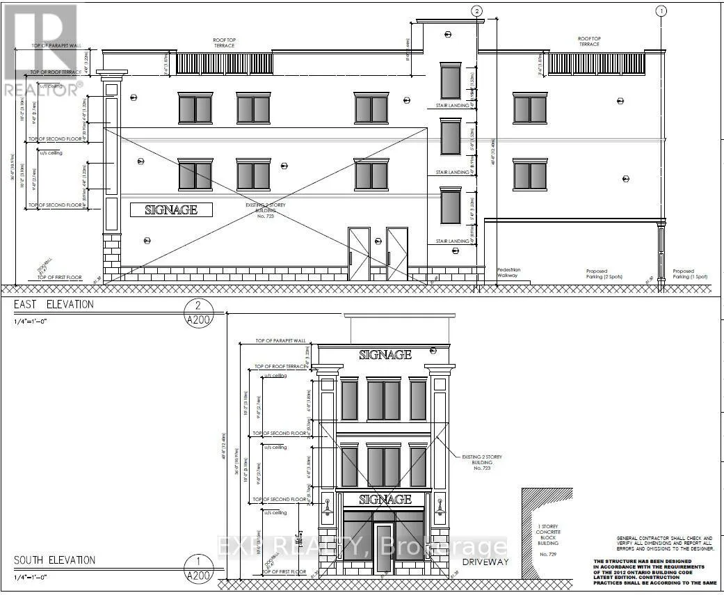
Shovel-ready mixed-use redevelopment opportunity along the Lakeshore corridor. The existing two-storey building features one retail unit and one residential apartment, offering holding income with clear upside. The property is fully approved to add a third storey and convert to six residential units plus one retail space. Minor Variance, site plan approval, and architectural drawings are all complete. A new owner

can pull permits and proceed directly to construction. Further value is created through reduced development charges from the City of Mississauga, available until November 2026, enhancing overall project economics. (id:62650)

Read More
Basic Details
  • Property Type: Residential Income
  • Listing Type: For Sale
  • Listing ID: W12748344
  • Price: $1,245,000
  • Square Footage: 2,000 Sqft
  • Status: Active
  • Property Attached Yn: 1
  • Property Sub Type: Multi-family
  • Office Key: 280225
Features & Appliances
Features
  • Heating System: Forced air, Natural gas
  • Cooling System: Fully air conditioned
Address Map
  • Location: CA, Ontario, Mississauga (Lakeview), L5G1J7
  • Street: Lakeshore
  • Street Number: 723
  • Street Suffix: Road
  • Longitude: W80° 26' 2.6''
  • Latitude: N43° 34' 14.2''
  • Street Dir Suffix: East
Additional Information
  • Water Source:
  • Lot Size Dimensions: 2000
Financial
  • Tax Annual Amount: 14245
Powered by REALTOR.ca
Listing updated: 2026-04-20 21:09:42
List Your Property
Mortgage Calculator
Get Pre-Approved
$
$
%
%
years
Monthly Payment (Est.) $
Similar Properties
Listing Information
  • List Agent Key: 2235238
  • List Office Key: 280225
  • Modification Timestamp: 2026-04-07T14:55:09Z
  • Originating System Name: Toronto Regional Real Estate Board
  • Status Change Timestamp: 2026-04-07T14:46:21Z
Powered by REALTOR.ca
Listing updated: 2026-04-20 21:09:43
REALTOR®, REALTORS®, and the REALTOR® logo are certification marks that are owned by REALTOR® Canada Inc. and licensed exclusively to The Canadian Real Estate Association (CREA). These certification marks identify real estate professionals who are members of CREA and who must abide by CREA’s By‐Laws, Rules, and the REALTOR® Code. The MLS® trademark and the MLS® logo are owned by CREA and identify the quality of services provided by real estate professionals who are members of CREA.

The information contained on this site is based in whole or in part on information that is provided by members of The Canadian Real Estate Association, who are responsible for its accuracy. CREA reproduces and distributes this information as a service for its members and assumes no responsibility for its accuracy.

Website is operated by a brokerage or salesperson who is a member of The Canadian Real Estate Association.

The listing content on this website is protected by copyright and other laws, and is intended solely for the private, non‐commercial use by individuals. Any other reproduction, distribution or use of the content, in whole or in part, is specifically forbidden. The prohibited uses include commercial use, “screen scraping”, “database scraping”, and any other activity intended to collect, store, reorganize or manipulate data on the pages produced by or displayed on this website.

By continuing to use this website and its services, you agree to these

These forms are provided to ComFree’s Unrepresented Sellers as a part of their Mere Posting ComFree Listing Contract.

I acknowledge I can only access these forms as a ComFree customer under contract.

These forms are provided to ComFree’s Unrepresented Sellers as a part of their Mere Posting ComFree Listing Contract and in partnership with Zubic Law.

I acknowledge I can only access these forms as a ComFree customer under contract.

These forms are provided to ComFree’s Unrepresented Sellers as a part of their Mere Posting ComFree Listing Contract and in partnership with Zubic Law.

I acknowledge I can only access these forms as a ComFree customer under contract.

How It Works

1. Purchase Your Package

2. We Ship Your ‘For Sale’ Sign

3. Book Your VR Tour

4. Complete Listing Input Forms

5. We Make Your Listing Live

6. Get Support 7 Days a Week

7. iSOLD!