Share
$306,000
Ontario,Fort Erie (Ridgeway)
For Sale Active
2847 MAPLE AVENUE, Fort Erie (Ridgeway), Ontario L0S1N0
Contact Seller
Basic Details
Description

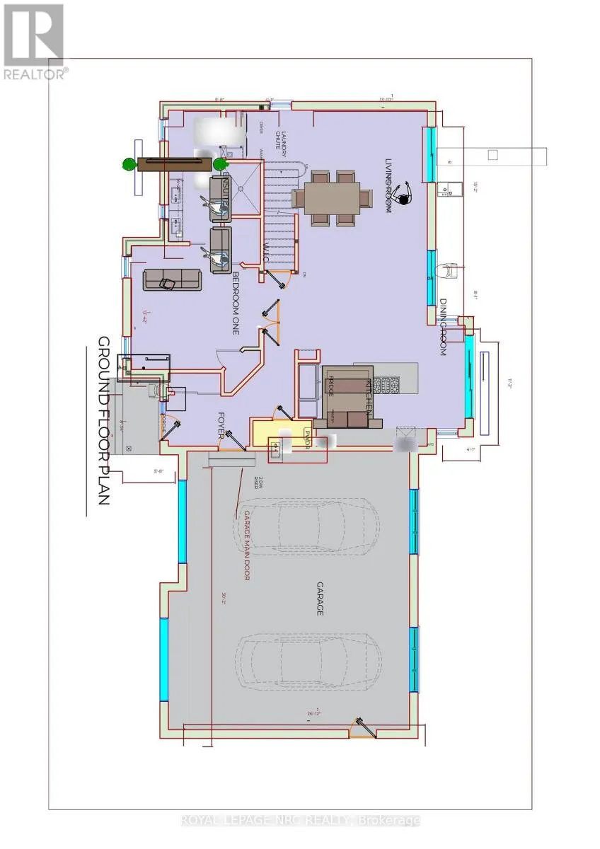
Welcome to 2847 Maple Avenue with a fantastic opportunity to build your forever dream home in a well desired, quiet location of Oakhill Forest area of Ridgeway. This vacant lot features plenty of mature trees on a double sized lot of 135 Ft. x 120 Ft. with a partially fenced yard. Close to all amenities, schools, downtown Ridgeway with plenty

of boutiques and restaurants and close to several different Lake Erie sandy beaches. Start planning your luxurious new home! Call today this area is a very rare opportunity to make it your own. The Seller has existing 2 Storey building design (pictures provided) and if interested inquire for further information. (id:62650)

Read More
Basic Details
  • Property Type: Residential
  • Listing Type: For Sale
  • Listing ID: X12757870
  • Price: $306,000
  • Status: Active
  • Property Sub Type: Vacant Land
  • Office Key: 273980
Features & Appliances
Features
  • Utilities: Electricity, Cable
Address Map
  • Location: CA, Ontario, Fort Erie (Ridgeway), L0S1N0
  • Street: Maple
  • Street Number: 2847
  • Street Suffix: Avenue
  • Longitude: W80° 58' 42.6''
  • Latitude: N42° 53' 58.1''
Additional Information
  • Lot Size Dimensions: 135 x 120.4 FT
Financial
  • Tax Annual Amount: 445.54
Powered by REALTOR.ca
Listing updated: 2026-04-17 19:59:04
List Your Property
Mortgage Calculator
Get Pre-Approved
$
$
%
%
years
Monthly Payment (Est.) $
Listing Information
  • List Agent Key: 2013400
  • List Office Key: 273980
  • Modification Timestamp: 2026-02-04T18:01:05Z
  • Originating System Name: Niagara Association of REALTORS®
  • Status Change Timestamp: 2026-02-04T17:42:48Z
Powered by REALTOR.ca
Listing updated: 2026-04-17 19:59:05
REALTOR®, REALTORS®, and the REALTOR® logo are certification marks that are owned by REALTOR® Canada Inc. and licensed exclusively to The Canadian Real Estate Association (CREA). These certification marks identify real estate professionals who are members of CREA and who must abide by CREA’s By‐Laws, Rules, and the REALTOR® Code. The MLS® trademark and the MLS® logo are owned by CREA and identify the quality of services provided by real estate professionals who are members of CREA.

The information contained on this site is based in whole or in part on information that is provided by members of The Canadian Real Estate Association, who are responsible for its accuracy. CREA reproduces and distributes this information as a service for its members and assumes no responsibility for its accuracy.

Website is operated by a brokerage or salesperson who is a member of The Canadian Real Estate Association.

The listing content on this website is protected by copyright and other laws, and is intended solely for the private, non‐commercial use by individuals. Any other reproduction, distribution or use of the content, in whole or in part, is specifically forbidden. The prohibited uses include commercial use, “screen scraping”, “database scraping”, and any other activity intended to collect, store, reorganize or manipulate data on the pages produced by or displayed on this website.

By continuing to use this website and its services, you agree to these

These forms are provided to ComFree’s Unrepresented Sellers as a part of their Mere Posting ComFree Listing Contract.

I acknowledge I can only access these forms as a ComFree customer under contract.

These forms are provided to ComFree’s Unrepresented Sellers as a part of their Mere Posting ComFree Listing Contract and in partnership with Zubic Law.

I acknowledge I can only access these forms as a ComFree customer under contract.

These forms are provided to ComFree’s Unrepresented Sellers as a part of their Mere Posting ComFree Listing Contract and in partnership with Zubic Law.

I acknowledge I can only access these forms as a ComFree customer under contract.

How It Works

1. Purchase Your Package

2. We Ship Your ‘For Sale’ Sign

3. Book Your VR Tour

4. Complete Listing Input Forms

5. We Make Your Listing Live

6. Get Support 7 Days a Week

7. iSOLD!