Share
$546,900
Saskatchewan,Saskatoon
For Sale Active
431 Stehwien STREET, Saskatoon, Saskatchewan S7W1M9
  • 4
  • 4
  • 1,234 Sqft
Contact Seller
Basic Details
Description

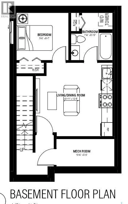
*NOW ACCEPTING 5% DEPOSIT! RARE INVESTMENT OPPORTUNITY!!! FULLY DEVELOPED – 1 BEDROOM LEGAL BASEMENT SUITE WITH SEPARATE SIDE DOOR ENTRY IS INCLUDED!!! Welcome to The Aspen Collection by Decora Homes, located in the highly sought-after neighbourhood of Aspen Ridge. The Colorado model is a 1,234 sqft, 2-storey home that offers a functional and stylish layout with 3 bedrooms, 2.5 bathrooms,

and convenient second-floor laundry with washer and dryer included. The open-concept main floor features luxury vinyl plank flooring throughout and a modern kitchen with quartz countertops. This model also includes a 1 bedroom, 1 bathroom legal basement suite with a separate side entry — a great option for rental income or multi-generational living. Additional features include xeriscaped front landscaping, a concrete walkway from the sidewalk to the front door, and a 20×20 concrete parking pad with back alley access. Now available for Pre-Sale, with estimated completion in Fall 2026. Buyers can choose from three thoughtfully curated colour palettes: Harmony, Tranquil, or Horizon. This lot also offers the option to add-on a standard detached garage or the “Malibu Detached Garage” suite, which features an additional ONE BEDROOM LEGAL RENTAL SUITE “LOFT” above the double detached garage. Add-on and upgrade options are available. Pricing options without a Basement Suite available, please inquire for more details! Please contact your Realtor today for more information and add-on pricing! (id:62650)

Read More
Basic Details
  • Property Type: Residential
  • Listing Type: For Sale
  • Listing ID: SK027880
  • Price: $546,900
  • Bedrooms: 4
  • Bathrooms: 4
  • Square Footage: 1,234 Sqft
  • Year Built: 2026
  • Status: Active
  • Property Sub Type: Single Family
  • Office Key: 48299
Features & Appliances
Features
  • Heating System: Forced air, Natural gas
  • Cooling System: Air exchanger
  • Basement: Finished, Full
  • Parking: None, Parking Pad, Parking Space(s)
  • Architectural Style: 2 Level
Address Map
  • Location: CA, Saskatchewan, Saskatoon, S7W1M9
  • Longitude: W107° 27' 50''
  • Latitude: N52° 10' 35.8''
Additional Information
  • Lot Features:
  • Lot Size Dimensions: 30x127.9
  • Stories: 2.0
Powered by REALTOR.ca
Listing updated: 2026-04-25 04:33:07
List Your Property
Mortgage Calculator
Get Pre-Approved
$
$
%
%
years
Monthly Payment (Est.) $
Listing Information
  • List Agent Key: 1934192
  • List Office Key: 48299
  • Modification Timestamp: 2026-03-13T20:20:04Z
  • Originating System Name: Saskatchewan REALTORS® Association
  • Status Change Timestamp: 2026-03-13T20:14:26Z
Powered by REALTOR.ca
Listing updated: 2026-04-25 04:33:08
REALTOR®, REALTORS®, and the REALTOR® logo are certification marks that are owned by REALTOR® Canada Inc. and licensed exclusively to The Canadian Real Estate Association (CREA). These certification marks identify real estate professionals who are members of CREA and who must abide by CREA’s By‐Laws, Rules, and the REALTOR® Code. The MLS® trademark and the MLS® logo are owned by CREA and identify the quality of services provided by real estate professionals who are members of CREA.

The information contained on this site is based in whole or in part on information that is provided by members of The Canadian Real Estate Association, who are responsible for its accuracy. CREA reproduces and distributes this information as a service for its members and assumes no responsibility for its accuracy.

Website is operated by a brokerage or salesperson who is a member of The Canadian Real Estate Association.

The listing content on this website is protected by copyright and other laws, and is intended solely for the private, non‐commercial use by individuals. Any other reproduction, distribution or use of the content, in whole or in part, is specifically forbidden. The prohibited uses include commercial use, “screen scraping”, “database scraping”, and any other activity intended to collect, store, reorganize or manipulate data on the pages produced by or displayed on this website.

By continuing to use this website and its services, you agree to these

These forms are provided to ComFree’s Unrepresented Sellers as a part of their Mere Posting ComFree Listing Contract.

I acknowledge I can only access these forms as a ComFree customer under contract.

These forms are provided to ComFree’s Unrepresented Sellers as a part of their Mere Posting ComFree Listing Contract and in partnership with Zubic Law.

I acknowledge I can only access these forms as a ComFree customer under contract.

These forms are provided to ComFree’s Unrepresented Sellers as a part of their Mere Posting ComFree Listing Contract and in partnership with Zubic Law.

I acknowledge I can only access these forms as a ComFree customer under contract.

How It Works

1. Purchase Your Package

2. We Ship Your ‘For Sale’ Sign

3. Book Your VR Tour

4. Complete Listing Input Forms

5. We Make Your Listing Live

6. Get Support 7 Days a Week

7. iSOLD!