Share
$379,900
Ontario,Niagara Falls
For Sale Active
6390 HUGGINS Street Unit# 209, Niagara Falls, Ontario L2J1H1
  • 2
  • 1
  • 900 Sqft
Contact Seller
Basic Details
Description

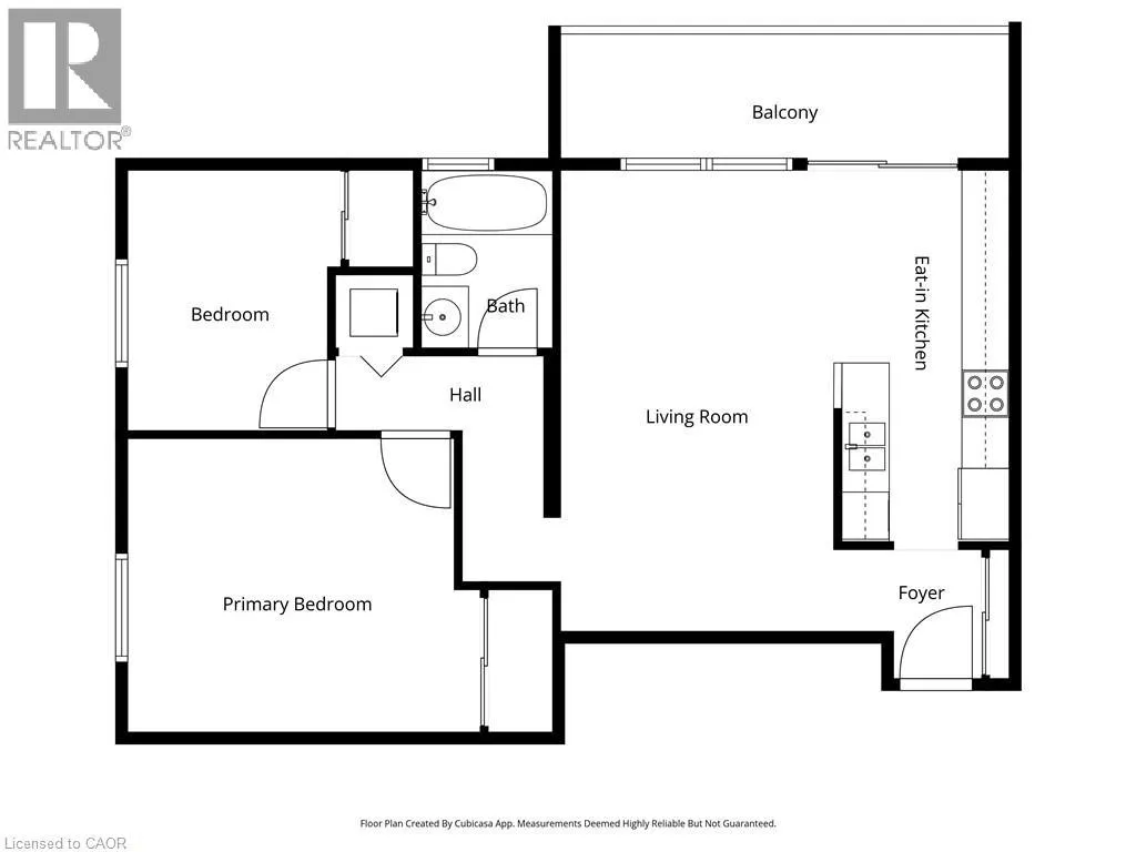
HIGHLY SOUGHT AFTER STAMFORD PLACE! Fantastic Stamford Centre location for this beautifully updated and meticulously maintained 2 bedroom corner unit. This unit features 2 generous sized bedrooms with big & bright windows, updated 4-piece bath with updated tub & shower, open concept living room, updated eat-in kitchen and over sized balcony with west facing views. This unit offers ductless air

conditioning, 1 parking space included and 1 locker included. Monthly condo fees include hot water heating, water, common elements, building insurance and parking. Building amenities include party room and private gym area. All kitchen appliances plus in-suite stackable washer & dryer included. You can pick your closing date! Walking distance to groceries, restaurants, shopping, schools, parks and easy access to the QEW highway and other amenities. (id:62650)

Read More
Basic Details
  • Property Type: Residential
  • Listing Type: For Sale
  • Listing ID: 40804228
  • Price: $379,900
  • Bedrooms: 2
  • Bathrooms: 1
  • Square Footage: 900 Sqft
  • Status: Active
  • Office Name: RE/MAX Niagara Realty Ltd.
  • Property Attached Yn: 1
  • Property Sub Type: Single Family
  • Office Key: 299400
Features & Appliances
Features
  • Heating System: Hot water radiator heat
  • Cooling System: Wall unit
  • Basement: None
  • Parking: Visitor Parking
  • Exterior Features: Stucco
  • Sewer: Municipal sewage system
Address Map
  • Location: CA, Ontario, Niagara Falls, 206 - Stamford, L2J1H1
  • Street: HUGGINS
  • Street Number: 6390
  • Street Suffix: Street
  • Longitude: W80° 53' 49.8''
  • Latitude: N43° 7' 13.6''
Additional Information
  • Water Source:
  • Lot Features:
  • Stories: 1.0
Financial
  • Association Fee: 759.23
  • Association Fee Frequency: Monthly
  • Association Fee Includes:
  • Tax Annual Amount: 2652.74
Powered by REALTOR.ca
Listing updated: 2026-03-12 11:43:01
List Your Property
Mortgage Calculator
Get Pre-Approved
$
$
%
%
years
Monthly Payment (Est.) $
Listing Information
  • List Agent Key: 2235875
  • List Office Key: 299400
  • Modification Timestamp: 2026-02-10T16:45:57Z
  • Originating System Name: Cornerstone Association of REALTORS®
  • Status Change Timestamp: 2026-02-10T16:30:17Z
Powered by REALTOR.ca
Listing updated: 2026-03-12 11:43:01
REALTOR®, REALTORS®, and the REALTOR® logo are certification marks that are owned by REALTOR® Canada Inc. and licensed exclusively to The Canadian Real Estate Association (CREA). These certification marks identify real estate professionals who are members of CREA and who must abide by CREA’s By‐Laws, Rules, and the REALTOR® Code. The MLS® trademark and the MLS® logo are owned by CREA and identify the quality of services provided by real estate professionals who are members of CREA.

The information contained on this site is based in whole or in part on information that is provided by members of The Canadian Real Estate Association, who are responsible for its accuracy. CREA reproduces and distributes this information as a service for its members and assumes no responsibility for its accuracy.

Website is operated by a brokerage or salesperson who is a member of The Canadian Real Estate Association.

The listing content on this website is protected by copyright and other laws, and is intended solely for the private, non‐commercial use by individuals. Any other reproduction, distribution or use of the content, in whole or in part, is specifically forbidden. The prohibited uses include commercial use, “screen scraping”, “database scraping”, and any other activity intended to collect, store, reorganize or manipulate data on the pages produced by or displayed on this website.

By continuing to use this website and its services, you agree to these

These forms are provided to ComFree’s Unrepresented Sellers as a part of their Mere Posting ComFree Listing Contract.

I acknowledge I can only access these forms as a ComFree customer under contract.

These forms are provided to ComFree’s Unrepresented Sellers as a part of their Mere Posting ComFree Listing Contract and in partnership with Zubic Law.

I acknowledge I can only access these forms as a ComFree customer under contract.

These forms are provided to ComFree’s Unrepresented Sellers as a part of their Mere Posting ComFree Listing Contract and in partnership with Zubic Law.

I acknowledge I can only access these forms as a ComFree customer under contract.

How It Works

1. Purchase Your Package

2. We Ship Your ‘For Sale’ Sign

3. Book Your VR Tour

4. Complete Listing Input Forms

5. We Make Your Listing Live

6. Get Support 7 Days a Week

7. iSOLD!