Share
$385,000
Alberta,Sundre
For Sale Active
B, 303 Centre Street N, Sundre, Alberta T0M1X0
  • 2
  • 3
  • 1,331 Sqft
Basic Details
Description

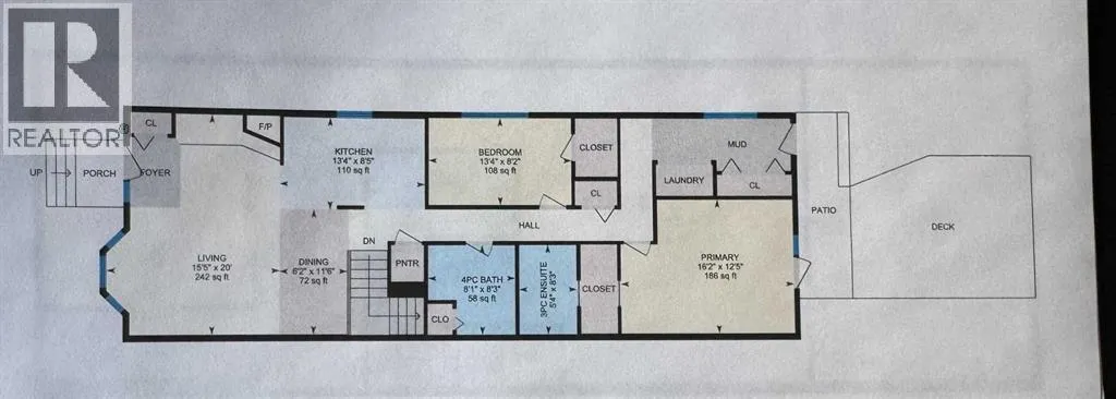
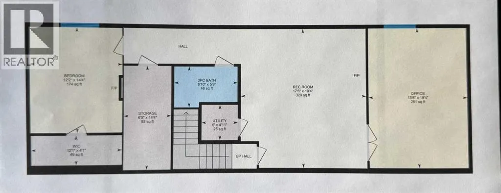
Larger than it looks! Move in ready 1997 duplex offering 1,331 sq ft above grade and a full finished basement with a total of 3 bedrooms & 3 full bathrooms. Add a large craft room with LED lighting & a calm, cool, quiet lower level room for a perfect sleep. Quality built providing a quiet and comfortable living environment. Enjoy

2 fireplaces, 1 gas, 1 electric. Also boasting, storage and more storage, an insulated double garage with lane access and a low maintenance yard. Walking distance to everywhere!The main level has been freshly painted and features an open floor plan with excellent natural flow. The kitchen offers ample counter space and functional work areas, ideal for everyday living and entertaining. A cozy gas fireplace anchors the living space, while main floor laundry adds convenience. Two bedrooms are located upstairs, including a spacious primary bedroom with direct access to the rear patio.The lower level provides flexible living space with a generous recreation room, two bonus rooms, a full bathroom, and ample storage. One bonus room features an electric fireplace, creating a comfortable retreat for hobbies, guests, or office use. Outside, enjoy a 23’ x 21’3” insulated double garage with rear lane access and additional off-street parking—a valuable feature in town.Located in the heart of Sundre, this home puts you minutes from golf, the Red Deer River, river trails, swimming, curling, skating, kayaking, biking, cross country skiing, arts and theatre, fishing, schools, shopping, and the rodeo grounds, all with quick access to West Country recreation and nature at its finest.A solid, well-maintained home offering comfort, flexibility, and a lifestyle that’s hard to beat. (id:64429)

Read More
Basic Details
  • Property Type: Residential
  • Listing Type: For Sale
  • Listing ID: A2284925
  • Price: $385,000
  • Bedrooms: 2
  • Bathrooms: 3
  • Square Footage: 1,331 Sqft
  • Year Built: 1997
  • Status: Active
  • Property Attached Yn: 1
  • Property Sub Type: Single Family
  • Office Key: 298541
Features & Appliances
Features
  • Heating System: Other, Forced air, Natural gas
  • Cooling System: None
  • Basement: Finished, Full
  • Fence: Not fenced
  • Parking: Detached Garage, Other, Parking Pad
  • Architectural Style: Bungalow
  • Exterior Features: Stucco, Concrete
  • Flooring: Laminate
  • Fireplaces Total: 2
Address Map
  • Location: CA, Alberta, Sundre, T0M1X0
  • Street: Centre
  • Street Number: 303
  • Street Suffix: Street
  • Longitude: W115° 21' 39''
  • Latitude: N51° 48' 2.9''
  • Street Dir Suffix: North
Additional Information
  • Community Features:
  • Construction Materials:
  • Foundation Details:
  • Lot Features:
  • Lot Size Dimensions: 3750.00
  • Stories: 1.0
Financial
  • Tax Annual Amount: 3011
Powered by REALTOR.ca
Listing updated: 2026-05-07 06:42:12
List Your Property
Mortgage Calculator
Get Pre-Approved
$
$
%
%
years
Monthly Payment (Est.) $
Listing Information
  • List Agent Key: 2053585
  • List Office Key: 298541
  • Modification Timestamp: 2026-05-07T06:05:42Z
  • Originating System Name: Calgary Real Estate Board
  • Status Change Timestamp: 2026-05-07T05:56:16Z
Powered by REALTOR.ca
Listing updated: 2026-05-07 06:42:12
REALTOR®, REALTORS®, and the REALTOR® logo are certification marks that are owned by REALTOR® Canada Inc. and licensed exclusively to The Canadian Real Estate Association (CREA). These certification marks identify real estate professionals who are members of CREA and who must abide by CREA’s By‐Laws, Rules, and the REALTOR® Code. The MLS® trademark and the MLS® logo are owned by CREA and identify the quality of services provided by real estate professionals who are members of CREA.

The information contained on this site is based in whole or in part on information that is provided by members of The Canadian Real Estate Association, who are responsible for its accuracy. CREA reproduces and distributes this information as a service for its members and assumes no responsibility for its accuracy.

Website is operated by a brokerage or salesperson who is a member of The Canadian Real Estate Association.

The listing content on this website is protected by copyright and other laws, and is intended solely for the private, non‐commercial use by individuals. Any other reproduction, distribution or use of the content, in whole or in part, is specifically forbidden. The prohibited uses include commercial use, “screen scraping”, “database scraping”, and any other activity intended to collect, store, reorganize or manipulate data on the pages produced by or displayed on this website.

By continuing to use this website and its services, you agree to these

These forms are provided to ComFree’s Unrepresented Sellers as a part of their Mere Posting ComFree Listing Contract.

I acknowledge I can only access these forms as a ComFree customer under contract.

These forms are provided to ComFree’s Unrepresented Sellers as a part of their Mere Posting ComFree Listing Contract and in partnership with Zubic Law.

I acknowledge I can only access these forms as a ComFree customer under contract.

These forms are provided to ComFree’s Unrepresented Sellers as a part of their Mere Posting ComFree Listing Contract and in partnership with Zubic Law.

I acknowledge I can only access these forms as a ComFree customer under contract.

How It Works

1. Purchase Your Package

2. We Ship Your ‘For Sale’ Sign

3. Book Your VR Tour

4. Complete Listing Input Forms

5. We Make Your Listing Live

6. Get Support 7 Days a Week

7. iSOLD!