Share
$1,700
Ontario,Fort Erie (Central)
For Sale Active
3 - 43 JARVIS STREET, Fort Erie (Central), Ontario L2A2S3
  • 1,200 Sqft
Contact Seller
Basic Details
Description

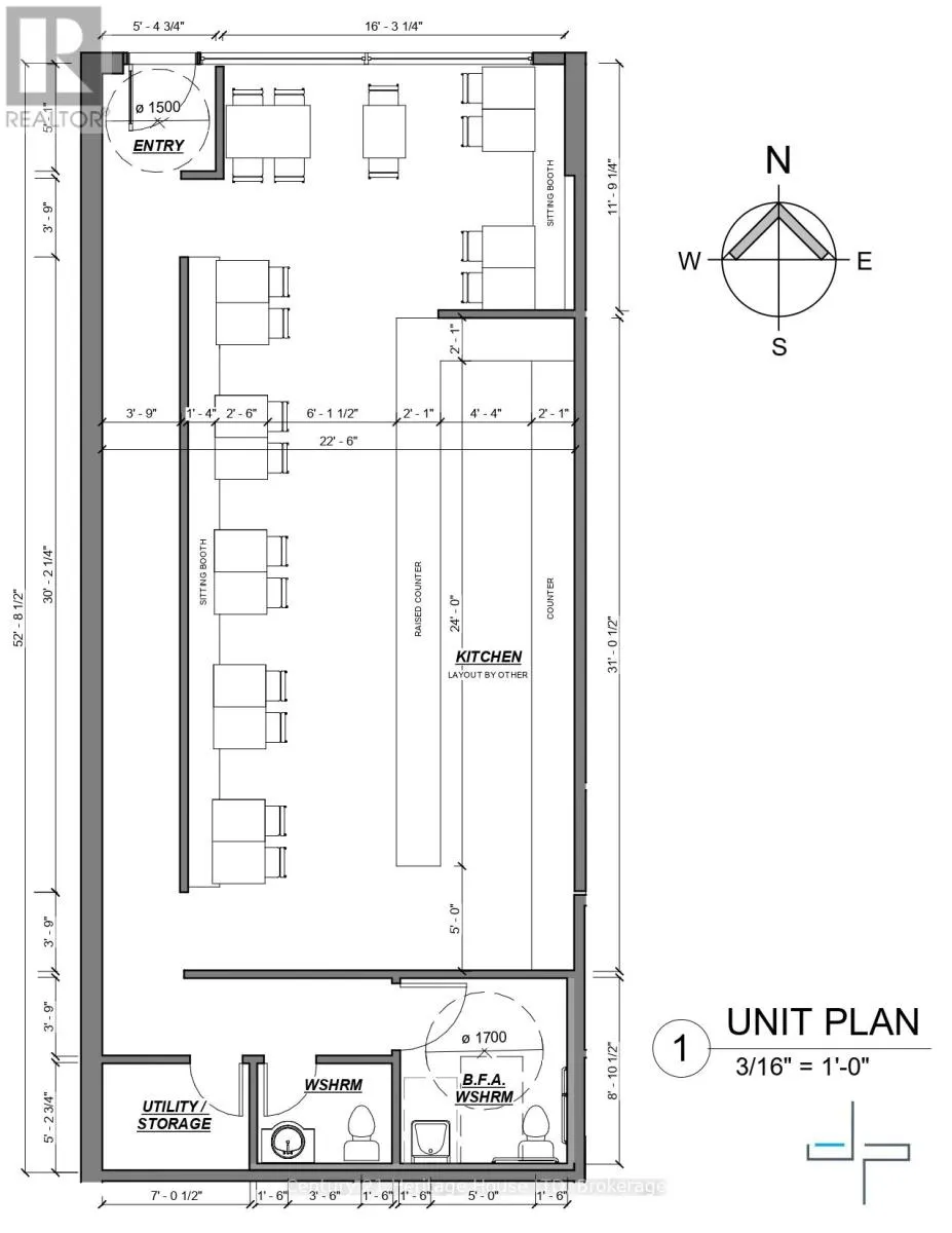
Welcome to 43 Jarvis Street, Unit #3, situated in the bustling downtown Fort Erie, our retail space puts you at the epicenter of business, culture, and innovation. This has now become a prime location thanks to the Bridgeburg BIA Streetscape Improvements. This space features a three-compartment sink, is wired and plumbed for a dishwasher and and has three phase power

for efficiency. With a zoning for C2 there are plenty of permitted uses, to include but not limited to, such as a bakery and other eating establishments, florist, spa, retail space, clinic to name only a few!! Step into a space designed for productivity and aesthetic pleasure. The interiors are thoughtfully designed with modern professionals in mind, boasting ample natural light, and an open layout that fosters collaboration and creativity. Furthermore, our commitment to eco-friendly practices is reflected in our energy-efficient systems and waste reduction initiatives. Building is also pre-wired for Bell Fibe. (id:62650)

Read More
Basic Details
  • Property Type: Commercial Sale
  • Listing Type: For Sale
  • Listing ID: X12786626
  • Price: $1,700
  • Square Footage: 1,200 Sqft
  • Status: Active
  • Property Sub Type: Retail
  • Office Key: 75307
Features & Appliances
Features
  • Heating System: Forced air, Natural gas
  • Cooling System: Fully air conditioned
Address Map
  • Location: CA, Ontario, Fort Erie (Central), L2A2S3
  • Street: Jarvis
  • Street Number: 43
  • Street Suffix: Street
  • Longitude: W79° 5' 1.5''
  • Latitude: N42° 55' 47''
Additional Information
  • Water Source:
  • Lot Size Dimensions: 77 x 135 FT
Financial
  • Tax Annual Amount: 29957
Powered by REALTOR.ca
Listing updated: 2026-04-21 03:09:56
List Your Property
Mortgage Calculator
Get Pre-Approved
$
$
%
%
years
Monthly Payment (Est.) $
Listing Information
  • List Agent Key: 1500947
  • List Office Key: 75307
  • Modification Timestamp: 2026-04-16T18:45:47Z
  • Originating System Name: Niagara Association of REALTORS®
  • Status Change Timestamp: 2026-04-16T18:36:13Z
Powered by REALTOR.ca
Listing updated: 2026-04-21 03:09:56
REALTOR®, REALTORS®, and the REALTOR® logo are certification marks that are owned by REALTOR® Canada Inc. and licensed exclusively to The Canadian Real Estate Association (CREA). These certification marks identify real estate professionals who are members of CREA and who must abide by CREA’s By‐Laws, Rules, and the REALTOR® Code. The MLS® trademark and the MLS® logo are owned by CREA and identify the quality of services provided by real estate professionals who are members of CREA.

The information contained on this site is based in whole or in part on information that is provided by members of The Canadian Real Estate Association, who are responsible for its accuracy. CREA reproduces and distributes this information as a service for its members and assumes no responsibility for its accuracy.

Website is operated by a brokerage or salesperson who is a member of The Canadian Real Estate Association.

The listing content on this website is protected by copyright and other laws, and is intended solely for the private, non‐commercial use by individuals. Any other reproduction, distribution or use of the content, in whole or in part, is specifically forbidden. The prohibited uses include commercial use, “screen scraping”, “database scraping”, and any other activity intended to collect, store, reorganize or manipulate data on the pages produced by or displayed on this website.

By continuing to use this website and its services, you agree to these

These forms are provided to ComFree’s Unrepresented Sellers as a part of their Mere Posting ComFree Listing Contract.

I acknowledge I can only access these forms as a ComFree customer under contract.

These forms are provided to ComFree’s Unrepresented Sellers as a part of their Mere Posting ComFree Listing Contract and in partnership with Zubic Law.

I acknowledge I can only access these forms as a ComFree customer under contract.

These forms are provided to ComFree’s Unrepresented Sellers as a part of their Mere Posting ComFree Listing Contract and in partnership with Zubic Law.

I acknowledge I can only access these forms as a ComFree customer under contract.

How It Works

1. Purchase Your Package

2. We Ship Your ‘For Sale’ Sign

3. Book Your VR Tour

4. Complete Listing Input Forms

5. We Make Your Listing Live

6. Get Support 7 Days a Week

7. iSOLD!