Share
$359,900
Nova Scotia,East Uniacke
For Sale Active
272 Lakewood Court, East Uniacke, Nova Scotia B0N1Z0
  • 2
  • 1
  • 672 Sqft
Contact Seller
Basic Details
Description

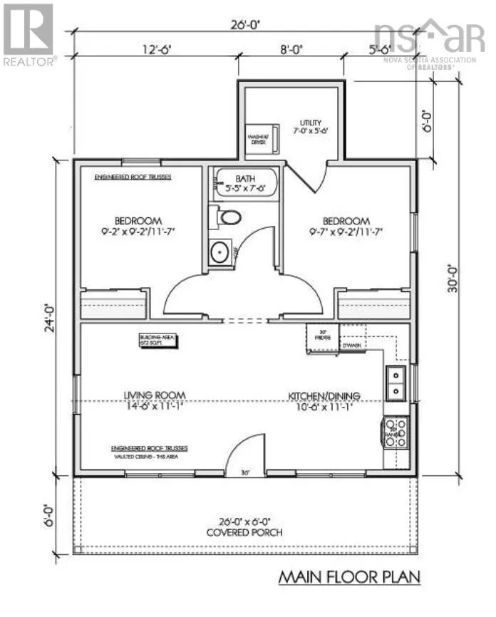
Have you dreamed of affordable living in your own house? We have the answer! Loon Point, in the Villages of Long Lake, an Lake Side Community in East Uniacke! Its just a short commute to the cities and airport. This Bare Land Condo has it all. You own your lot and everything on it, while the Condo

Corp manages and maintains the roads, parks, trails and lake access points. They are even responsible to inspect your septic tank and clean it out if required. Yes every property owner has deeded access to the 3 private lake access points with their wharves, canoe, kayak, one even has a paddle board racks and boat launch. Undeveloped Lots start at approximately $67,500 and Homes start in the $300,000 price range. We offer many home designs suited to this development. We can also help design and build your custom home. This Cricket is a cozy Rancher. It is a 648 sq ft 2 bedroom home on a 1.4 acre lot. The House includes 2 comfortably sized bedrooms, a 4 piece bath, a utility/laundry room and a comfortable great room. Comfortable Cozy and very affordable. Call to book your appointment now (id:62650)

Read More
Basic Details
  • Property Type: Residential
  • Listing Type: For Sale
  • Listing ID: 202602753
  • Price: $359,900
  • Bedrooms: 2
  • Bathrooms: 1
  • Square Footage: 672 Sqft
  • Status: Active
  • Property Sub Type: Single Family
  • Office Key: 56273
Features & Appliances
Features
  • Cooling System: Heat Pump, Wall unit
  • Basement: None
  • Parking: Gravel
  • Architectural Style: Bungalow
  • Exterior Features: Vinyl
  • Flooring: Vinyl Plank
  • Sewer: Septic System
Address Map
  • Location: CA, Nova Scotia, East Uniacke, B0N1Z0
  • Street: Explorer
  • Street Suffix: Loop
  • Longitude: W64° 13' 7.9''
  • Latitude: N44° 54' 26.2''
Additional Information
  • Water Source:
  • Accessibility Features:
  • Foundation Details:
  • Lot Features:
  • Lot Size Dimensions: 1.4087
  • Stories: 1.0
Financial
  • Association Fee: 25
  • Association Fee Frequency: Monthly
Powered by REALTOR.ca
Listing updated: 2026-04-26 04:09:11
List Your Property
Mortgage Calculator
Get Pre-Approved
$
$
%
%
years
Monthly Payment (Est.) $
Listing Information
  • List Agent Key: 1459969
  • List Office Key: 56273
  • Modification Timestamp: 2026-04-02T19:50:20Z
  • Originating System Name: Nova Scotia Association of REALTORS®
  • Status Change Timestamp: 2026-04-02T19:40:44Z
Powered by REALTOR.ca
Listing updated: 2026-04-26 04:09:11
REALTOR®, REALTORS®, and the REALTOR® logo are certification marks that are owned by REALTOR® Canada Inc. and licensed exclusively to The Canadian Real Estate Association (CREA). These certification marks identify real estate professionals who are members of CREA and who must abide by CREA’s By‐Laws, Rules, and the REALTOR® Code. The MLS® trademark and the MLS® logo are owned by CREA and identify the quality of services provided by real estate professionals who are members of CREA.

The information contained on this site is based in whole or in part on information that is provided by members of The Canadian Real Estate Association, who are responsible for its accuracy. CREA reproduces and distributes this information as a service for its members and assumes no responsibility for its accuracy.

Website is operated by a brokerage or salesperson who is a member of The Canadian Real Estate Association.

The listing content on this website is protected by copyright and other laws, and is intended solely for the private, non‐commercial use by individuals. Any other reproduction, distribution or use of the content, in whole or in part, is specifically forbidden. The prohibited uses include commercial use, “screen scraping”, “database scraping”, and any other activity intended to collect, store, reorganize or manipulate data on the pages produced by or displayed on this website.

By continuing to use this website and its services, you agree to these

These forms are provided to ComFree’s Unrepresented Sellers as a part of their Mere Posting ComFree Listing Contract.

I acknowledge I can only access these forms as a ComFree customer under contract.

These forms are provided to ComFree’s Unrepresented Sellers as a part of their Mere Posting ComFree Listing Contract and in partnership with Zubic Law.

I acknowledge I can only access these forms as a ComFree customer under contract.

These forms are provided to ComFree’s Unrepresented Sellers as a part of their Mere Posting ComFree Listing Contract and in partnership with Zubic Law.

I acknowledge I can only access these forms as a ComFree customer under contract.

How It Works

1. Purchase Your Package

2. We Ship Your ‘For Sale’ Sign

3. Book Your VR Tour

4. Complete Listing Input Forms

5. We Make Your Listing Live

6. Get Support 7 Days a Week

7. iSOLD!