Share
$1,700
Ontario,Ottawa
For Sale Active
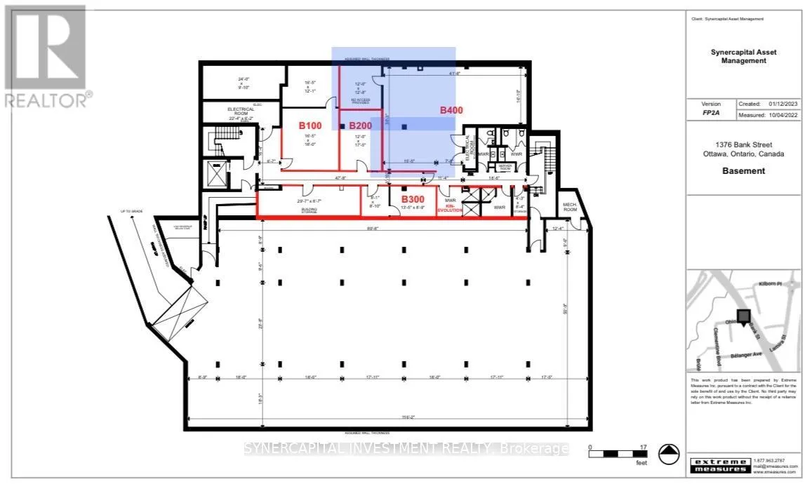
B400 - 1376 BANK STREET, Ottawa, Ontario K1H7Y3
  • 620 Sqft
Basic Details
Description

Approx 625 rentable square feet of turn-key office space in basement of well-managed office building! Currently divided into 2 large rooms forming an “L” shape, and can be divided further. Landlord can provide/organize desired fit-up at cost, pro-rated over the lease term! Space is currently used as physiotherapy/osteopathy/RMT wellness practitioners but has wide variety of applications.See marked-up floorplans in tandem

with the following description: the proposed new space crops some of the (current) B400 open floor plan and closes it off for owner personal use; walls erected to divide the new space and doors opened between spaces as tenant requires. There is some flexibility re: placement of walls; possible inclusion of all or some gym equipment in the rental. Equipment is not for sale unless tenant is leasing space. All utilities and operating expenses included in the rent – fully Gross Lease! Escalations of $50/mo/year.Excellent location close to 417, Riverside Drive,Bank Street, and Billings Bridge shopping plaza. Building is home to professional tenants such as law offices, mental wellness practitioners, not-for-profit, technology, etc. Video walk through is available upon request. (id:62650)

Read More
Basic Details
  • Property Type: Commercial Sale
  • Listing Type: For Sale
  • Listing ID: X12790932
  • Price: $1,700
  • Square Footage: 620 Sqft
  • Status: Active
  • Property Sub Type: Office
  • Office Key: 207956
Features & Appliances
Features
  • Heating System: Baseboard heaters
  • Cooling System: Fully air conditioned
  • Parking: Underground
Address Map
  • Location: CA, Ontario, Ottawa, K1H7Y3
  • Street: Bank
  • Street Number: 1376
  • Street Suffix: Street
  • Longitude: W76° 19' 37.2''
  • Latitude: N45° 23' 4.8''
Additional Information
  • Water Source:
  • Lot Features:
  • Lot Size Dimensions: 142 x 70 FT
Powered by REALTOR.ca
Listing updated: 2026-04-17 15:09:43
List Your Property
Mortgage Calculator
Get Pre-Approved
$
$
%
%
years
Monthly Payment (Est.) $
Listing Information
  • List Agent Key: 1974406
  • List Office Key: 207956
  • Modification Timestamp: 2026-02-16T03:35:37Z
  • Originating System Name: Ottawa Real Estate Board
  • Status Change Timestamp: 2026-02-16T03:24:17Z
Powered by REALTOR.ca
Listing updated: 2026-04-17 15:09:44
REALTOR®, REALTORS®, and the REALTOR® logo are certification marks that are owned by REALTOR® Canada Inc. and licensed exclusively to The Canadian Real Estate Association (CREA). These certification marks identify real estate professionals who are members of CREA and who must abide by CREA’s By‐Laws, Rules, and the REALTOR® Code. The MLS® trademark and the MLS® logo are owned by CREA and identify the quality of services provided by real estate professionals who are members of CREA.

The information contained on this site is based in whole or in part on information that is provided by members of The Canadian Real Estate Association, who are responsible for its accuracy. CREA reproduces and distributes this information as a service for its members and assumes no responsibility for its accuracy.

Website is operated by a brokerage or salesperson who is a member of The Canadian Real Estate Association.

The listing content on this website is protected by copyright and other laws, and is intended solely for the private, non‐commercial use by individuals. Any other reproduction, distribution or use of the content, in whole or in part, is specifically forbidden. The prohibited uses include commercial use, “screen scraping”, “database scraping”, and any other activity intended to collect, store, reorganize or manipulate data on the pages produced by or displayed on this website.

By continuing to use this website and its services, you agree to these

These forms are provided to ComFree’s Unrepresented Sellers as a part of their Mere Posting ComFree Listing Contract.

I acknowledge I can only access these forms as a ComFree customer under contract.

These forms are provided to ComFree’s Unrepresented Sellers as a part of their Mere Posting ComFree Listing Contract and in partnership with Zubic Law.

I acknowledge I can only access these forms as a ComFree customer under contract.

These forms are provided to ComFree’s Unrepresented Sellers as a part of their Mere Posting ComFree Listing Contract and in partnership with Zubic Law.

I acknowledge I can only access these forms as a ComFree customer under contract.

How It Works

1. Purchase Your Package

2. We Ship Your ‘For Sale’ Sign

3. Book Your VR Tour

4. Complete Listing Input Forms

5. We Make Your Listing Live

6. Get Support 7 Days a Week

7. iSOLD!