Share
$3,000
Newfoundland & Labrador,St. John's
For Rent Active
42 O'Leary Avenue, St. John's, Newfoundland & Labrador A1B2C7
  • 1,458 Sqft
Basic Details
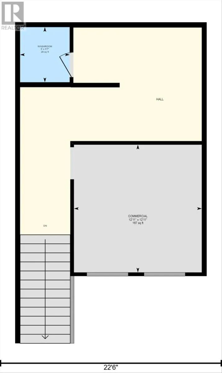
Description

Position your business in one of St. John’s most convenient commercial corridors, just minutes from the Avalon Mall, Kelsey Drive, and Kenmount Road. This approximately 1,460 square foot unit offers a functional blend of warehouse and office space, ideal for light commercial operations seeking accessibility and flexibility. The space features an overhead loading door for easy deliveries, open warehouse area

for storage or light operations, and a finished office component suitable for administration or client-facing work. The layout supports businesses with primarily daytime operations looking for a clean, professional environment. Heat, light and business tax are included in the monthly rent, offering predictable operating costs. The building is home to a mix of established tenants, creating a stable and well-managed commercial setting. Well suited for office + storage users, light distribution, wellness-related businesses, or trades requiring secure storage with administrative space. (id:62650)

Read More
Basic Details
  • Property Type: Commercial Lease
  • Listing Type: For Rent
  • Listing ID: 1294543
  • Price: $3,000
  • Square Footage: 1,458 Sqft
  • Status: Active
  • Property Sub Type: Office
  • Office Key: 280379
Features & Appliances
Features
  • Heating System: Forced air
Address Map
  • Location: CA, Newfoundland & Labrador, St. John's, A1B2C7
  • Street: O'Leary
  • Street Number: 42
  • Street Suffix: Avenue
  • Longitude: W53° 14' 17.1''
  • Latitude: N47° 33' 38.7''
Additional Information
  • Business Type: Industrial,Other,Service
  • Stories: 1.5
Powered by REALTOR.ca
Listing updated: 2026-05-15 12:19:17
List Your Property
Listing Information
  • List Agent Key: 1768730
  • List Office Key: 280379
  • Modification Timestamp: 2026-02-18T13:05:31Z
  • Originating System Name: Newfoundland & Labrador Association of REALTORS®
  • Status Change Timestamp: 2026-02-18T12:52:32Z
Powered by REALTOR.ca
Listing updated: 2026-05-15 12:19:17
REALTOR®, REALTORS®, and the REALTOR® logo are certification marks that are owned by REALTOR® Canada Inc. and licensed exclusively to The Canadian Real Estate Association (CREA). These certification marks identify real estate professionals who are members of CREA and who must abide by CREA’s By‐Laws, Rules, and the REALTOR® Code. The MLS® trademark and the MLS® logo are owned by CREA and identify the quality of services provided by real estate professionals who are members of CREA.

The information contained on this site is based in whole or in part on information that is provided by members of The Canadian Real Estate Association, who are responsible for its accuracy. CREA reproduces and distributes this information as a service for its members and assumes no responsibility for its accuracy.

Website is operated by a brokerage or salesperson who is a member of The Canadian Real Estate Association.

The listing content on this website is protected by copyright and other laws, and is intended solely for the private, non‐commercial use by individuals. Any other reproduction, distribution or use of the content, in whole or in part, is specifically forbidden. The prohibited uses include commercial use, “screen scraping”, “database scraping”, and any other activity intended to collect, store, reorganize or manipulate data on the pages produced by or displayed on this website.

By continuing to use this website and its services, you agree to these

These forms are provided to ComFree’s Unrepresented Sellers as a part of their Mere Posting ComFree Listing Contract.

I acknowledge I can only access these forms as a ComFree customer under contract.

These forms are provided to ComFree’s Unrepresented Sellers as a part of their Mere Posting ComFree Listing Contract and in partnership with Zubic Law.

I acknowledge I can only access these forms as a ComFree customer under contract.

These forms are provided to ComFree’s Unrepresented Sellers as a part of their Mere Posting ComFree Listing Contract and in partnership with Zubic Law.

I acknowledge I can only access these forms as a ComFree customer under contract.

How It Works

1. Purchase Your Package

2. We Ship Your ‘For Sale’ Sign

3. Book Your VR Tour

4. Complete Listing Input Forms

5. We Make Your Listing Live

6. Get Support 7 Days a Week

7. iSOLD!