Share
$569
Ontario,Peterborough (Town Ward 3)
For Sale Active
LOWER - 114 SIMCOE STREET, Peterborough (Town Ward 3), Ontario K9H2H4
  • 391 Sqft
Contact Seller
Basic Details
Description

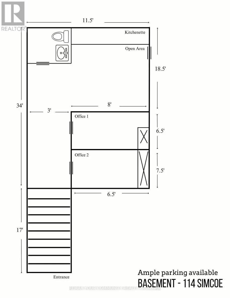
Prime retail space located in the heart of downtown Peterborough. Almost 400 Sqft available. Parking available. Directly across from Peterborough Square mall, Galaxy cinema, and Millennium waterfront Park. Do not miss out on this fantastic opportunity to be located in a central location, with high vibrancy and conveniently very walkable! (id:62650)

Basic Details
  • Property Type: Commercial Sale
  • Listing Type: For Sale
  • Listing ID: X12803834
  • Price: $569
  • Square Footage: 391 Sqft
  • Status: Active
  • Property Sub Type: Office
  • Office Key: 102887
Features & Appliances
Features
  • Heating System: Forced air, Natural gas
  • Cooling System: Fully air conditioned
Address Map
  • Location: CA, Ontario, Peterborough (Town Ward 3), K9H2H4
  • Street: Simcoe
  • Street Number: 114
  • Street Suffix: Street
  • Longitude: W79° 40' 55.7''
  • Latitude: N44° 18' 17.6''
Additional Information
  • Water Source:
  • Business Type: Other
  • Lot Size Dimensions: 79.53 x 67.82 FT
Financial
  • Tax Annual Amount: 426.15
Powered by REALTOR.ca
Listing updated: 2026-04-27 02:05:21
List Your Property
Mortgage Calculator
Get Pre-Approved
$
$
%
%
years
Monthly Payment (Est.) $
Listing Information
  • List Agent Key: 1970622
  • List Office Key: 102887
  • Modification Timestamp: 2026-03-11T21:50:51Z
  • Originating System Name: Toronto Regional Real Estate Board
  • Status Change Timestamp: 2026-03-11T21:40:35Z
Powered by REALTOR.ca
Listing updated: 2026-04-27 02:05:21
REALTOR®, REALTORS®, and the REALTOR® logo are certification marks that are owned by REALTOR® Canada Inc. and licensed exclusively to The Canadian Real Estate Association (CREA). These certification marks identify real estate professionals who are members of CREA and who must abide by CREA’s By‐Laws, Rules, and the REALTOR® Code. The MLS® trademark and the MLS® logo are owned by CREA and identify the quality of services provided by real estate professionals who are members of CREA.

The information contained on this site is based in whole or in part on information that is provided by members of The Canadian Real Estate Association, who are responsible for its accuracy. CREA reproduces and distributes this information as a service for its members and assumes no responsibility for its accuracy.

Website is operated by a brokerage or salesperson who is a member of The Canadian Real Estate Association.

The listing content on this website is protected by copyright and other laws, and is intended solely for the private, non‐commercial use by individuals. Any other reproduction, distribution or use of the content, in whole or in part, is specifically forbidden. The prohibited uses include commercial use, “screen scraping”, “database scraping”, and any other activity intended to collect, store, reorganize or manipulate data on the pages produced by or displayed on this website.

By continuing to use this website and its services, you agree to these

These forms are provided to ComFree’s Unrepresented Sellers as a part of their Mere Posting ComFree Listing Contract.

I acknowledge I can only access these forms as a ComFree customer under contract.

These forms are provided to ComFree’s Unrepresented Sellers as a part of their Mere Posting ComFree Listing Contract and in partnership with Zubic Law.

I acknowledge I can only access these forms as a ComFree customer under contract.

These forms are provided to ComFree’s Unrepresented Sellers as a part of their Mere Posting ComFree Listing Contract and in partnership with Zubic Law.

I acknowledge I can only access these forms as a ComFree customer under contract.

How It Works

1. Purchase Your Package

2. We Ship Your ‘For Sale’ Sign

3. Book Your VR Tour

4. Complete Listing Input Forms

5. We Make Your Listing Live

6. Get Support 7 Days a Week

7. iSOLD!