Share
$479,000
Nova Scotia,Berwick
For Sale Active
18 Gala Drive, Berwick, Nova Scotia B0P1E0
  • 3
  • 2
  • 1,459 Sqft
Contact Seller
Basic Details
Description

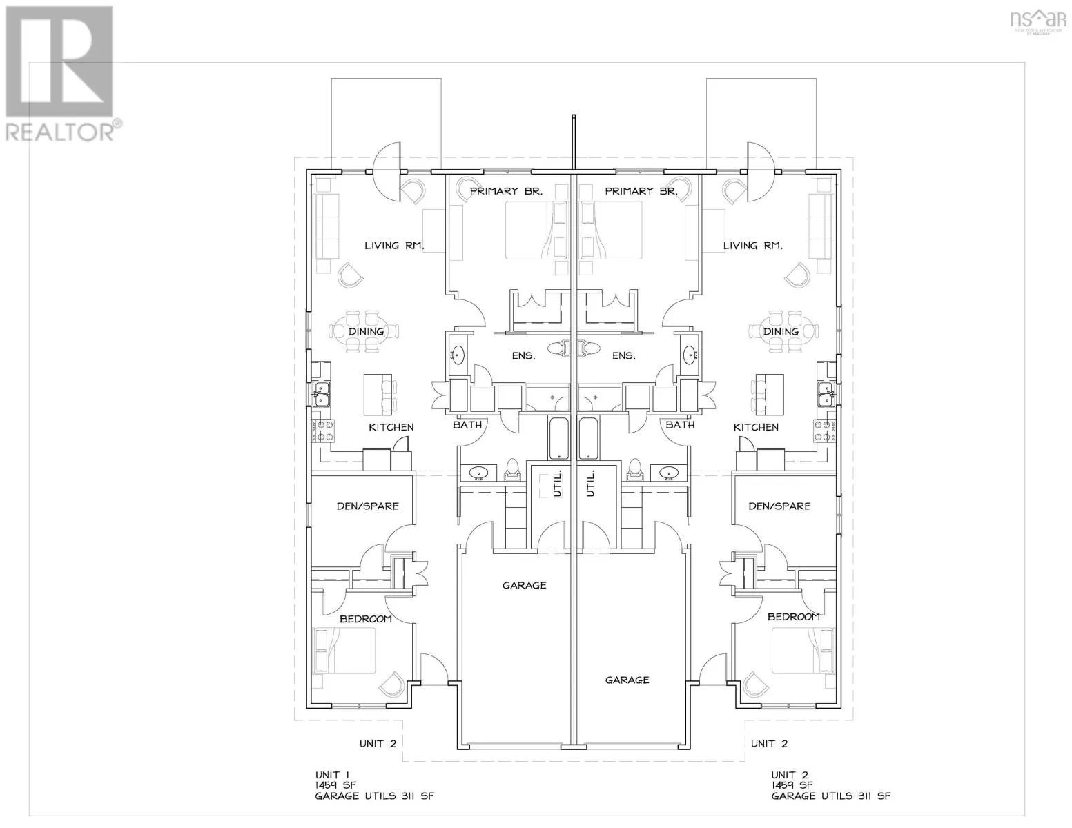
Welcome to this modern 3-bedroom, 2-bath side-by-side semi-detached home in the heart of vibrant Berwick. Designed for efficient, low-maintenance living, this newly constructed one-level home offers a functional layout and contemporary finishes throughout. The open-concept kitchen, living, and dining area is ideal for both everyday living and entertaining. The interior will feature upgraded kitchens and bathrooms, complemented by high-end, energy-efficient

Samsung appliances, whisper-quiet bathroom fans, and a large, high-quality heat pump for year-round comfort. The home has been constructed using the ZIP System building envelope, enhancing air sealing, moisture control, and overall energy efficiency. The exterior will be further enhanced with decorative stone accents, adding curb appeal and architectural interest. Additional bedrooms and a full bath provide flexible space for family, guests, or a home office. Step outside to enjoy the deck, with a privacy fence for added comfort. All of this is within walking distance of Berwicks shops, restaurants, community amenities, and popular recreation centre. Estimated completion: April. (id:62650)

Read More
Basic Details
  • Property Type: Residential
  • Listing Type: For Sale
  • Listing ID: 202601271
  • Price: $479,000
  • Bedrooms: 3
  • Bathrooms: 2
  • Square Footage: 1,459 Sqft
  • Status: Active
  • Property Attached Yn: 1
  • Property Sub Type: Single Family
  • Office Key: 52614
Features & Appliances
Features
  • Cooling System: Heat Pump
  • Basement: None
  • Parking: Garage, Attached Garage, Paved Yard
  • Exterior Features: Stone, Vinyl
  • Flooring: Laminate
  • Sewer: Municipal sewage system
Address Map
  • Location: CA, Nova Scotia, Berwick, B0P1E0
  • Street: Gala
  • Street Number: 18
  • Street Suffix: Drive
  • Longitude: W65° 15' 24.6''
  • Latitude: N45° 2' 59.4''
Additional Information
  • Water Source:
  • Accessibility Features:
  • Community Features:
  • Foundation Details:
  • Lot Size Dimensions: 0.2303
  • Stories: 1.0
Powered by REALTOR.ca
Listing updated: 2026-05-05 17:09:19
List Your Property
Mortgage Calculator
Get Pre-Approved
$
$
%
%
years
Monthly Payment (Est.) $
Listing Information
  • List Agent Key: 2027484
  • List Office Key: 52614
  • Modification Timestamp: 2026-05-05T13:50:04Z
  • Originating System Name: Nova Scotia Association of REALTORS®
  • Status Change Timestamp: 2026-05-05T13:41:42Z
Powered by REALTOR.ca
Listing updated: 2026-05-05 17:09:20
REALTOR®, REALTORS®, and the REALTOR® logo are certification marks that are owned by REALTOR® Canada Inc. and licensed exclusively to The Canadian Real Estate Association (CREA). These certification marks identify real estate professionals who are members of CREA and who must abide by CREA’s By‐Laws, Rules, and the REALTOR® Code. The MLS® trademark and the MLS® logo are owned by CREA and identify the quality of services provided by real estate professionals who are members of CREA.

The information contained on this site is based in whole or in part on information that is provided by members of The Canadian Real Estate Association, who are responsible for its accuracy. CREA reproduces and distributes this information as a service for its members and assumes no responsibility for its accuracy.

Website is operated by a brokerage or salesperson who is a member of The Canadian Real Estate Association.

The listing content on this website is protected by copyright and other laws, and is intended solely for the private, non‐commercial use by individuals. Any other reproduction, distribution or use of the content, in whole or in part, is specifically forbidden. The prohibited uses include commercial use, “screen scraping”, “database scraping”, and any other activity intended to collect, store, reorganize or manipulate data on the pages produced by or displayed on this website.

By continuing to use this website and its services, you agree to these

These forms are provided to ComFree’s Unrepresented Sellers as a part of their Mere Posting ComFree Listing Contract.

I acknowledge I can only access these forms as a ComFree customer under contract.

These forms are provided to ComFree’s Unrepresented Sellers as a part of their Mere Posting ComFree Listing Contract and in partnership with Zubic Law.

I acknowledge I can only access these forms as a ComFree customer under contract.

These forms are provided to ComFree’s Unrepresented Sellers as a part of their Mere Posting ComFree Listing Contract and in partnership with Zubic Law.

I acknowledge I can only access these forms as a ComFree customer under contract.

How It Works

1. Purchase Your Package

2. We Ship Your ‘For Sale’ Sign

3. Book Your VR Tour

4. Complete Listing Input Forms

5. We Make Your Listing Live

6. Get Support 7 Days a Week

7. iSOLD!