Share
$159,000
British Columbia,Fairmont Hot Springs
For Sale Active
5052 RIVERVIEW Road Unit# 2006B, Fairmont Hot Springs, British Columbia V0B1L1
  • 1
  • 1
  • 523 Sqft
Contact Seller
Basic Details
Description

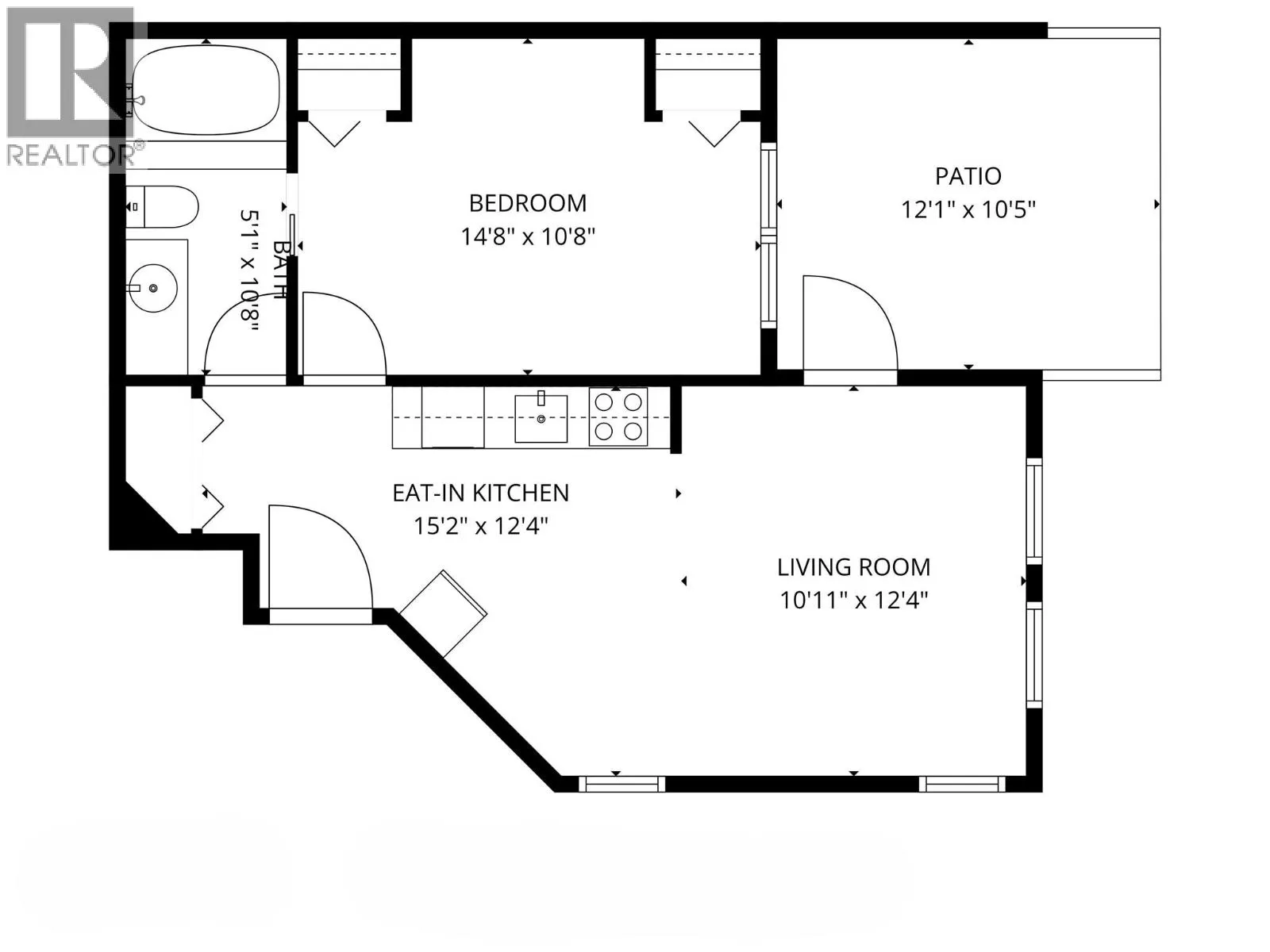
Welcome to 2006B at Mountain View Villas located in beautiful Fairmont Hot Springs. This recently painted 1 bedroom unit is being sold fully furnished and outfitted, quick possession is available, you can enjoy the spring and summer in the Columbia Valley. NO STAIRS to contend with, this is a ground floor unit with parking just steps away from the entrance.

Enjoy the lovely mountain views from your deck, relax in the large soaker tub, and you will love the king sized bed! Close to all the amenities of Fairmont, including the hot pools, water park, ski hill and your choice of 3 golf courses. This affordable unit would make a great full time home, with mail delivery to the building, or make it your vacation getaway with rental opportunities available. (id:62650)

Read More
Basic Details
  • Property Type: Residential
  • Listing Type: For Sale
  • Listing ID: 10377223
  • Price: $159,000
  • Bedrooms: 1
  • Bathrooms: 1
  • View: Mountain view
  • Square Footage: 523 Sqft
  • Year Built: 1996
  • Status: Active
  • Property Attached Yn: 1
  • Property Sub Type: Single Family
  • Roof:
  • Office Key: 94597
Features & Appliances
Features
  • Heating System: Baseboard heaters
  • Cooling System: Wall unit
  • Parking: Additional Parking
  • Exterior Features: Stucco
  • Flooring: Carpeted, Mixed Flooring
  • Sewer: Municipal sewage system
Address Map
  • Location: CA, British Columbia, Fairmont Hot Springs, V0B1L1
  • Street: RIVERVIEW
  • Street Number: 5052
  • Street Suffix: Road
  • Longitude: W116° 8' 18.7''
  • Latitude: N50° 19' 52.7''
Additional Information
  • Water Source:
  • Community Features:
  • Stories: 1.0
Financial
  • Association Fee: 344.88
  • Association Fee Frequency: Monthly
  • Association Fee Includes:
  • Tax Annual Amount: 779.1
Powered by REALTOR.ca
Listing updated: 2026-04-15 12:05:15
List Your Property
Mortgage Calculator
Get Pre-Approved
$
$
%
%
years
Monthly Payment (Est.) $
Listing Information
  • List Agent Key: 2065504
  • List Office Key: 94597
  • Modification Timestamp: 2026-04-08T15:30:10Z
  • Originating System Name: Association of Interior REALTORS®
  • Status Change Timestamp: 2026-04-08T15:20:43Z
Powered by REALTOR.ca
Listing updated: 2026-04-15 12:05:15
REALTOR®, REALTORS®, and the REALTOR® logo are certification marks that are owned by REALTOR® Canada Inc. and licensed exclusively to The Canadian Real Estate Association (CREA). These certification marks identify real estate professionals who are members of CREA and who must abide by CREA’s By‐Laws, Rules, and the REALTOR® Code. The MLS® trademark and the MLS® logo are owned by CREA and identify the quality of services provided by real estate professionals who are members of CREA.

The information contained on this site is based in whole or in part on information that is provided by members of The Canadian Real Estate Association, who are responsible for its accuracy. CREA reproduces and distributes this information as a service for its members and assumes no responsibility for its accuracy.

Website is operated by a brokerage or salesperson who is a member of The Canadian Real Estate Association.

The listing content on this website is protected by copyright and other laws, and is intended solely for the private, non‐commercial use by individuals. Any other reproduction, distribution or use of the content, in whole or in part, is specifically forbidden. The prohibited uses include commercial use, “screen scraping”, “database scraping”, and any other activity intended to collect, store, reorganize or manipulate data on the pages produced by or displayed on this website.

By continuing to use this website and its services, you agree to these

These forms are provided to ComFree’s Unrepresented Sellers as a part of their Mere Posting ComFree Listing Contract.

I acknowledge I can only access these forms as a ComFree customer under contract.

These forms are provided to ComFree’s Unrepresented Sellers as a part of their Mere Posting ComFree Listing Contract and in partnership with Zubic Law.

I acknowledge I can only access these forms as a ComFree customer under contract.

These forms are provided to ComFree’s Unrepresented Sellers as a part of their Mere Posting ComFree Listing Contract and in partnership with Zubic Law.

I acknowledge I can only access these forms as a ComFree customer under contract.

How It Works

1. Purchase Your Package

2. We Ship Your ‘For Sale’ Sign

3. Book Your VR Tour

4. Complete Listing Input Forms

5. We Make Your Listing Live

6. Get Support 7 Days a Week

7. iSOLD!