Share
$1,130,000
Ontario,Toronto (Rockcliffe-Smythe)
For Sale Active
120 EDINBOROUGH COURT, Toronto (Rockcliffe-Smythe), Ontario M6N2E8
  • 4
  • 3
  • 1100 - 1500Square Feet
Contact Seller
Basic Details
Description

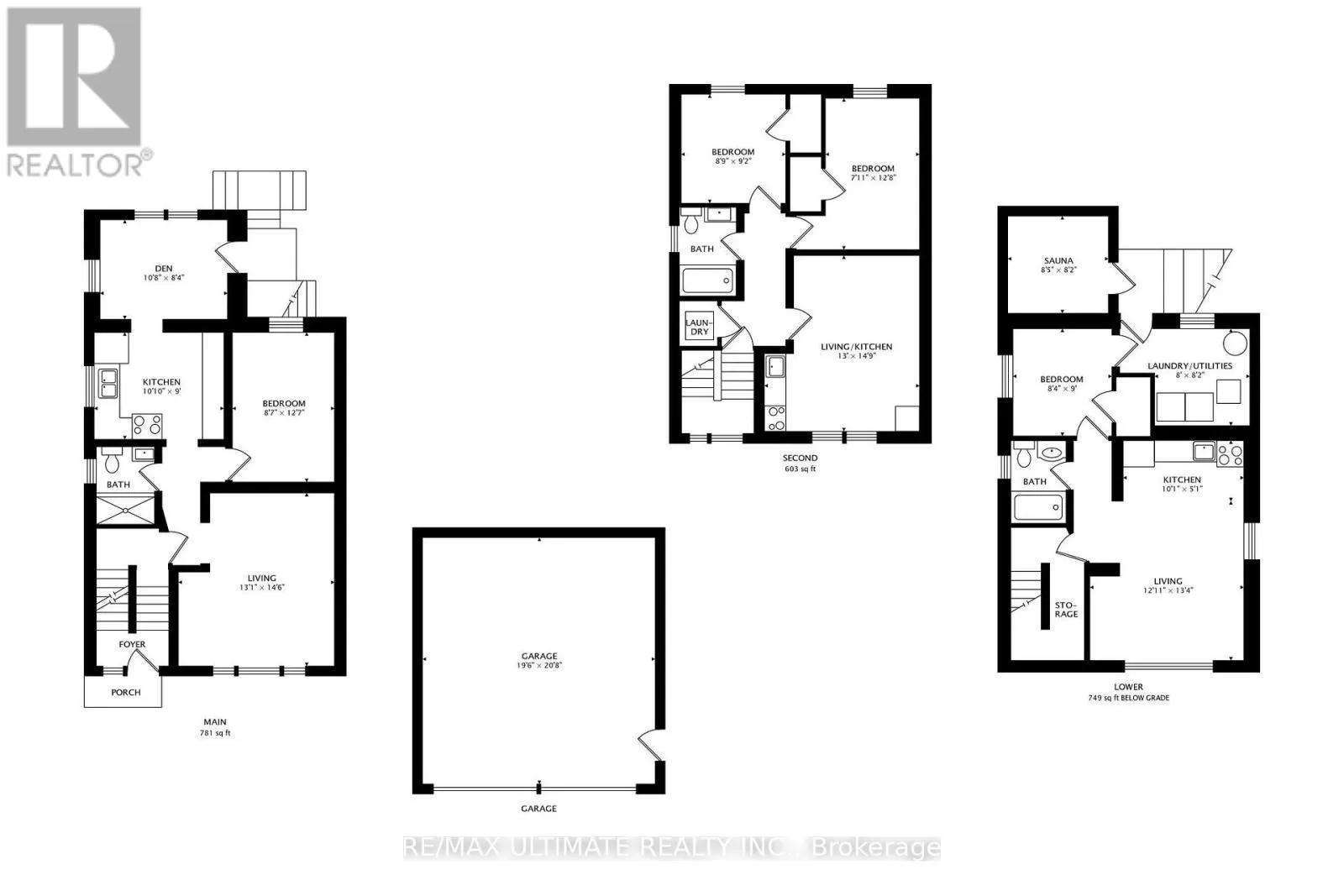
Incredible Investment Opportunity! Detached Home on a Huge 50 x 100 Ft Lot in desirable Smythe Park, backing on to a tranquil ravine and situated on a quiet, private, family-friendly court. Offering over 2,000 sq. ft. of Total Living Space. Currently configured as three spacious, self-contained units: 2nd Floor: 2-Bedroom with private in-suite laundry; Main Floor: 1-Bedroom + Den; Lower

Level: 1-Bedroom unit. All units feature upgraded Kitchens and Bathrooms, have been freshly painted, and offer large sun-filled windows with excellent natural light. The main floor includes a rear entrance providing convenient access to the backyard, parking, and shared lower-level laundry (accessed via separate rear entrance). Rare Bonus Feature: A private Sauna, accessed through a separate rear entrance – perfect for wellness enthusiasts seeking comfort, relaxation, and year-round enjoyment. All three units are currently vacant, presenting an opportunity for first-time buyers to live-in one unit and rent the others or perfect for investors to rent all three units and set market rents. Easily converted to a single-family home with basement apartment with front and rear entrances. Extra-large private driveway accommodates up to 6 vehicles + rare oversized 400 sq. ft. double car garage (spray foam insulated) with potential for a future garden suite (buyer to verify). Prime location close to: Lambton Golf & Country Club, Humber River & Trails, Lambton Arena, Smythe Park, Loblaws, Summerhill Market, Starbucks, Walmart Supercentre, Stock Yards Village. TTC At Your Door – 1 Bus to Runnymede Subway Station, Bloor West & the Junction. Easy access to highways and all major Conveniences. ***Please note some photos feature virtual staging.*** (id:62650)

Read More
Basic Details
  • Property Type: Residential
  • Listing Type: For Sale
  • Listing ID: W12829060
  • Price: $1,130,000
  • Bedrooms: 4
  • Bathrooms: 3
  • Square Footage: 1100 - 1500 Sqft
  • Status: Active
  • Property Sub Type: Single Family
  • Office Key: 267769
Features & Appliances
Features
  • Heating System: Forced air, Natural gas
  • Cooling System: Central air conditioning
  • Basement: Finished, Separate entrance, N/A
  • Parking: Detached Garage, Garage, Tandem
  • Exterior Features: Brick
  • Flooring: Laminate, Vinyl, Hardwood, Concrete
  • Sewer: Sanitary sewer
Address Map
  • Location: CA, Ontario, Toronto (Rockcliffe-Smythe), M6N2E8
  • Street: Edinborough
  • Street Number: 120
  • Street Suffix: Court
  • Longitude: W80° 29' 53.8''
  • Latitude: N43° 40' 22.8''
Additional Information
  • Water Source:
  • Foundation Details:
  • Lot Features:
  • Lot Size Dimensions: 50.1 x 100.1 FT
  • Stories: 2.0
Financial
  • Tax Annual Amount: 5203.3
Powered by REALTOR.ca
Listing updated: 2026-04-20 11:08:42
List Your Property
Mortgage Calculator
Get Pre-Approved
$
$
%
%
years
Monthly Payment (Est.) $
Listing Information
  • List Agent Key: 2038995
  • List Office Key: 267769
  • Modification Timestamp: 2026-04-20T12:20:31Z
  • Originating System Name: Toronto Regional Real Estate Board
  • Status Change Timestamp: 2026-04-20T12:10:57Z
Powered by REALTOR.ca
Listing updated: 2026-04-20 11:08:43
REALTOR®, REALTORS®, and the REALTOR® logo are certification marks that are owned by REALTOR® Canada Inc. and licensed exclusively to The Canadian Real Estate Association (CREA). These certification marks identify real estate professionals who are members of CREA and who must abide by CREA’s By‐Laws, Rules, and the REALTOR® Code. The MLS® trademark and the MLS® logo are owned by CREA and identify the quality of services provided by real estate professionals who are members of CREA.

The information contained on this site is based in whole or in part on information that is provided by members of The Canadian Real Estate Association, who are responsible for its accuracy. CREA reproduces and distributes this information as a service for its members and assumes no responsibility for its accuracy.

Website is operated by a brokerage or salesperson who is a member of The Canadian Real Estate Association.

The listing content on this website is protected by copyright and other laws, and is intended solely for the private, non‐commercial use by individuals. Any other reproduction, distribution or use of the content, in whole or in part, is specifically forbidden. The prohibited uses include commercial use, “screen scraping”, “database scraping”, and any other activity intended to collect, store, reorganize or manipulate data on the pages produced by or displayed on this website.

By continuing to use this website and its services, you agree to these

These forms are provided to ComFree’s Unrepresented Sellers as a part of their Mere Posting ComFree Listing Contract.

I acknowledge I can only access these forms as a ComFree customer under contract.

These forms are provided to ComFree’s Unrepresented Sellers as a part of their Mere Posting ComFree Listing Contract and in partnership with Zubic Law.

I acknowledge I can only access these forms as a ComFree customer under contract.

These forms are provided to ComFree’s Unrepresented Sellers as a part of their Mere Posting ComFree Listing Contract and in partnership with Zubic Law.

I acknowledge I can only access these forms as a ComFree customer under contract.

How It Works

1. Purchase Your Package

2. We Ship Your ‘For Sale’ Sign

3. Book Your VR Tour

4. Complete Listing Input Forms

5. We Make Your Listing Live

6. Get Support 7 Days a Week

7. iSOLD!