Share
$998,900
Ontario,Saugeen Shores
For Sale Active
72 OTTAWA AVENUE, Saugeen Shores, Ontario N0H2L0
  • 4
  • 3
  • 1500 - 2000Square Feet
Basic Details
Description

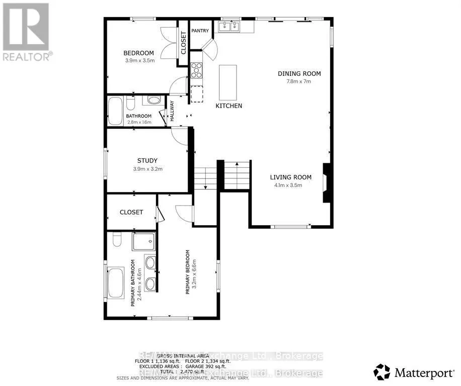
This craftsman-style farmhouse is move-in ready and loaded with upgrades throughout. Built in 2018, the home offers thoughtful design with a self-contained 1-bedroom apartment. It’s a perfect layout for a family, an income property or multigenerational living. The spacious house measures 1893 square feet above grade, and the basement is 1391 sq ft. The 50′ x 150′ property offers both

serenity and convenience, just a short walk to the shores of Lake Huron and backs onto a strip of land zoned EP (environmental protection). The ground level has an impressive foyer and mudroom with entry to the garage. The main floor has a fabulous kitchen with a large pantry and an island perfect for casual dining. The open-concept dining and living room features a vaulted ceiling, providing ample space for families who love to host and entertain. Beautiful white oak hardwood floors are throughout the main house. The large patio door leads to a covered deck for seasonal relaxation. There are two large bedrooms on the main floor, a 4-piece bathroom featuring a tiled tub. The primary suite is located on the second level for a luxurious retreat, featuring a vaulted ceiling, a walk-in closet and a 5-piece spa-like bathroom. The basement is divided into two sections: a separate one-bedroom apartment with kitchen/living room, in-suite laundry, and a private entrance from the garage; and the second section is designated for the main house, which has a laundry/utility room and gym/family room. The apartment has separate heating/cooling controls and ductwork. This beautiful home is located in a peaceful, well-established neighbourhood with all the amenities of town just minutes away. Explore the 3D tour and book an appointment to appreciate it in person. (id:59439)

Read More
Basic Details
  • Property Type: Residential
  • Listing Type: For Sale
  • Listing ID: X12836282
  • Price: $998,900
  • Bedrooms: 4
  • Bathrooms: 3
  • Square Footage: 1500 - 2000 Sqft
  • Status: Active
  • Property Sub Type: Single Family
  • Office Key: 81675
Features & Appliances
Features
  • Heating System: Forced air, Natural gas
  • Cooling System: Central air conditioning, Air exchanger
  • Basement: Finished, Full, Separate entrance, N/A, Apartment in basement
  • Fence: Partially fenced
  • Parking: Garage, Attached Garage
  • Exterior Features: Wood, Vinyl siding
  • Sewer: Sanitary sewer
  • Utilities: Electricity, Sewer, Cable
  • Fireplaces Total: 1
Address Map
  • Location: CA, Ontario, Saugeen Shores, N0H2L0
  • Street: Ottawa
  • Street Number: 72
  • Street Suffix: Avenue
  • Longitude: W82° 38' 40.1''
  • Latitude: N44° 30' 49.9''
Additional Information
  • Water Source:
  • Foundation Details:
  • Lot Features:
  • Lot Size Dimensions: 50 x 150 FT
Financial
  • Tax Annual Amount: 6159
Powered by REALTOR.ca
Listing updated: 2026-04-25 08:13:11
List Your Property
Mortgage Calculator
Get Pre-Approved
$
$
%
%
years
Monthly Payment (Est.) $
Listing Information
  • List Agent Key: 1456664
  • List Office Key: 81675
  • Modification Timestamp: 2026-03-15T11:51:16Z
  • Originating System Name: OnePoint Association of REALTORS®
  • Status Change Timestamp: 2026-03-15T11:39:10Z
Powered by REALTOR.ca
Listing updated: 2026-04-25 08:13:12
REALTOR®, REALTORS®, and the REALTOR® logo are certification marks that are owned by REALTOR® Canada Inc. and licensed exclusively to The Canadian Real Estate Association (CREA). These certification marks identify real estate professionals who are members of CREA and who must abide by CREA’s By‐Laws, Rules, and the REALTOR® Code. The MLS® trademark and the MLS® logo are owned by CREA and identify the quality of services provided by real estate professionals who are members of CREA.

The information contained on this site is based in whole or in part on information that is provided by members of The Canadian Real Estate Association, who are responsible for its accuracy. CREA reproduces and distributes this information as a service for its members and assumes no responsibility for its accuracy.

Website is operated by a brokerage or salesperson who is a member of The Canadian Real Estate Association.

The listing content on this website is protected by copyright and other laws, and is intended solely for the private, non‐commercial use by individuals. Any other reproduction, distribution or use of the content, in whole or in part, is specifically forbidden. The prohibited uses include commercial use, “screen scraping”, “database scraping”, and any other activity intended to collect, store, reorganize or manipulate data on the pages produced by or displayed on this website.

By continuing to use this website and its services, you agree to these

These forms are provided to ComFree’s Unrepresented Sellers as a part of their Mere Posting ComFree Listing Contract.

I acknowledge I can only access these forms as a ComFree customer under contract.

These forms are provided to ComFree’s Unrepresented Sellers as a part of their Mere Posting ComFree Listing Contract and in partnership with Zubic Law.

I acknowledge I can only access these forms as a ComFree customer under contract.

These forms are provided to ComFree’s Unrepresented Sellers as a part of their Mere Posting ComFree Listing Contract and in partnership with Zubic Law.

I acknowledge I can only access these forms as a ComFree customer under contract.

How It Works

1. Purchase Your Package

2. We Ship Your ‘For Sale’ Sign

3. Book Your VR Tour

4. Complete Listing Input Forms

5. We Make Your Listing Live

6. Get Support 7 Days a Week

7. iSOLD!