Share
$1,059,000
British Columbia,Saanich
For Sale Active
3933 Saanich Rd, Saanich, British Columbia V8X1Y7
  • 3
  • 2
  • 2,613 Sqft
Contact Seller
Basic Details
Description

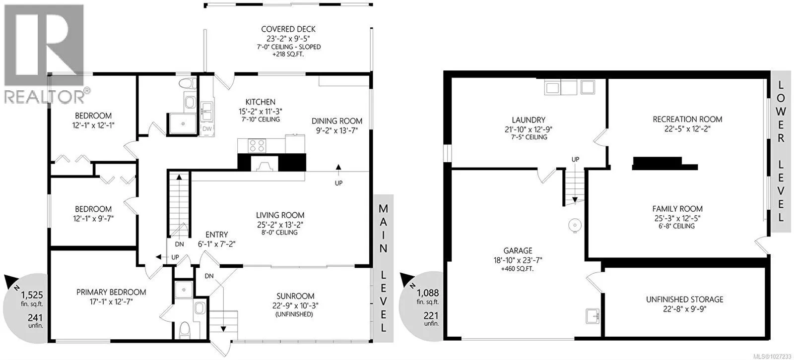
This new renovated home features a bright open kitchen with brand-new stainless appliances, sunken living room, enclosed sunroom. The main level offers three bedrooms and two bathrooms, including a rare 3-piece ensuite for this vintage. Enjoy seasonal views of Swan Lake Bird Sanctuary from living room and adjacent enclosed sunroom. Full-height, easily suite-able basement offers endless potential. Updates include thermal

vinyl windows and new laminate floors. Double garage, ample storage, and an 8,000+ sq. ft. lot with room for kids, pets, or gardens. Located close to Saanich Centre, Uptown Shopping Centre, and the Swan Lake walking loop, direct transit to UVic or downtown, this home combines character, comfort, and convenience in one of Saanich’s most desirable areas. (id:62650)

Read More
Basic Details
  • Property Type: Residential
  • Listing Type: For Sale
  • Listing ID: 1027233
  • Price: $1,059,000
  • Bedrooms: 3
  • Bathrooms: 2
  • View: Lake view
  • Square Footage: 2,613 Sqft
  • Year Built: 1962
  • Status: Active
  • Property Sub Type: Single Family
  • Office Key: 53064
Features & Appliances
Features
  • Heating System: Electric, Baseboard heaters
  • Cooling System: None
  • Fireplaces Total: 1
Address Map
  • Location: CA, British Columbia, Saanich, V8X1Y7
  • Street: Saanich
  • Street Number: 3933
  • Street Suffix: Road
  • Longitude: W124° 37' 55.9''
  • Latitude: N48° 27' 56.7''
  • Zoning: Residential
Additional Information
  • Lot Size Dimensions: 8090
Financial
  • Association Fee Frequency: Monthly
  • Tax Annual Amount: 4681.53
Powered by REALTOR.ca
Listing updated: 2026-04-24 15:40:12
List Your Property
Mortgage Calculator
Get Pre-Approved
$
$
%
%
years
Monthly Payment (Est.) $
Listing Information
  • List Agent Key: 1923896
  • List Office Key: 53064
  • Modification Timestamp: 2026-04-16T00:51:02Z
  • Originating System Name: Victoria Real Estate Board
  • Status Change Timestamp: 2026-04-16T00:41:45Z
Powered by REALTOR.ca
Listing updated: 2026-04-24 15:40:13
REALTOR®, REALTORS®, and the REALTOR® logo are certification marks that are owned by REALTOR® Canada Inc. and licensed exclusively to The Canadian Real Estate Association (CREA). These certification marks identify real estate professionals who are members of CREA and who must abide by CREA’s By‐Laws, Rules, and the REALTOR® Code. The MLS® trademark and the MLS® logo are owned by CREA and identify the quality of services provided by real estate professionals who are members of CREA.

The information contained on this site is based in whole or in part on information that is provided by members of The Canadian Real Estate Association, who are responsible for its accuracy. CREA reproduces and distributes this information as a service for its members and assumes no responsibility for its accuracy.

Website is operated by a brokerage or salesperson who is a member of The Canadian Real Estate Association.

The listing content on this website is protected by copyright and other laws, and is intended solely for the private, non‐commercial use by individuals. Any other reproduction, distribution or use of the content, in whole or in part, is specifically forbidden. The prohibited uses include commercial use, “screen scraping”, “database scraping”, and any other activity intended to collect, store, reorganize or manipulate data on the pages produced by or displayed on this website.

By continuing to use this website and its services, you agree to these

These forms are provided to ComFree’s Unrepresented Sellers as a part of their Mere Posting ComFree Listing Contract.

I acknowledge I can only access these forms as a ComFree customer under contract.

These forms are provided to ComFree’s Unrepresented Sellers as a part of their Mere Posting ComFree Listing Contract and in partnership with Zubic Law.

I acknowledge I can only access these forms as a ComFree customer under contract.

These forms are provided to ComFree’s Unrepresented Sellers as a part of their Mere Posting ComFree Listing Contract and in partnership with Zubic Law.

I acknowledge I can only access these forms as a ComFree customer under contract.

How It Works

1. Purchase Your Package

2. We Ship Your ‘For Sale’ Sign

3. Book Your VR Tour

4. Complete Listing Input Forms

5. We Make Your Listing Live

6. Get Support 7 Days a Week

7. iSOLD!