Share
$12
Ontario,London East (East F)
For Rent Active
226 DUNDAS STREET, London East (East F), Ontario N6A1H3
  • 2,000 Sqft
Contact Seller
Basic Details
Description

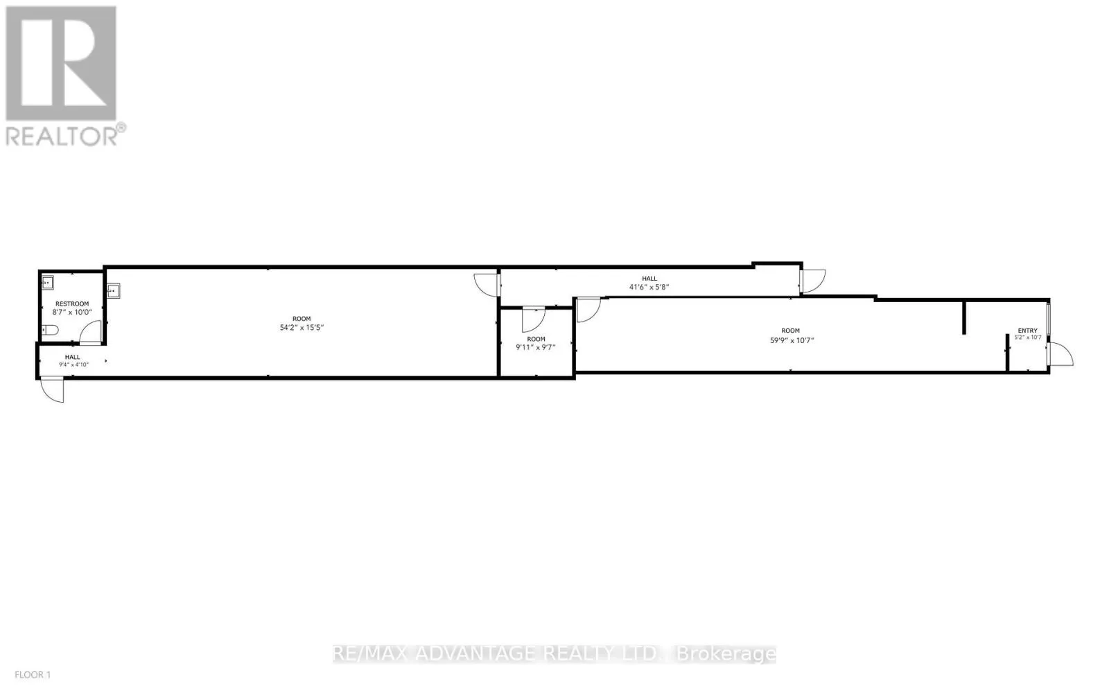
2000sf main floor retail/office/studio/spa/gym in a completely renovated 3 storey with historically restored frontage located in the heart of London, on Dundas, east of Clarence, west of Wellington. Excellent visibility, making it an ideal property for business seeking high traffic area. DA 1 Zoning offers a wide range of uses including, but not limited to; Studios, retail, restaurants, bake shops,

clinics, commercial recreation, medical/dental, taverns and much more. Competitive rate at $12/sf net and Additional rents at $7.50/sf plus HST plus utilities. (id:62650)

Read More
Basic Details
  • Property Type: Commercial Lease
  • Listing Type: For Rent
  • Listing ID: X12860958
  • Price: $12
  • Square Footage: 2,000 Sqft
  • Status: Active
  • Property Sub Type: Retail
  • Office Key: 47250
Features & Appliances
Features
  • Heating System: Other
  • Cooling System: Fully air conditioned
Address Map
  • Location: CA, Ontario, London East (East F), N6A1H3
  • Street: Dundas
  • Street Number: 226
  • Street Suffix: Street
  • Longitude: W82° 45' 10.1''
  • Latitude: N42° 59' 4.2''
Additional Information
  • Water Source:
  • Lot Size Dimensions: 16.45 x 148 FT
Financial
  • Tax Annual Amount: 26000
Powered by REALTOR.ca
Listing updated: 2026-04-20 14:32:02
List Your Property
Listing Information
  • List Agent Key: 1387460
  • List Office Key: 47250
  • Modification Timestamp: 2026-03-09T15:30:30Z
  • Originating System Name: London and St. Thomas Association of REALTORS®
  • Status Change Timestamp: 2026-03-09T15:23:08Z
Powered by REALTOR.ca
Listing updated: 2026-04-20 14:32:03
REALTOR®, REALTORS®, and the REALTOR® logo are certification marks that are owned by REALTOR® Canada Inc. and licensed exclusively to The Canadian Real Estate Association (CREA). These certification marks identify real estate professionals who are members of CREA and who must abide by CREA’s By‐Laws, Rules, and the REALTOR® Code. The MLS® trademark and the MLS® logo are owned by CREA and identify the quality of services provided by real estate professionals who are members of CREA.

The information contained on this site is based in whole or in part on information that is provided by members of The Canadian Real Estate Association, who are responsible for its accuracy. CREA reproduces and distributes this information as a service for its members and assumes no responsibility for its accuracy.

Website is operated by a brokerage or salesperson who is a member of The Canadian Real Estate Association.

The listing content on this website is protected by copyright and other laws, and is intended solely for the private, non‐commercial use by individuals. Any other reproduction, distribution or use of the content, in whole or in part, is specifically forbidden. The prohibited uses include commercial use, “screen scraping”, “database scraping”, and any other activity intended to collect, store, reorganize or manipulate data on the pages produced by or displayed on this website.

By continuing to use this website and its services, you agree to these

These forms are provided to ComFree’s Unrepresented Sellers as a part of their Mere Posting ComFree Listing Contract.

I acknowledge I can only access these forms as a ComFree customer under contract.

These forms are provided to ComFree’s Unrepresented Sellers as a part of their Mere Posting ComFree Listing Contract and in partnership with Zubic Law.

I acknowledge I can only access these forms as a ComFree customer under contract.

These forms are provided to ComFree’s Unrepresented Sellers as a part of their Mere Posting ComFree Listing Contract and in partnership with Zubic Law.

I acknowledge I can only access these forms as a ComFree customer under contract.

How It Works

1. Purchase Your Package

2. We Ship Your ‘For Sale’ Sign

3. Book Your VR Tour

4. Complete Listing Input Forms

5. We Make Your Listing Live

6. Get Support 7 Days a Week

7. iSOLD!