Share
$949,000
Ontario,Seguin
For Sale Active
131 DOWNES ROAD, Seguin, Ontario P2A2W8
  • 3
  • 2
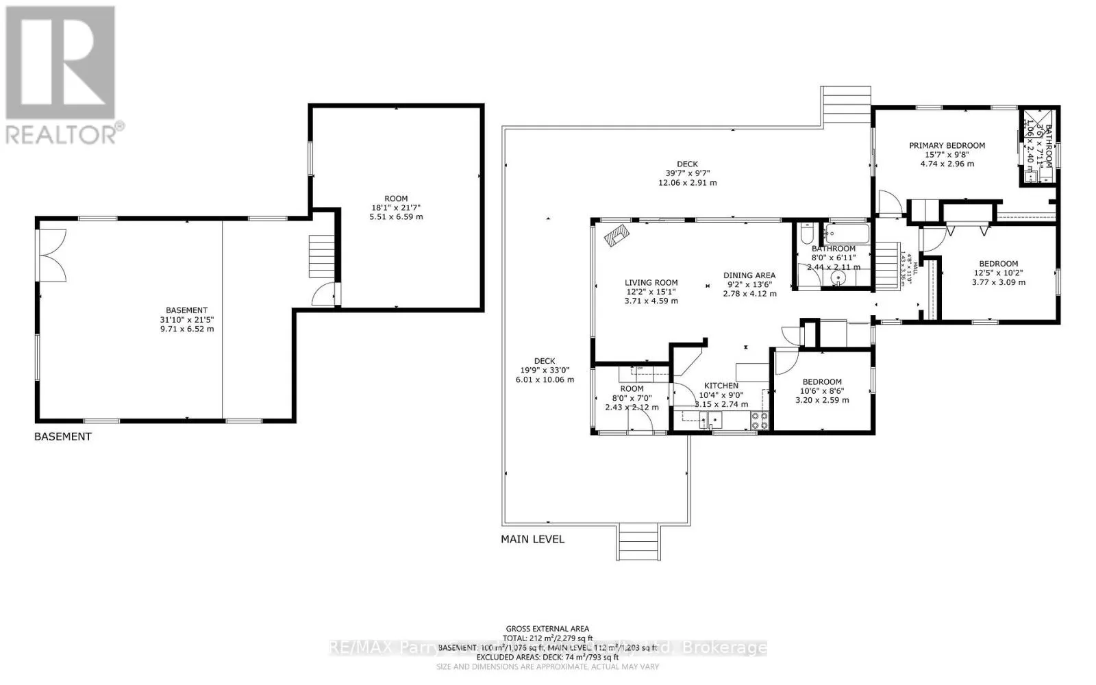
  • 1100 - 1500Square Feet
Basic Details
Description

DESIRABLE HORSESHOE LAKE! 4 SEASON WATERFRONT COTTAGE RETREAT! Nestled on 1.68 Acres of Privacy, Great swimming, boating (for miles), fishing, paddle boarding, kayaking, Conveniently located Just 10 mins south of Parry Sound, This Updated 3-bedroom, 2-bath cottage is being offered Turnkey! Desirable bright open plan, Wall of windows & walkouts to fabulous wrap around deck; made for relaxing & entertaining,

Light & bright drywalled interior, Updated kitchen & baths, Warm hardwood flooring, Walk out lower level is unfinished & ideal for future living space, Access door for great storage, snowmobiles or atv’s, Family & guests will delight in the LAKESIDE BUNKIE featuring sauna, shower & composting toilet, Excellent area for hiking, biking, ATVing, snowmobiling, Short drive to Horseshoe Pines Marina, Restaurants, Amenities in Humphrey Village, Community centre, Library. Note: Cottage is 4-season; End section of Downes Rd is seasonal but has been privately maintained year-round in the past, Modest $200 annual road fee, Mins to hwy 400 for easy access to the GTA, Cottage Life Awaits! (id:62650)

Read More
Basic Details
  • Property Type: Residential
  • Listing Type: For Sale
  • Listing ID: X12861672
  • Price: $949,000
  • Bedrooms: 3
  • Bathrooms: 2
  • View: Lake view,Direct Water View
  • Square Footage: 1100 - 1500 Sqft
  • Status: Active
  • Property Sub Type: Single Family
  • Office Key: 56609
Features & Appliances
Features
  • Heating System: Electric, Baseboard heaters
  • Cooling System: None
  • Basement: Unfinished, N/A, Walk out
  • Fireplace: Woodstove
  • Parking: No Garage
  • Architectural Style: Bungalow
  • Exterior Features: Wood
  • Sewer: Septic System
  • Utilities: Electricity
  • Waterfront Features: Waterfront on lake
  • Fireplaces Total: 1
Address Map
  • Location: CA, Ontario, Seguin, P2A2W8
  • Street: Downes
  • Street Number: 131
  • Street Suffix: Road
  • Longitude: W80° 8' 23.2''
  • Latitude: N45° 18' 53.7''
Additional Information
  • Water Body Name: Horseshoe Lake
  • Water Source:
  • Foundation Details:
  • Lot Features:
  • Lot Size Dimensions: 122 x 300 FT
  • Stories: 1.0
Financial
  • Tax Annual Amount: 1785
Powered by REALTOR.ca
Listing updated: 2026-04-20 17:17:32
List Your Property
Mortgage Calculator
Get Pre-Approved
$
$
%
%
years
Monthly Payment (Est.) $
Similar Properties
Listing Information
  • List Agent Key: 1460572
  • List Office Key: 56609
  • Modification Timestamp: 2026-03-18T14:10:17Z
  • Originating System Name: OnePoint Association of REALTORS®
  • Status Change Timestamp: 2026-03-18T14:00:24Z
Powered by REALTOR.ca
Listing updated: 2026-04-20 17:17:32
REALTOR®, REALTORS®, and the REALTOR® logo are certification marks that are owned by REALTOR® Canada Inc. and licensed exclusively to The Canadian Real Estate Association (CREA). These certification marks identify real estate professionals who are members of CREA and who must abide by CREA’s By‐Laws, Rules, and the REALTOR® Code. The MLS® trademark and the MLS® logo are owned by CREA and identify the quality of services provided by real estate professionals who are members of CREA.

The information contained on this site is based in whole or in part on information that is provided by members of The Canadian Real Estate Association, who are responsible for its accuracy. CREA reproduces and distributes this information as a service for its members and assumes no responsibility for its accuracy.

Website is operated by a brokerage or salesperson who is a member of The Canadian Real Estate Association.

The listing content on this website is protected by copyright and other laws, and is intended solely for the private, non‐commercial use by individuals. Any other reproduction, distribution or use of the content, in whole or in part, is specifically forbidden. The prohibited uses include commercial use, “screen scraping”, “database scraping”, and any other activity intended to collect, store, reorganize or manipulate data on the pages produced by or displayed on this website.

By continuing to use this website and its services, you agree to these

These forms are provided to ComFree’s Unrepresented Sellers as a part of their Mere Posting ComFree Listing Contract.

I acknowledge I can only access these forms as a ComFree customer under contract.

These forms are provided to ComFree’s Unrepresented Sellers as a part of their Mere Posting ComFree Listing Contract and in partnership with Zubic Law.

I acknowledge I can only access these forms as a ComFree customer under contract.

These forms are provided to ComFree’s Unrepresented Sellers as a part of their Mere Posting ComFree Listing Contract and in partnership with Zubic Law.

I acknowledge I can only access these forms as a ComFree customer under contract.

How It Works

1. Purchase Your Package

2. We Ship Your ‘For Sale’ Sign

3. Book Your VR Tour

4. Complete Listing Input Forms

5. We Make Your Listing Live

6. Get Support 7 Days a Week

7. iSOLD!