Share
$1,239,900
Saskatchewan,North Qu'Appelle Rm No. 187
For Sale Active
74 Aaron DRIVE, North Qu'Appelle Rm No. 187, Saskatchewan S0G1S0
  • 5
  • 3
  • 1,603 Sqft
Contact Seller
Basic Details
Description

Have you ever imagined waking up to calm water views, fresh lake air, and the quiet rhythm of nature—without giving up the convenience of the city? Just a short drive from the city, this stunning lakefront opportunity invites you to experience the best of both worlds. Welcome to 74 Aaron Drive on beautiful Echo Lake, —a sought-after destination known for

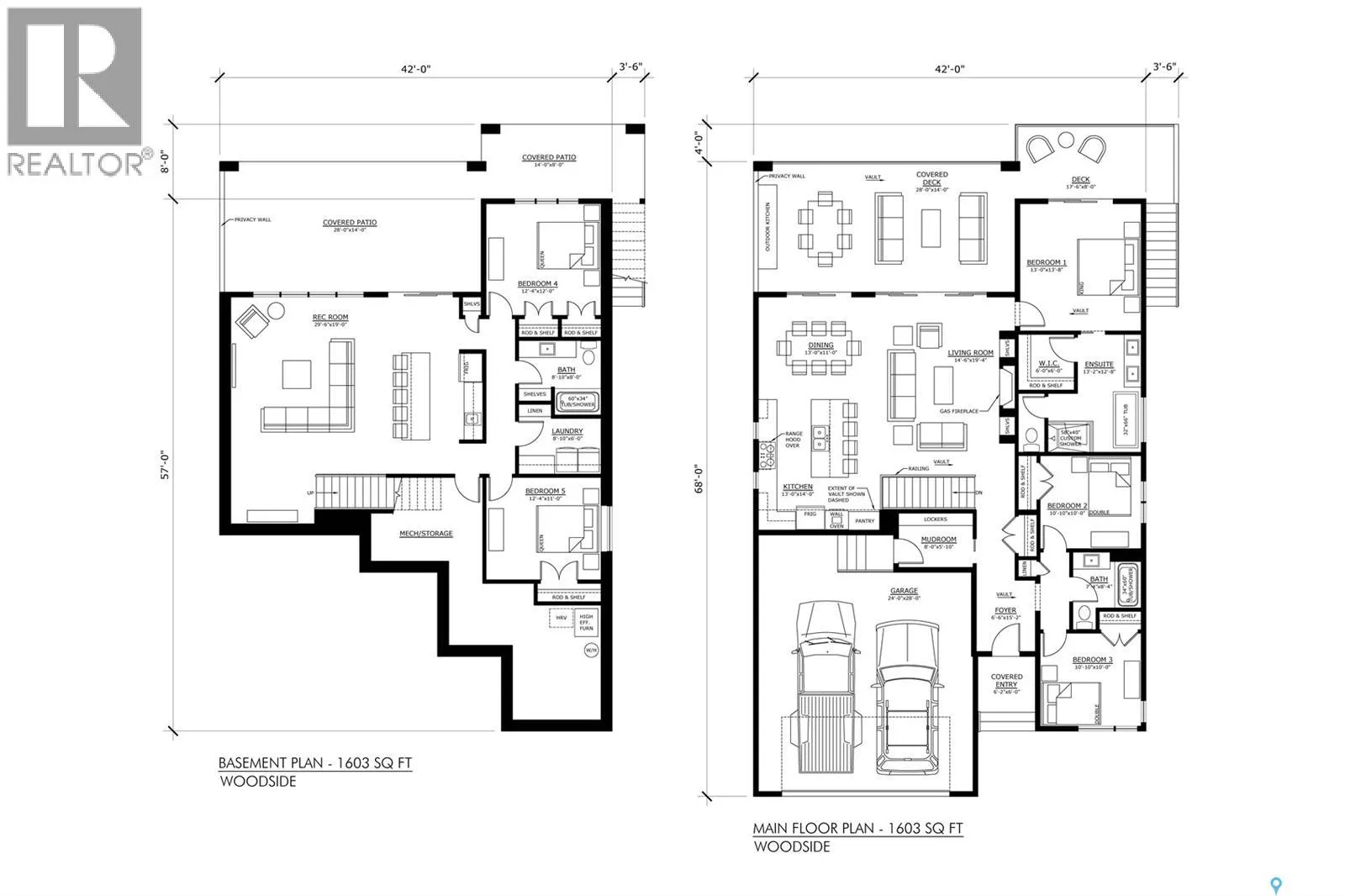
its scenic shoreline, recreational activities, and relaxed community atmosphere. This thoughtfully designed walkout bungalow by Robinson Residential offers 1,603 sq. ft. on each level, providing generous space for both everyday living and entertaining. The main floor features three bedrooms and two bathrooms, including a beautifully designed primary suite. The fully developed lower level adds two additional bedrooms and a third bathroom, making it perfect for family, guests, or even a dedicated home office or recreation area. Every detail has been planned with comfort and quality in mind. The home will include: • A drilled well for reliable water supply • A 2,500-gallon septic tank system • A commercial reverse osmosis (RO) water system • A custom tile shower and freestanding tub for a spa-like bathroom experience • A cozy fireplace to anchor the living space • A completed outdoor deck ideal for enjoying lake views and summer evenings. This exceptional home will be built by Authentic Developments, known for quality craftsmanship and attention to detail. Best of all, construction has not yet started, which means you have the rare opportunity to customize the design, finishes, and details to match your personal style and budget. From cabinetry and flooring to layout adjustments and finishing touches, you can truly create a home that reflects your vision of lakefront living. If you’ve been dreaming about a lifestyle where mornings begin with lake views and evenings end with peaceful sunsets, 74 Aaron Drive on Echo Lake could be the perfect place to start your new chapter. (id:62650)

Read More
Basic Details
  • Property Type: Residential
  • Listing Type: For Sale
  • Listing ID: SK030051
  • Price: $1,239,900
  • Bedrooms: 5
  • Bathrooms: 3
  • Square Footage: 1,603 Sqft
  • Year Built: 2026
  • Status: Active
  • Property Sub Type: Single Family
  • Office Key: 272165
Features & Appliances
Features
  • Heating System: Forced air, Natural gas
  • Cooling System: Central air conditioning, Air exchanger
  • Basement: Finished, Full
  • Fireplace: Gas, Conventional
  • Parking: Attached Garage, Parking Space(s)
  • Architectural Style: Bungalow
  • Waterfront Features: Waterfront
  • Fireplaces Total: 1
Address Map
  • Location: CA, Saskatchewan, North Qu'Appelle Rm No. 187, Jasmin, S0G1S0
  • Longitude: W104° 8' 45.3''
  • Latitude: N50° 48' 34.8''
Additional Information
  • Water Body Name: Echo Lake
  • Lot Features:
  • Lot Size Dimensions: 8712.00
Powered by REALTOR.ca
Listing updated: 2026-04-21 23:21:46
List Your Property
Mortgage Calculator
Get Pre-Approved
$
$
%
%
years
Monthly Payment (Est.) $
Similar Properties
Listing Information
  • List Agent Key: 1925609
  • List Office Key: 272165
  • Modification Timestamp: 2026-04-01T11:35:33Z
  • Originating System Name: Saskatchewan REALTORS® Association
  • Status Change Timestamp: 2026-04-01T08:03:13Z
Powered by REALTOR.ca
Listing updated: 2026-04-21 23:21:46
REALTOR®, REALTORS®, and the REALTOR® logo are certification marks that are owned by REALTOR® Canada Inc. and licensed exclusively to The Canadian Real Estate Association (CREA). These certification marks identify real estate professionals who are members of CREA and who must abide by CREA’s By‐Laws, Rules, and the REALTOR® Code. The MLS® trademark and the MLS® logo are owned by CREA and identify the quality of services provided by real estate professionals who are members of CREA.

The information contained on this site is based in whole or in part on information that is provided by members of The Canadian Real Estate Association, who are responsible for its accuracy. CREA reproduces and distributes this information as a service for its members and assumes no responsibility for its accuracy.

Website is operated by a brokerage or salesperson who is a member of The Canadian Real Estate Association.

The listing content on this website is protected by copyright and other laws, and is intended solely for the private, non‐commercial use by individuals. Any other reproduction, distribution or use of the content, in whole or in part, is specifically forbidden. The prohibited uses include commercial use, “screen scraping”, “database scraping”, and any other activity intended to collect, store, reorganize or manipulate data on the pages produced by or displayed on this website.

By continuing to use this website and its services, you agree to these

These forms are provided to ComFree’s Unrepresented Sellers as a part of their Mere Posting ComFree Listing Contract.

I acknowledge I can only access these forms as a ComFree customer under contract.

These forms are provided to ComFree’s Unrepresented Sellers as a part of their Mere Posting ComFree Listing Contract and in partnership with Zubic Law.

I acknowledge I can only access these forms as a ComFree customer under contract.

These forms are provided to ComFree’s Unrepresented Sellers as a part of their Mere Posting ComFree Listing Contract and in partnership with Zubic Law.

I acknowledge I can only access these forms as a ComFree customer under contract.

How It Works

1. Purchase Your Package

2. We Ship Your ‘For Sale’ Sign

3. Book Your VR Tour

4. Complete Listing Input Forms

5. We Make Your Listing Live

6. Get Support 7 Days a Week

7. iSOLD!