Share
$2,495,000
British Columbia,Lake Country
For Sale Active
955 Gable Road, Lake Country, British Columbia V4V1C3
  • 6
  • 7
  • 4,340 Sqft
Basic Details
Description

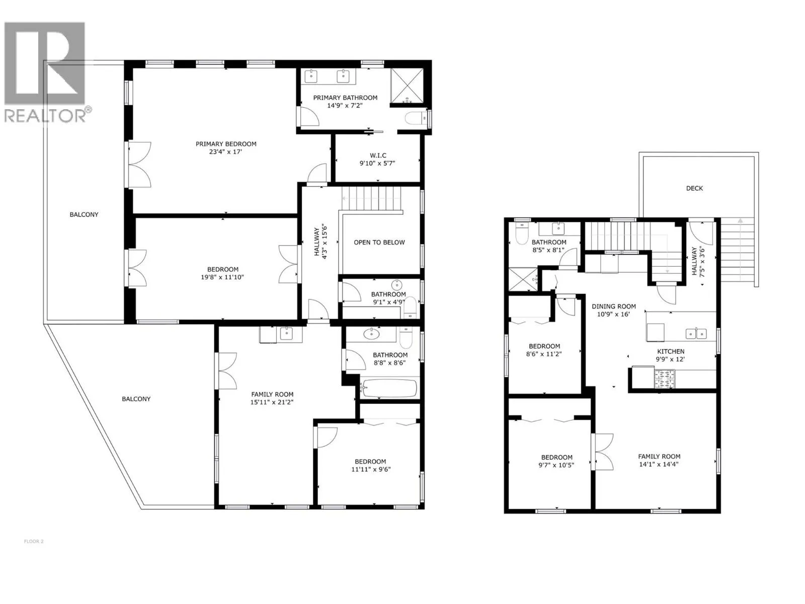
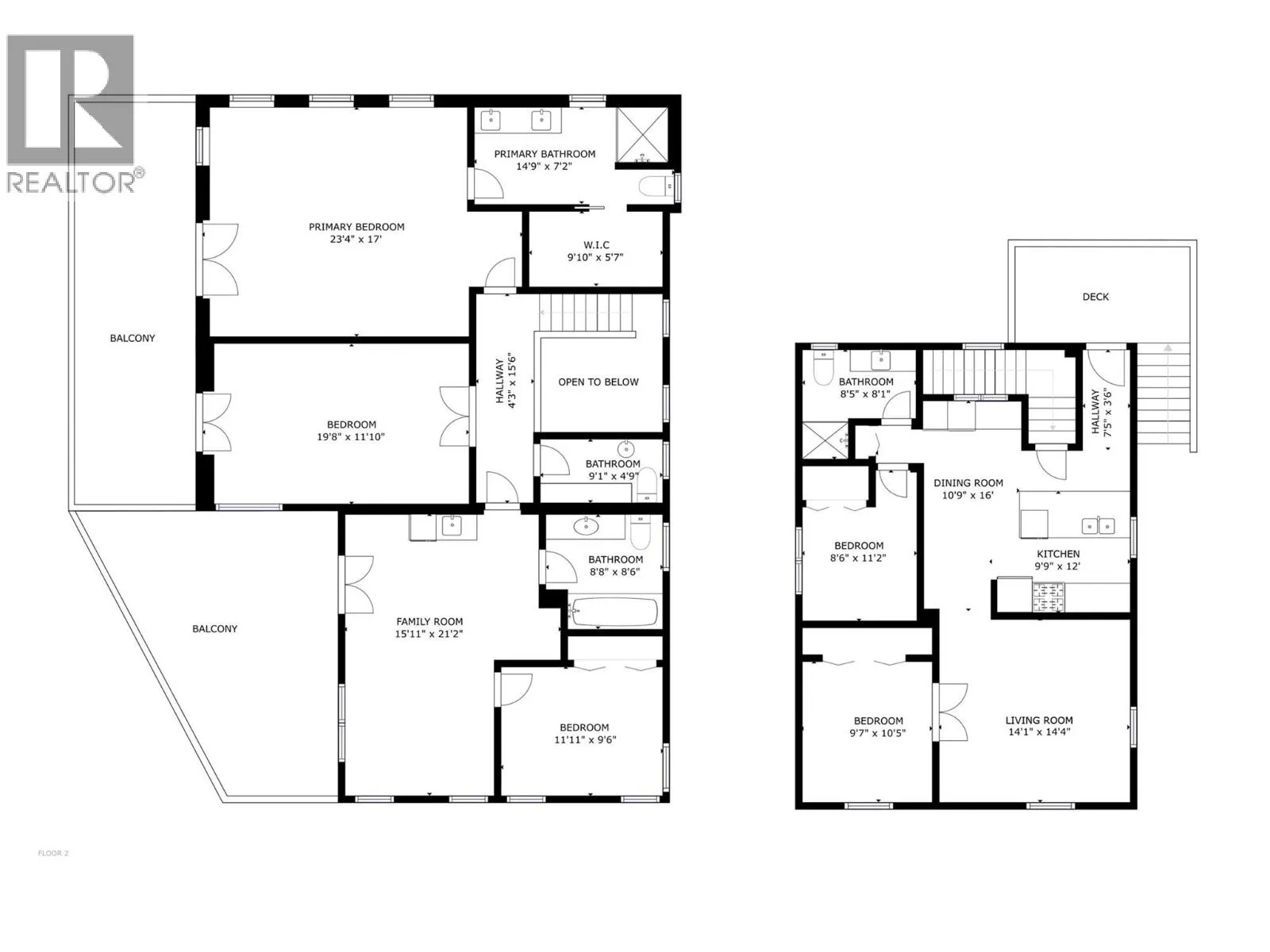
Discover the ULTIMATE LAKESIDE RETREAT in this meticulously reimagined SEMI-WATERFRONT HOME. Only steps away from the beach & boat launch, this property embodies the sun-drenched spirit of the Okanagan. With over $300K in PRECISION UPGRADES, this home has been modernized to a consistent, high-quality standard throughout. A gourmet kitchen w/custom cherry cabinetry & a sprawling island anchors the open-concept great

room. The uninterrupted panoramic views flow through to the living room featuring a custom crafted mantle w/new gas fp w/vaulted ceiling & exposed beam. The upper level provides a private sanctuary, headlined by the primary bdrm featuring an expansive walk-in closet & a spa-inspired ensuite w/an elegant glass shower & heated floors. A generous 2nd bdrm, powder room, a 3rd bdrm, 4 piece bathroom PLUS family room w/coffee bar & access to a deck w/lake view, offers an additional refined space for family & friends. Beyond the primary residence, the property offers dual high-end guest or income opportunities. A LEGAL two-bdrm suite sits privately above the oversized garage, complemented by an additional one-bdrm suite, both registered & licensed w/the District for short term rentals, w/o sacrificing privacy. An exquisite outdoor haven incl. a custom kitchen & fireside lounge – a tranquil space to take in the beauty of the lake. Buoy, RV & boat parking, spacious driveway & an oversized, heightened double garage! This estate easily accommodates all Okanagan needs & more! (id:62650)

Read More
Basic Details
  • Property Type: Residential
  • Listing Type: For Sale
  • Listing ID: 10378087
  • Price: $2,495,000
  • Bedrooms: 6
  • Bathrooms: 7
  • Half Bathrooms: 2
  • View: Lake view,Mountain view,Valley view,View of water,View (panoramic)
  • Square Footage: 4,340 Sqft
  • Year Built: 1989
  • Status: Active
  • Property Sub Type: Single Family
  • Roof:
  • Office Key: 61706
Features & Appliances
Features
  • Heating System: Forced air
  • Cooling System: Central air conditioning
  • Fence: Fence
  • Fireplace: Gas, Unknown
  • Parking: Additional Parking, Attached Garage
  • Exterior Features: Stucco
  • Flooring: Ceramic Tile, Other, Hardwood
  • Sewer: Septic tank
  • Fireplaces Total: 2
Address Map
  • Location: CA, British Columbia, Lake Country, V4V1C3
  • Street: Gable
  • Street Number: 955
  • Street Suffix: Road
  • Longitude: W120° 32' 42.4''
  • Latitude: N50° 7' 25.6''
Additional Information
  • Water Source:
  • Community Features:
  • Lot Features:
  • Lot Size Dimensions: 0.27
  • Stories: 2.0
Financial
  • Tax Annual Amount: 9755.39
Powered by REALTOR.ca
Listing updated: 2026-04-16 03:17:34
List Your Property
Mortgage Calculator
Get Pre-Approved
$
$
%
%
years
Monthly Payment (Est.) $
Listing Information
  • List Agent Key: 1937557
  • List Office Key: 61706
  • Modification Timestamp: 2026-03-31T20:56:06Z
  • Originating System Name: Association of Interior REALTORS®
  • Status Change Timestamp: 2026-03-31T20:49:11Z
Powered by REALTOR.ca
Listing updated: 2026-04-16 03:17:34
REALTOR®, REALTORS®, and the REALTOR® logo are certification marks that are owned by REALTOR® Canada Inc. and licensed exclusively to The Canadian Real Estate Association (CREA). These certification marks identify real estate professionals who are members of CREA and who must abide by CREA’s By‐Laws, Rules, and the REALTOR® Code. The MLS® trademark and the MLS® logo are owned by CREA and identify the quality of services provided by real estate professionals who are members of CREA.

The information contained on this site is based in whole or in part on information that is provided by members of The Canadian Real Estate Association, who are responsible for its accuracy. CREA reproduces and distributes this information as a service for its members and assumes no responsibility for its accuracy.

Website is operated by a brokerage or salesperson who is a member of The Canadian Real Estate Association.

The listing content on this website is protected by copyright and other laws, and is intended solely for the private, non‐commercial use by individuals. Any other reproduction, distribution or use of the content, in whole or in part, is specifically forbidden. The prohibited uses include commercial use, “screen scraping”, “database scraping”, and any other activity intended to collect, store, reorganize or manipulate data on the pages produced by or displayed on this website.

By continuing to use this website and its services, you agree to these

These forms are provided to ComFree’s Unrepresented Sellers as a part of their Mere Posting ComFree Listing Contract.

I acknowledge I can only access these forms as a ComFree customer under contract.

These forms are provided to ComFree’s Unrepresented Sellers as a part of their Mere Posting ComFree Listing Contract and in partnership with Zubic Law.

I acknowledge I can only access these forms as a ComFree customer under contract.

These forms are provided to ComFree’s Unrepresented Sellers as a part of their Mere Posting ComFree Listing Contract and in partnership with Zubic Law.

I acknowledge I can only access these forms as a ComFree customer under contract.

How It Works

1. Purchase Your Package

2. We Ship Your ‘For Sale’ Sign

3. Book Your VR Tour

4. Complete Listing Input Forms

5. We Make Your Listing Live

6. Get Support 7 Days a Week

7. iSOLD!